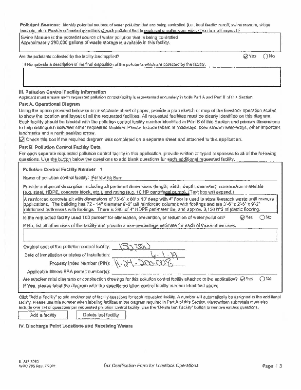
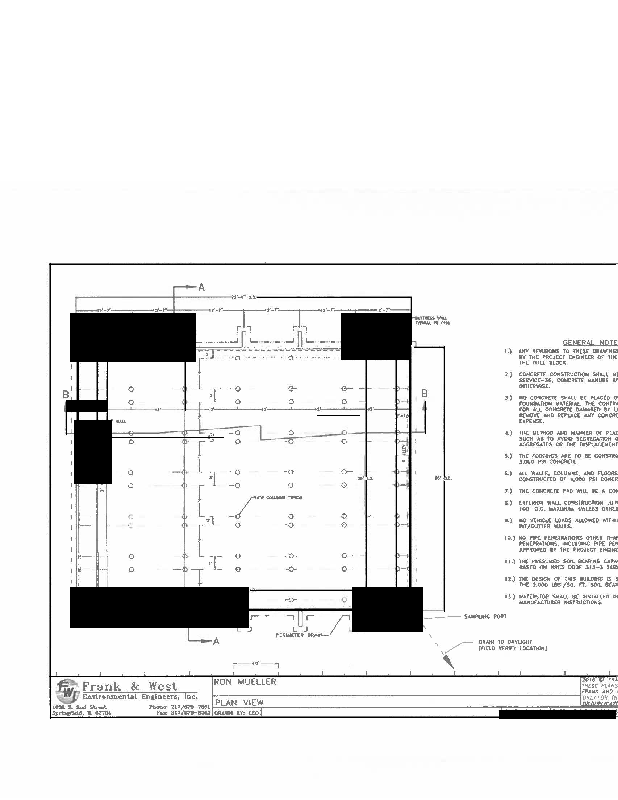
Version History

Type # Version Owner Created Size  
Version 1 pcb 26-22 Ron Mueller Tax Cert Rec 09-17-25.pdf

Initial Version

admin 09/17/25 10:04 AM 4120716