1. page 1
    2. page 2
    3. page 3
    4. page 4
    5. page 5
    6. page 6
    7. page 7
    8. page 8
    9. page 9
    10. page 10
    11. page 11
    12. page 12

 
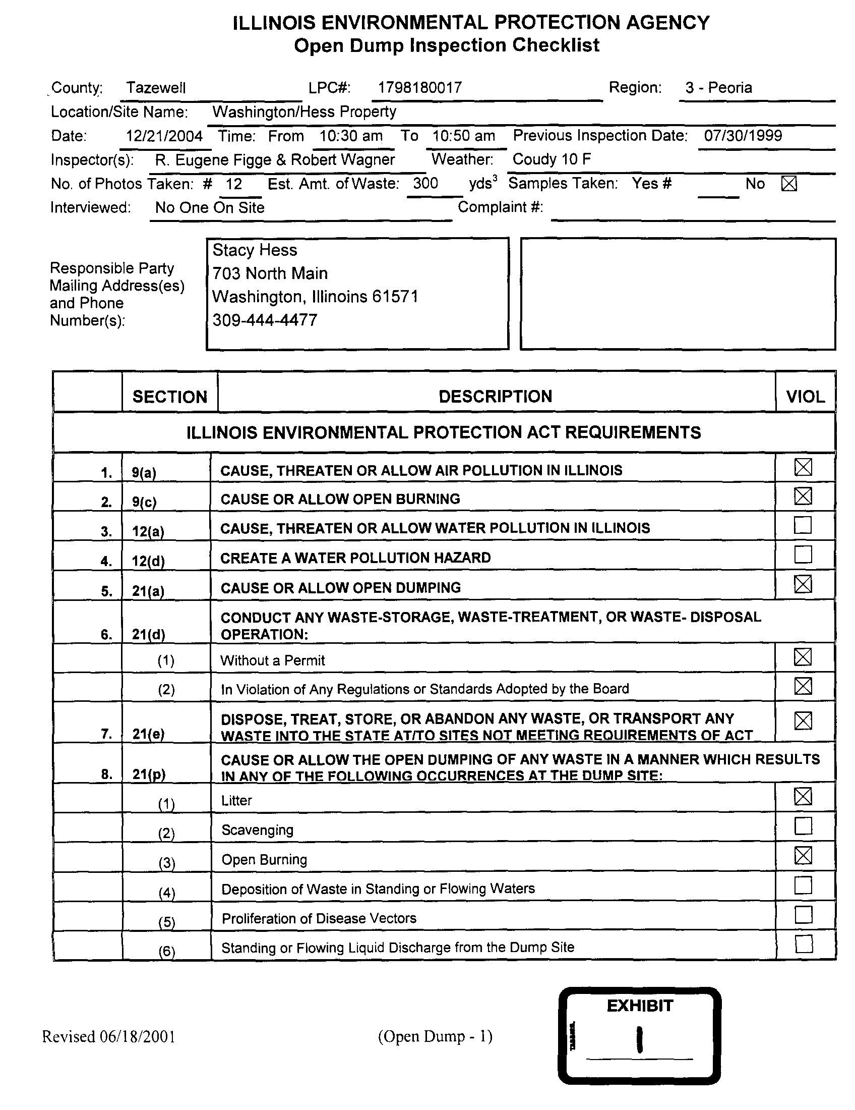
,County : Tazewell
LPC#
:
1798180017
Location/Site Name :
Washington/Hess Property
Date:
12/21/2004 Time: From 10:30 am To 10:50 am Previous Inspection Date: 07/30/1999
Inspector(s) : R. Eugene Figge & Robert Wagner
Weather
: Coudy 10 F
No. of Photos Taken : # 12
Est. Amt . of Waste: 300
yds3 Samples Taken : Yes #
Interviewed :
No One On Site
Complaint # :
Responsible Party
Mailing Address(es)
and Phone
Number(s):
Revised 06/18/2001
ILLINOIS ENVIRONMENTAL PROTECTION AGENCY
Open Dump Inspection Checklist
Stacy Hess
703
North Main
Washington, Illinoins 61571
309-444-4477
(Open Dump
- 1)
Region :
3 -
Peoria
No
f1
EXHIBIT
1
SECTION
DESCRIPTION
VIOL
ILLINOIS ENVIRONMENTAL PROTECTION ACT REQUIREMENTS
1 . 9(a)
CAUSE, THREATEN OR ALLOW AIR POLLUTION IN ILLINOIS
VA
2.
9(c)
CAUSE OR ALLOW OPEN BURNING
VA
3. 12(a)
CAUSE, THREATEN OR ALLOW WATER POLLUTION
IN ILLINOIS
4. 12(d)
CREATE A WATER POLLUTION HAZARD
5. 21 (a)
CAUSE OR ALLOW OPEN DUMPING
VA
6.
21(d)
CONDUCT ANY WASTE-STORAGE, WASTE-TREATMENT, OR WASTE- DISPOSAL
OPERATION :
(1)
Without a Permit
1113
(2)
In Violation of Any Regulations or Standards Adopted by the Board
FAR
7.
21(e)
DISPOSE, TREAT, STORE, OR ABANDON ANY WASTE, OR TRANSPORT ANY
WASTE INTO THE STATE
ATITO SITES NOT MEETING REQUIREMENTS OF ACT
IS
8. 21(p)
CAUSE OR ALLOW THE OPEN DUMPING OF ANY WASTE IN A MANNER WHICH RESULTS
IN ANY OF THE FOLLOWING OCCURRENCES AT THE DUMP SITE :
(1)
Litter
112
(2)
Scavenging
(3)
Open Burning
A
(4)
Deposition of Waste in Standing or Flowing Waters
(5)
Proliferation of Disease Vectors
(6)
Standing or Flowing Liquid Discharge from the Dump Site

 
LPC #
1798180017
Inspection Date :
Signature
17
i 1-00~~
spector(s)
Informational Notes
1 .
[Illinois] Environmental Protection Act : 415 ILCS 5/4
.
2.
Illinois Pollution Control Board : 35 III . Adm
. Code, Subtitle G .
3.
Statutory and regulatory references herein are provided for convenience only and
should not be construed as legal
conclusions of the Agency or as limiting the Agency's statutory or regulatory powers
.
Requirements of some statutes
and regulations cited are in summary format .
Full text of requirements can be found in references listed in 1
. and 2 .
above .
4 .
The provisions of subsection (p) of Section 21 of the [Illinois] Environmental
Protection Act shall be enforceable either
by administrative citation under Section 31
.1 of the Act or by complaint under Section
31 of the Act .
5 .
This inspection was conducted in accordance with Sections 4(c) and 4(d) of the [Illinois] Environmental Protection Act
.
415 ILCS 5/4(c) and (d).
6.
Items marked with an "NE" were not evaluated at the time of this inspection
.
Revised 06/18/2001
(Open Dump -
2)
(7)
Deposition of General Construction or Demolition Debris
; or Clean Construction or
Demnlitinn Debris
~~
9. 55(a)
NO PERSON SHALL :
(1)
Cause or Allow Open Dumpinq of Any Used or Waste Tire
F0
(2)
Cause or Allow Open Burninq of Any Used or Waste Tire
~~
35 ILLINOIS ADMINISTRATIVE CODE REQUIREMENTS
SUBTITLE G
10. 812 .101(a)
FAILURE TO SUBMIT AN APPLICATION FOR A PERMIT TO
DEVELOP AND
OPERATE A LANDFILL
11 . 722
.111
HAZARDOUS WASTE DETERMINATION
12. 808.121
SPECIAL WASTE DETERMINATION
13. 809.302(a)
ACCEPTANCE OF SPECIAL WASTE FROM
A
WASTE TRANSPORTER WITHOUT A
WASTE HAULING PERMIT, UNIFORM WASTE PROGRAM REGISTRATION AND
PERMIT AND/OR MANIFEST
OTHER REQUIREMENTS
14.
APPARENT VIOLATION OF : (
PCB ;( ) CIRCUIT COURT
CASE NUMBER :
ORDER ENTERED ON
:
15.
OTHER :

 
1798180017 -- Tazewell County
Hess Property
December 21, 2004
R. Eugene Figge
Page 1
NARRATIVE
On December 21, 2004 an inspection was conducted from 10
:30 a.m . until 10 :50 a.m . at Hess
Property by R
. Eugene Figge (this author) and Robert Wagner of DLPC/FOS
- Peoria. The
property was originally inspected on May 9, 1990.
. The property is the former site of a tractor
junkyard
. The property owner Stacy Hess operates a scrap metal reclamation business on the
premises . Mr
. Hess was required to remove approximately 3000 tractor tires following the initial
inspection
. The last 1000 tires were removed by the Agency under a Consensual Removal
Agreement on July 30, 1999.
On the site the author observed approximately 50 used tires of various types, as shown in
photographs 2, 3, 11 and 12
. Evidence of open burning of used tires was also observed, as
shown in photographs 7 and 8
. An accumulation of charred general refuse was present, as shown
in photographs 5 and 6
. Just east of the accumulation of general refuse was a partially burnt
accumulation of demolition waste, as shown in photographs 9 and 10
. Follow the inspection the
author proceeded to the Tazewell County Recorder of Deeds' Office and confirmed that Stacy
Hess still owned the property
.
The following apparent violations were indicated on the inspection checklist
:
I .
Pursuant to Section 9(a) of the {Illinois} Environmental Protection Act (415 ILCS 5/9(a)), no
person shall cause or threaten or allow the discharge or emission of any contaminant into the
environment in any State so as to cause or tend to cause air pollution in Illinois, either alone
or in combination with contaminants from other sources, or so as to violate regulations or
standards adopted by the Board under this Act
.
A violation of Section 9(a) of the {Illinois} Environmental Protection Act (415 ILCS 5/9(a))
is alleged for the following reason
: Evidence of open burning was observed
during the
inspection that indicated that
Stacy Hess as owner and operator had caused or tended
to cause open
burning which
would cause or tend to cause air pollution in Illinois .
2.
Pursuant to Section 9(c) of the {Illinois} Environmental Protection Act (415 ILCS 5/9(c)), no
person shall cause or allow the open burning of refuse, conduct any salvage operation by
open burning, or cause or allow the burning of any refuse in any chamber not specifically
designed for the purpose and approved by the Agency pursuant to regulations adopted by the
Board under this Act
; except that the Board may adopt regulations permitting open burning
of refuse in certain cases upon a finding that no harm will result from such burning, or that
any alternative method of disposing of such refuse would create a safety hazard so extreme as
to justify the pollution that would result from such burning
.
A violation of Section 9(c) of the {Illinois} Environmental Protection Act (415 ILCS 5/9(c))
is alleged for the following reason :
Evidence of open burning was observed during the
inspection that indicated Stacy
Hess as
owner and operator had caused or allowed open
burning.

 
1798180017 -- Tazewell County
Hess Property
December 21, 2004
R. Eugene Figge
Page 2
3 .
Pursuant to Section 21 (a) of the {Illinois} Environmental Protection Act (415
ILCS 5/21(a)),
no person shall cause or allow the open dumping of any waste .
A violation of Section 21 (a) of the {Illinois} Environmental Protection Act (415 ILCS
5/21(a)) is alleged for the following reason :
Evidence of open dumping of waste was
observed during the inspection
that indicated Stacy Hess as owner and operator had
caused or allowed open dumping
.
4 .
Pursuant to Section 21(d)(1) of the {Illinois} Environmental Protection Act (415
ILCS
5/21 (d)(1)),
no person shall conduct any waste-storage, waste-treatment, or waste-disposal
operation without a permit granted by the Agency or in violation of any conditions imposed
by such permit .
A violation of Section 21(d)(1) is alleged for the following reason
: Stacy Hess as owner and
operator had allowed waste to be disposed without a permit granted
by the Illinois
EPA.
5 .
Pursuant to Section 21(d)(2) of the {Illinois} Environmental Protection Act (415
ILCS
5/21(d)(2)), no person shall conduct any waste-storage, waste-treatment, or waste-disposal
operation in violation of any regulations or standards adopted by the Board under this Act
..
A violation of Section 21(d)(2) is alleged for the following reason
: Stacy Hess as owner and
operator had
conducted a waste
disposal operation in violation of
regulations adopted
by the
Illinois Pollution Control Board .
6.
Pursuant to Section 21(e) of the {Illinois} Environmental Protection Act (415 ILCS 5/21(e)),
no person shall dispose, treat, store or abandon any waste, or transport any waste into this
State for disposal, treatment, storage or abandonment, except at a site or facility which meets
the requirements of this Act and of regulations and standards thereunder
.
A violation of Section 21(e) of the {Illinois} Environmental Protection Act (415 ILCS
5/21(e)) is alleged for the following reason
: Stacy Hess as owner and operator had allowed
waste to be disposed at this site which does not meet the requirements
of the Act and
regulations thereunder
.
7.
Pursuant to Section 21(p)(1) of the {Illinois} Environmental Protection Act (415 ILCS
5/21(p)(1)), no person shall, in violation of subdivision (a) of this Section, cause or allow the
open dumping of any waste in a manner which results in litter
.
The prohibitions specified in this subsection (p) shall be enforceable by the Agency either by
administrative citation under Section 31
.1 of this Act or as otherwise provided by this Act .
The specific prohibitions in this subsection do not limit the power of the Board to establish
regulations or standards applicable to open dumping
.
A violation of Section 21(p)(1) of the {Illinois} Environmental Protection Act (415 ILCS
5/21(p)(l)) is alleged for the following reason
: Stacy Hess as owner
and operator had
caused or allowed the open dumping of waste in a manner which resulted in litter .

 
1798180017 -- Tazewell County
Hess Property
December 21, 2004
R. Eugene Figge
Page 3
8.
Pursuant to Section 21(p)(3) of the {Illinois} Environmental Protection Act (415 ILCS
5/21(p)(3)), no person shall, in violation of subdivision (a) of this Section, cause or allow the
open dumping of any waste in a manner which results in open burning .
A violation of Section 21(p)(3) of the {Illinois} Environmental Protection Act (415 ILCS
5/21(p)(3)) is alleged for the following reason
: Stacy Hess as owner and operator had
caused or allowed the open dumping of waste in a manner which resulted in open
burning.
9.
Pursuant to Section 21(p)(7) of the {Illinois} Environmental Protection Act (415 ILCS
5/21(p)(7), no person shall, deposit general construction or demolition debris, or clean
construction or demolition debris .
A violation of Section 21(p)(7) of the {Illinois} Environmental Protection Act (415 ILCS
5/21(p)(7) is alleged for the following reason
: Stacy Hess as owner and operator
deposited general construction or demolition debris, or clean construction or
demolition debris .
10.
Pursuant to Section 55(a)(I) of the {Illinois} Environmental Protection Act (415 ILCS
5/55(a)(1)), no person shall cause or allow the open dumping of any used or waste tire
.
A violation of Section 55(a)(1) of the {Illinois} Environmental Protection Act (415 ILCS
5/55(a)(1)) is alleged for the following reason
: Evidence of open dumping of used or waste
tires was
observed during the inspection that indicated Stacy Hess as owner and
operator had caused or allowed the open dumping of used or waste tires
.
11 .
Pursuant to 35 Ill . Adm
. Code 812.101(a),
all persons, except those specifically exempted by
Section 21(d) of the {Illinois} Environmental Protection Act, shall submit to the Agency an
application for a permit to develop and operate a landfill
.
A violation of 35 III. Adm. Code 812.101
(a) is alleged for the following reason : Stacy Hess
as owner and
operator had allowed the operation of a waste disposal site without
submitting to the Illinois EPA
an application for a permit to develop and operate a
landfill.

 
Not to Scale
Ready Mix Pant
P1
PIO >
P11
P2 ->
P12
I
P9 P7 ->
P3
~O
Route 24
P6
< P5
t N
State of
Illinois Environmental
Protection Agency
Site Sketch
Inspector :
R. Eugene Figge
LPC # : 1798180017
Date of
Inspection : December
21, 2004
County:
Tazewell
Site Name :
Hess Property
Time :
10:30 a .m. - 10 :50 a.m
.

 
1798180017
-- Tazewell County
Hess Property
FOS File
DATE : December 21, 2004
TIME : 10 :36 a .m .
PHOTOGRAPHED BY
:
R. Eugene Figge
DIRECTION
: Photograph taken
toward the east.
PHOTOGRAPH NUMBER: 1
PHOTOGRAPH FILE NAME :
1798180017-12212004-OOl
.jpg
COMMENTS :
DATE : December 21, 2004
TIME : 10:36 a.m .
PHOTOGRAPHED BY :
R. Eugene Figge
DIRECTION : Photograph taken
toward the east .
PHOTOGRAPH NUMBER : 2
PHOTOGRAPH FILE NAME
:
1798180017-12212004-002 .jpg
COMMENTS :
DOCUMENT FILE NAME :
1798180017-12212004 .doc
Site Photographs
Page 1 of 6

 
1798180017-- Tazewell County
Hess Property
FOS File
DATE : December 21, 2004
TIME : 10
:36 a .m .
PHOTOGRAPHED BY
:
R
. Eugene Figge
DIRECTION : Photograph taken
toward the east .
PHOTOGRAPH NUMBER
: 3
PHOTOGRAPH FILE NAME
:
1798180017-12212004-003
.jpg
COMMENTS :
DATE : December 21, 2004
TIME : 10 :36 a .m .
PHOTOGRAPHED BY :
R. Eugene Figge
DIRECTION : Photograph taken
toward the northeast .
PHOTOGRAPH NUMBER : 4
PHOTOGRAPH FILE NAME :
1798180017-12212004-004 .jpg
COMMENTS :
DOCUMENT FILE NAME :
1798180017-12212004 .doc
Site Photographs
Page 2 of 6

 
1798180017 --
Tazewell County
Hess Property
FOS File
DATE : December 21, 2004
TIME : 10 :36 a .m .
PHOTOGRAPHED BY
:
R. Eugene Figge
DIRECTION : Photograph taken
toward the west.
PHOTOGRAPH NUMBER : 5
PHOTOGRAPH FILE NAME :
1798180017-12212004-005 .jpg
COMMENTS :
DATE :
December 21, 2004
TIME
:
10 :37 a .m
.
PHOTOGRAPHED BY
:
R. Eugene Figge
DIRECTION
: Photograph taken
toward the south.
PHOTOGRAPH NUMBER : 6
PHOTOGRAPH FILE NAME :
1798180017-12212004-006 .jpg
COMMENTS :
DOCUMENT FILE NAME
:
1798180017-12212004 .doc
Site Photographs
Page 3 of 6

 
1798180017 -- Tazewell County
Hess Property
FOS File
DATE : December 21, 2004
TIME : 10 :37 a .m .
PHOTOGRAPHED BY
:
R. Eugene Figge
DIRECTION
: Photograph taken
toward the east.
PHOTOGRAPH NUMBER : 7
PHOTOGRAPH FILE NAME :
1798180017-12212004-007
.jpg
COMMENTS :
DATE
: December 21, 2004
TIME : 10:37 a.m
.
PHOTOGRAPHED BY
:
R. Eugene Figge
DIRECTION : Photograph taken
toward the east .
PHOTOGRAPH NUMBER : 8
PHOTOGRAPH FILE NAME :
1798180017-12212004-008 .jpg
COMMENTS :
DOCUMENT FILE NAME
:
1798180017-12212004 .doc
Site Photographs
Page 4 of 6

 
1798180017 --
Tazewell County
Hess Property
FOS File
DATE : December 21, 2004
TIME: 10 :37 a .m .
PHOTOGRAPHED BY :
R. Eugene Figge
DIRECTION
: Photograph taken
toward the south.
PHOTOGRAPH NUMBER : 9
PHOTOGRAPH FILE NAME :
1798180017-12212004-009 .jpg
COMMENTS :
DATE : December 21, 2004
TIME: 10 :38 a .m.
PHOTOGRAPHED BY:
R. Eugene Figge
DIRECTION : Photograph taken
toward the east .
PHOTOGRAPH NUMBER : 10
PHOTOGRAPH FILE NAME :
1798180017-12212004-010 .jpg
COMMENTS :
DOCUMENT FILE NAME :
1798180017-12212004 .doc
Site Photographs
Page 5 of 6

 
1798180017
-- Tazewell County
Hess Property
FOS- File
DATE : December 21, 2004
TIME: 10 :38 a .m
.
PHOTOGRAPHED BY :
R. Eugene Figge
DIRECTION
: Photograph taken
toward the south .
PHOTOGRAPH NUMBER : 11
PHOTOGRAPH FILE NAME :
179818001712212004-011 .jpg
COMMENTS :
DATE : December 21, 2004
TIME: 10 :38 a
.m.
PHOTOGRAPHED BY :
R. Eugene Figge
DIRECTION : Photograph taken
toward the south
.
PHOTOGRAPH NUMBER
: 12
PHOTOGRAPH FILE NAME
:
1798180017-12212004-012
.jpg
COMMENTS :
DOCUMENT FILE NAME :
1798180017-12212004 .doc
Site Photographs
Page 6 of 6

Back to top