BEFORE THE ILLINOIS POLLUTION CONTROL BOARD
    AMERICAN BOTTOM CONSERVANCY, and
    )
    )
    SIERRA CLUB,
    )
    )
    Co-Petitioners,
    )
    )
    v.
    ) PCB 07-84
    ) (Third-Party Pollution Control
    ) Facility Siting Appeal)
    CITY OF MADISON, ILLINOIS, and
    )
    )
    WASTE MANAGEMENT OF ILLINOIS, INC.,
    )
    )
    Respondents.
    )
    PETITIONERS’ BRIEF
    Introduction
    This matter arises out of an application to site a landfill in the City of Madison,
    Illinois, filed by Waste Management of Illinois, Inc. (“Waste Management”). On
    February 6, 2007, the City of Madison (“the City”) approved the application.
    American Bottom Conservancy and Sierra Club (“petitioners”) have petitioned the
    Illinois Pollution Control Board for review of the City’s decision on the ground that
    the application fails to satisfy the siting criteria set forth in 415 ILCS 5/39.2, and on
    the ground that the proceedings conducted by the City of Madison were not
    fundamentally fair.
    1
    Statement of Facts
    Proceedings before the City of Madison
    On September 22, 2006, Waste Management filed with the City its application
    to site the North Milam landfill. C 0014. The application, together with other
    1
    Pages to the record made before the City are cited in this brief, for example, as “C
    0001.” Pages to the transcript of the hearing before this Board are cited in this brief,
    for example, as “Tr. 1.”
    Electronic Filing, Received, Clerk's Office, September 17, 2007

    2
    documents filed with the City, describe the natural and cultural resources that would
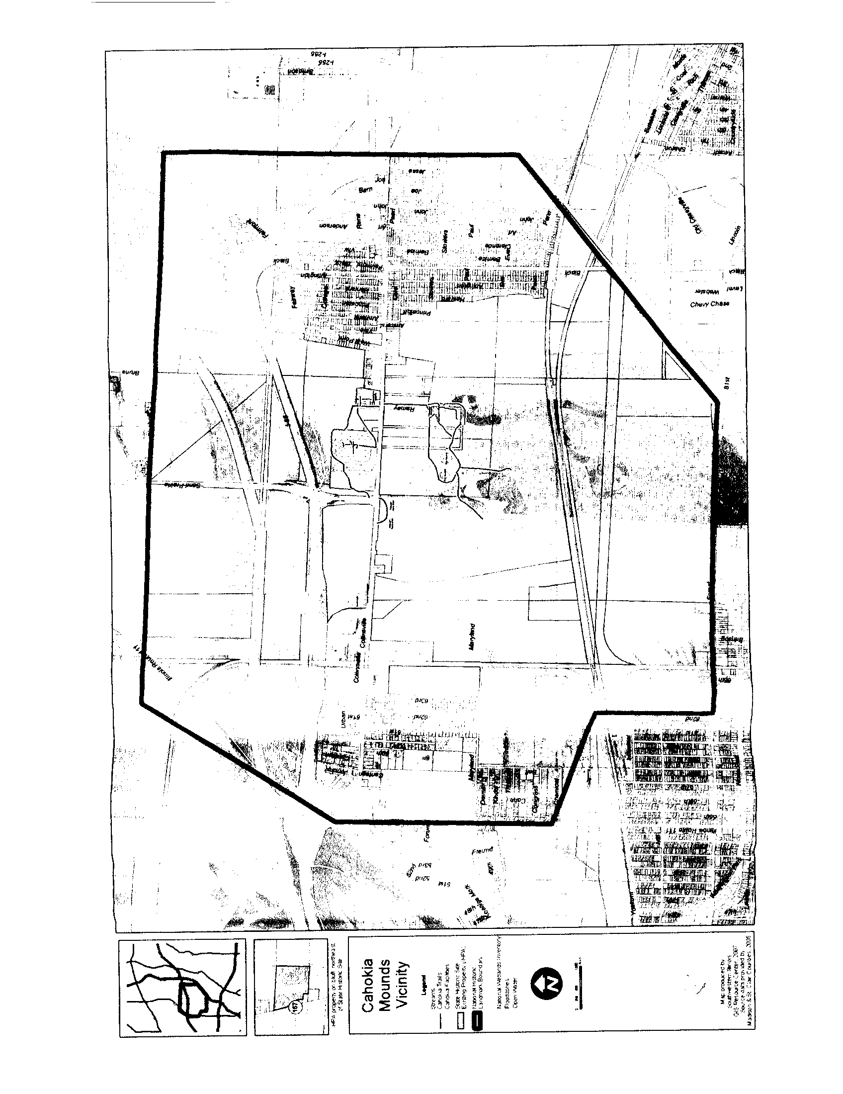
    be impacted by the proposed landfill. These include Horseshoe Lake State Park,
    Horseshoe Lake, American Indian Mounds, Cahokia Mounds World Heritage Site,
    and wetlands.
    Horseshoe Lake State Park
    Horseshoe Lake State Park is a 2,968 acre Illinois State Park located within a
    short distance to the North and to the East of the proposed landfill. C 0456 (Ex. ABC
    8), 0458, 0459, 0460. If constructed the landfill would be bounded by railroad tracks
    on its Northern Boundary. C 0458. A Fish and Wildlife area at the southern end of
    Horseshoe Lake State Park abuts these railroad tracks. C 0462.
    Within Horseshoe Lake State Park there are group picnic shelters, playgrounds,
    boat ramps, a fishing pier, campsites, hiking trails, and public water fowl hunting
    blinds. C 0460. A four-mile hiking trail, known as the “Walkers Island Bird Walk,”
    is located on Horseshoe Lake Island. C 1539.
    For thousands of years the area that is now Horseshoe Lake State Park had been
    inhabited by various Native American Indian groups. C 1538. The most impressive
    period of settlement was between 800-1600 A.D. when Cahokia Mounds was built.
    Id
    .
    An earthen platform mound still exists inside the park boundaries today. Id.
    Horseshoe Lake
    Much of Horseshoe Lake State Park consists of Horseshoe Lake. C 0456.
    Horseshoe Lake is situated on a low flood plain which follows the Mississippi
    River down to the Kentucky border. C 1538.
    Horseshoe Lake is a natural Oxbow
    Lake, formed by a channel cut by the Mississippi River during heavy spring floods. C
    1538.
    Electronic Filing, Received, Clerk's Office, September 17, 2007

    3
    Horseshoe Lake is used for fishing and hunting. C 1538. For fishing, the Lake
    contains channel catfish, bass, crappie, and bluegill. Id. Boat fishing is permitted
    except during the water fowl season. Id. For hunting, numerous public blinds are
    located along the Lake. Id.
    American Indian Mounds
    During its investigation, Waste Management encountered Native American
    sites (sites 1316, 1375, and 1385) on the proposed landfill site. These pre-Columbian
    sites are associated with Cahokia Mounds.
    C 1593, 2069.
    At site 1316, in December, 2005, archeologists uncovered what were later
    determined to be ancient human remains. C 2087, 2095. Pottery shards were found
    around the skull. C 2084. Twenty-six archaeological features and four architectural
    features were exposed, mapped, photographed and covered. C 1592.
    At site 1375, a Native American Mound was surrounded by a fenced 75 foot
    buffer. C 1592. Seventy-four archaeological features and three architectural features
    were found and excavated. C 1593.
    Concerning the Mounds Ruben Aguirre, a member of the Tongva Nation,
    addressed the City of Madison during the public hearing:
    if you do this landfill, you are – you are digging into our ancestors, you
    are desecrating our ancestors, especially these burials. It’s like me going
    to a cemetery and dig up your relatives, your families, your relatives and
    take them out to do a landfill so the City can make money out of this….
    This affect [sic] us indigenous people, our native people all over the
    world
    C 1459
    .
    Electronic Filing, Received, Clerk's Office, September 17, 2007

    4
    Cahokia Mounds World Heritage Site
    The Cahokia Mounds World Heritage Site and National Historic Landmark
    boundaries are located within 2,140 feet of the proposed landfill. C 2069, 2074.
    Cahokia Mounds is recognized as a State Historic Site; a National Historic Landmark;
    and a United Nations Educational, Scientific and Cultural Organization (UNESCO)
    World Heritage Site. C 1544. It is the largest pre-Columbian settlement north of
    Mexico and was occupied primarily between 800-1400 A.D. C 1540. During this
    period it covered nearly 1,600 hectares and included 120 mounds. Id. The site’s
    Monks Mound is the largest prehistoric earthwork in the Americas. Id
    .
    The
    Mississippians built at least 100 more additional mounds at other nearby sites, many
    of which have now been altered or destroyed. C 1545
    Wetlands
    The proposed landfill would impact 8.5 acres of farmed wetlands and 9.9 acres
    of forested wetlands. C 1929, 1973. The wetland referred to as Area 5 is a 13.9 acre
    complex of moderate to high quality, forested and scrub-shrub wetland. C 1933,
    1939. Vegetative and wildlife habitat are moderate to high in this wetland. C 1939.
    The Public Hearing
    On December 21 and 22, 2006, the City held a public hearing on Waste
    Management’s application. C 0973-1313, 1489-1535.
    During the hearing, petitioners attempted to examine Waste Management’s
    expert on compatibility about the Native American Mounds discovered at the site:
    Q. Are you aware that there are at least two mounds and a burial site
    and countless artifacts at the site?
    Mr. Moran: Objection, beyond the scope of his direct. It’s also not
    relevant.
    Electronic Filing, Received, Clerk's Office, September 17, 2007

    5
    Hearing Officer: Sustained.
    Q. If you knew that there were mounds on the site would you consider
    that compatible?
    Mr. Moran: Objection, same basis.
    Hearing Officer: Sustained.
    C 1045-1046
    .
    During the hearing, petitioners attempted to examine Waste Management about
    the wetlands on the site:
    Q. Do you find it incompatible to destroy wetlands to build a landfill?
    Mr. Moran: Objection, same reason.
    Hearing Officer: Sustained.
    C 1015. See also C 1016
    .
    Concerning compatibility generally, Waste Management’s consultant testified
    that he was engaged to look at the end use or conclusion of the facility. C 1025-1026,
    1050-1051. It was not within the scope of his engagement to evaluate the landfill’s
    compatibility with its surroundings from the time construction begins. Id. He also
    admitted that smell would be an appropriate criterion to assess, but it was not
    appropriate for him to do so because he was engaged to look at the end use of the
    facility. C 1025.
    Argument
    Siting approval is to be granted only if a proposed facility meets the criteria set
    out in section 39.2 of the Environmental Protection Act. 415 ILCS 5/39.2. A
    negative determination on any one of the criteria is sufficient to defeat an application
    for site approval.
    Town & Country Utilities, Inc. v. Illinois Pollution Control Board
    ,
    225 Ill.2d 103, 108, 866 N.E.2d 227, 231 (Ill. 2007). One of the criteria is whether
    Electronic Filing, Received, Clerk's Office, September 17, 2007

    6
    the proposed facility is located so as to minimize incompatibility with the character of
    the surrounding area. 415 ILCS 5/39.2 (a)(iii).
    I. The proposed landfill fails to meet the siting criteria because it is not located
    so as to minimize incompatibility with the character of the surrounding area in
    that A. There is no substantive buffer between the proposed landfill and
    Horseshoe Lake State Park; B. American Indian Mounds are located on the
    proposed landfill site and ancient human remains have been found at the site; C.
    The site is within 2,140 feet of the Cahokia Mounds World Heritage Site and
    National Historic Landmark Boundary; D. The proposed landfill will take
    eighteen acres of wetlands; and E. No effort was
    made to determine
    whether the proposed landfill would be compatible with the surrounding area
    during the landfill’s operation
    A. There is no substantive buffer between the proposed landfill
    and Horseshoe Lake State Park
    The proposed facility is incompatible with the surrounding area because there
    is no substantive buffer between the proposed landfill and Horseshoe Lake State Park.
    If constructed the landfill would be bounded by railroad tracks on its Northern
    Boundary. C 0458. A Fish and Wildlife area at the southern end of Horseshoe Lake
    State Park abuts these railroad tracks. C 0462.
    Waste Management’s consultant asserts that the tracks serve as “strong
    physical demarcations between the Open Space/Recreation/ Conservation uses and
    North Milam.” C 0471. According to the consultant the railroad is the buffer for the
    Fish and Wildlife Area on the southern end of the Park. C 0462. The consultant
    concludes that due to physical and visual buffers, North Milam is not incompatible
    with the use of Horseshoe Lake State Park. C 0464, 0489.
    There is no noticeable buffer unless a train happens to be passing by. Compare
    view 2 on page C 0479 (Ex. ABC 8, Figure 9 (with train)) with views 3 and 4 on page
    C 0474 (Ex. ABC 8, Figure 5 (without train)). When there is no train, park users
    Electronic Filing, Received, Clerk's Office, September 17, 2007

    7
    looking to the South would have an unobstructed view of the proposed landfill.
    2
    With
    or without a train, the railroad tracks provide no meaningful visual buffer for persons
    using Horseshoe Lake State Park.
    3
    Nor do the train tracks prevent odors emanating
    from the landfill from migrating to the public use areas of Horseshoe Lake,
    immediately upwind of the proposed landfill.
    B. American Indian Mounds are located on the proposed landfill site and
    ancient human remains have been found at the site
    During its investigation, Waste Management encountered Native American
    sites (sites 1316, 1375, and 1385) on the proposed landfill site. Numerous
    archeological
    and architectural features have been uncovered at these sites. C 1592,
    1593. Ancient human remains, together with pottery shards, were discovered at one
    of the sites. C 2087, 2095
    .
    These pre-Columbian sites are associated with Cahokia
    Mounds.
    C 1593, 2069.
    The contemporary American Indian community opposes the siting of the
    landfill. (C 1589, 2069):
    you are digging into our ancestors, you are desecrating our ancestors,
    especially these burials. . . . This affect [sic] us indigenous people, our
    native people all over the world . . .
    Testimony of member of the Tongva Nation, C 1459
    .
    2
    If there is a passing train, the park users will have to glance upward to view
    the landfill.
    3
    Several years ago, the Cahokia Canal, together with the vegetation along the
    canal, provided a somewhat substantive buffer between the landfill and the
    recreational uses to the North. North Milam has crossed that buffer. See Ex. ABC 9
    (submitted under an offer of proof).
    Electronic Filing, Received, Clerk's Office, September 17, 2007

    8
    C. The site is within 2,140 feet of the Cahokia Mounds World Heritage
    Site and National Historic Landmark Boundary
    Cahokia Mounds is recognized as a State Historic Site; a National Historic
    Landmark; and a United Nations Educational, Scientific and Cultural Organization
    (UNESCO) World Heritage Site. C 1544. It comes as no surprise, therefore, that the
    Cahokia Archaeological Society opposes the proposed landfill because of the
    landfill’s potential impact on Cahokia Mounds. C 2074
    .
    Further, the Powell Archaeological Research Center opposes the siting of the
    landfill because of the importance of Cahokia Mounds as an American Indian Cultural
    Site, a past ritual center for ancient Americans, a sacred site to contemporary Indians,
    and a valuable source of tourism for the state of Illinois. C 2069. The Center believes
    that objectionable smells, sights and sounds associated with the proposed landfill
    would detract from the overall experience of visitors to the Cahokia Mounds Heritage
    Site. C 2069.
    Nor is it a surprise that
    the contemporary American Indian community opposes
    the siting of the landfill. C 1459, 1589, 2069.
    D. The proposed landfill will take eighteen acres of wetlands
    The proposed landfill will take 8.5 acres of farmed wetlands and 9.9 acres of
    forested wetlands. C 1929, 1973. Some of these wetlands are moderate to high
    quality, forested and scrub-shrub wetland. C 1933, 1939. The quality of the
    vegetative and wildlife habitat is moderate to high in these wetlands. C 1939.
    E. No effort was made to determine whether the proposed landfill would be
    compatible with the surrounding area during the landfill’s operation.
    The North Milam Landfill is proposed to operate (initially) for seventeen
    Electronic Filing, Received, Clerk's Office, September 17, 2007

    9
    years.
    4
    Waste Management made no effort to determine whether the proposed landfill
    would be compatible with its surroundings during its operation. C 1025-1026, 1051.
    Instead, its consultant attempted to evaluate only whether the landfill, after it ceased
    operating, would be compatible with the surrounding uses, ignoring the seventeen
    years (or longer) when the landfill would be in operation. Id. For this reason, Waste
    Management did not assess smell. C 1025. Nor did Waste Management evaluate the
    noise impacts that would come from the landfill. C 1039. Nor did Waste
    Management evaluate the visual impacts during the landfill’s operation. C 1051.
    Summary
    For the reasons set forth above, the proposed landfill is not located so as to
    minimize incompatibility with the character of the surrounding area.
    II. The proposed landfill fails to meet the siting criteria because it is not
    necessary to accommodate the waste need of the area it is intended to serve
    A second siting criterion Waste Management must satisfy is whether the
    proposed facility is necessary to accommodate the waste needs of the area it is
    intended to serve. 415 ILCS 5/39.2(a)(i). To satisfy this factor, an applicant must
    demonstrate an urgent need for the new facility as well as the reasonable convenience
    of establishing a new landfill.
    File v. D&L Landfill, Inc.,
    579 N.E.2d 1228, 1235, 219
    Ill. App. 3d 897, 906 (Ill. App. 5
    th
    Dist. 1991).
    According to a 2005 landfill capacity report, the proposed landfill falls within
    Region Six. C 1445. Region Six landfill capacity increased by almost 33.9 million
    gate cubic yards (29 percent) from the previous year. C 1445. Further, landfill
    4
    The existing Milam landfill, on the southern side of Cahokia Canal, has expanded at
    different times since first being permitted, the latest expansion being the subject of a
    previous siting appeal by petitioners. PCB 01-159.
    Electronic Filing, Received, Clerk's Office, September 17, 2007

    10
    operators in the Region reported 17 years of capacity remaining for waste disposal. C
    1445. Because Metro East landfill capacity increased 29% from the previous year,
    and seventeen years of landfill capacity remains, there is no urgent need for North
    Milam.
    Cf. Waste Management of Illinois, Inc. v. Pollution Control Board,
    530
    N.E.2d 683, 691, 175 Ill. App. 3d 1023, 1033 (Ill. App. 2
    nd
    Dist 1988) (no need for
    proposed landfill where nine years of capacity remains).
    Summary
    The application fails to meet two of the siting criteria. The application should
    be denied for this reason.
    III. The City’s siting proceedings were not conducted in a fundamentally fair
    manner because A. Waste Management failed to present evidence during the
    public hearing of the Native American Mounds discovered at the site and
    petitioners were precluded from examining Waste Management’s witnesses
    about these Native American Mounds; B. Waste Management failed to present
    evidence during the public hearing about wetlands at the site and petitioners
    were precluded from examining Waste Management’s witnesses about these
    wetlands; and C. There is no written decision of the City specifying the reasons
    for its decision
    A non applicant who participates in a local pollution control facility siting
    hearing has a statutory right to fundamental fairness in the proceedings before the
    local siting authority. 415 ILCS 5/40.1 (a);
    Land and Lakes Company v. Illinois
    Pollution Control Board
    , 319 Ill. App.3d 41, 47, 743 N.E.2d 188, 193 (Ill. App. 3rd
    Dist. 2000). The right to fundamental fairness incorporates minimal standards of
    procedural due process, including the opportunity to be heard and the right to cross-
    examine adverse witnesses.
    Land and Lakes Company v. Illinois Pollution Control
    Board
    , 319 Ill. App.3d at 48, 743 N.E.2d at 193;
    Daly v. Pollution Control Board
    , 264
    Ill. App. 3d 968, 970, 637 N.E.2d 1153, 1155 (Ill. App. 1 Dist. 1994)
    .
    Electronic Filing, Received, Clerk's Office, September 17, 2007

    11
    A. Waste Management failed to present evidence during the public hearing of
    the Native American Mounds and ancient remains discovered at the site and
    petitioners were precluded from examining Waste Management’s witnesses
    about these Native American Mounds
    The proceedings before the City of Madison were not fundamentally fair
    because Waste Management presented no evidence of the on-site Native American
    Mounds during the public hearing and, at the hearing, petitioners were precluded from
    inquiring into these Native American Mounds.
    At the public hearing, petitioners attempted to examine Waste Management
    about the Native American Mounds discovered at the site:
    Q. Are you aware that there are at least two mounds and a burial site
    and countless artifacts at the site?
    Mr. Moran: Objection, beyond the scope of his direct. It’s also not
    relevant.
    Hearing Officer: Sustained.
    Q. If you knew that there were mounds on the site would you consider
    that compatible?
    Mr. Moran: Objection, same basis
    .
    Hearing Officer: Sustained.
    C 1045-1046.
    5
    Rather than submit any testimony, data, or information about these Native
    American Mounds at the public hearing, or allow its compatibility witness to be
    questioned about these Mounds during the hearing, Waste Management submitted its
    5
    In advance of the public hearing, an archaeologist had prepared Ms. Andria to
    examine Waste Management’s witnesses about the Native American Mounds. Tr. 22-
    30; Ex. ABC 11, submitted under an offer of proof.
    Electronic Filing, Received, Clerk's Office, September 17, 2007

    12
    data toward the end of the public comment period. C 1591-1928.
    6
    Because Waste
    Management failed to present any evidence of these mounds during the public
    hearing, and petitioners were precluded from questioning Waste Management’s
    witnesses about these Mounds during the public hearing, the proceedings before the
    City were not fundamentally fair.
    Cf. Land and Lakes Company v. Illinois Pollution
    Control Board
    , 319 Ill.App.3d 41, 51 743 N.E.2d 188, 196 (Ill. App. 3d Dist. 2000)
    (material submitted on last day of public comment period was harmless where Waste
    Management’s witness relied on the material in testimony before County Board).
    B. Waste Management failed to present evidence during the public hearing
    about wetlands at the site and petitioners were precluded from
    examining Waste Management’s witnesses about these wetlands
    The proceedings before the City of Madison were not fundamentally fair
    because Waste Management presented no evidence during the hearing of the wetlands
    on the site and petitioners were precluded from inquiring about these wetlands.
    During the hearing, petitioners attempted to examine Waste Management about
    the wetlands at the site:
    Q. Do you find it incompatible to destroy wetlands to build a landfill?
    Mr. Moran: Objection, same reason.
    Hearing Officer: Sustained.
    C 1015. See also C 1016.
    Rather than allow its witness to be examined during the hearing, Waste
    Management submitted its data about the wetlands toward the end of the public
    comment period. C 1929-2068. As with the Native American Mounds, because
    Waste Management failed to present any evidence of these wetlands during the public
    6
    According to the City’s Mayor, the City of Madison relied on the data submitted by
    Waste Management toward the end of the comment period. C 2246-2247.
    Electronic Filing, Received, Clerk's Office, September 17, 2007

    13
    hearing, and petitioners were precluded from questioning Waste Management’s
    witnesses about the wetlands during the public hearing, the proceedings before the
    City were not fundamentally fair.
    Land and Lakes
    , p. 10,
    supra
    .
    C. There is no written decision of the City specifying the reasons for the decision
    The decision of the local siting authority must be in writing and must specify
    the reasons for the decision. 415 ILCS 5/39.2 (e);
    Land and Lakes Company v.
    Illinois Pollution Control Board
    , 319 Ill. App.3d 41, 45, 743 N.E.2d 188, 191 (Ill.
    App. 3d Dist. 2000). See also 415 ILCS 5/40.1 (a) (Board shall include in its
    consideration the written decision and reasons for the decision of the local body);
    Accord Town & Country Utilities, Inc. v. Illinois Pollution Control Board
    , 225 Ill.2d
    103, 109, 866 N.E.2d 227, 230 (Ill. 2007).
    7
    Cf. Clutts v. Beasley
    , 185 Ill.App.3d 543,
    544, 541 N.E.2d 844, 845 (Ill. App. 5th Dist. 1989) (County Board’s written decision
    that recited criteria for approving landfills was adequate).
    There is no written decision of the City of Madison here that specifies the
    reasons for the City’s decision to approve the landfill. The only writing is the City of
    Madison City Council Meeting Minutes from February 6, 2007:
    It was moved by Alderman Grzywacz, seconded by Alderperson
    Armour, to approve the Waste Management Siting Application dated
    September 22, 2006. Roll call vote as follows: Yeas: Armour, Bridick,
    Grzywacz, Riskovsky, Hampsey, Vrabec, Gardner, and Treadway.
    Nays: None. Motion carried.
    Even if the City’s minutes were sufficient to be considered the “writing”
    required by the siting statute, the minutes fail to give any reason for the City’s
    7
    Similarly, the City of Madison’s ordinance provides that the decision “will be in
    writing and specify the reasons therefor . . .” C 0008A.
    Electronic Filing, Received, Clerk's Office, September 17, 2007

    14
    decision. For this reason also, the proceedings conducted by the City of Madison
    were not fundamentally fair.
    Conclusion
    The application fails to meet two of the siting criteria. The proceedings
    conducted by the City of Madison were not fundamentally fair. Waste Management’s
    application for siting approval should be denied.
    /s/ Bruce A. Morrison
    Bruce A. Morrison (Il. Reg. No. 6279301)
    Kathleen G. Henry
    Great Rivers Environmental Law Center
    705 Olive Street, Suite 614
    St. Louis, MO 63101-2208
    Phone: (314) 231-4181
    Fax: (314) 231-4184
    Attorneys for petitioners
    Electronic Filing, Received, Clerk's Office, September 17, 2007

    15
    CERTIFICATE OF SERVICE
    The undersigned hereby certifies that on the 17th day of September, 2007, a
    complete copy of this instrument was served upon counsel for defendants by e-mail to
    the addresses below.
    Donald J. Moran
    Penni S. Livingston
    Pedersen & Houpt
    Livingston Law Firm
    161 North Clark Street
    5701 Perrin Road
    Suite 3100
    Fairview Heights, IL 62208
    Chicago, IL 60601-3224
    penni@livingstonlaw.biz
    dmoran@pedersenhoupt.com
    John T. Papa
    Callis, Papa, Hale, Szewczyk & Danzinger, PC
    1326 Niedringhaus Avenue
    Granite City, IL 62040
    jtp@callislaw.com
    Carol Webb
    Illinois Pollution Control Board
    webbc@ipcb.state.il.us
    /s/ Kathleen G. Henry
    Electronic Filing, Received, Clerk's Office, September 17, 2007

    Electronic Filing, Received, Clerk's Office, September 17, 2007

    Electronic Filing, Received, Clerk's Office, September 17, 2007

    Back to top