1. APPENDIX?D
  2. PUMP?TECHNICAL?INFORMATION
  3. APPENDIX?E
  4. HISTORICAL?SOIL?BORING?INFORMATION
      1. A.??NSWRP?UV?PILOT?PLANT
      2. A.??CWRP?CHLORINE?CONTACT?CHAMBER?DEMOLITION
  5. DISINFECTION?COST?STUDY
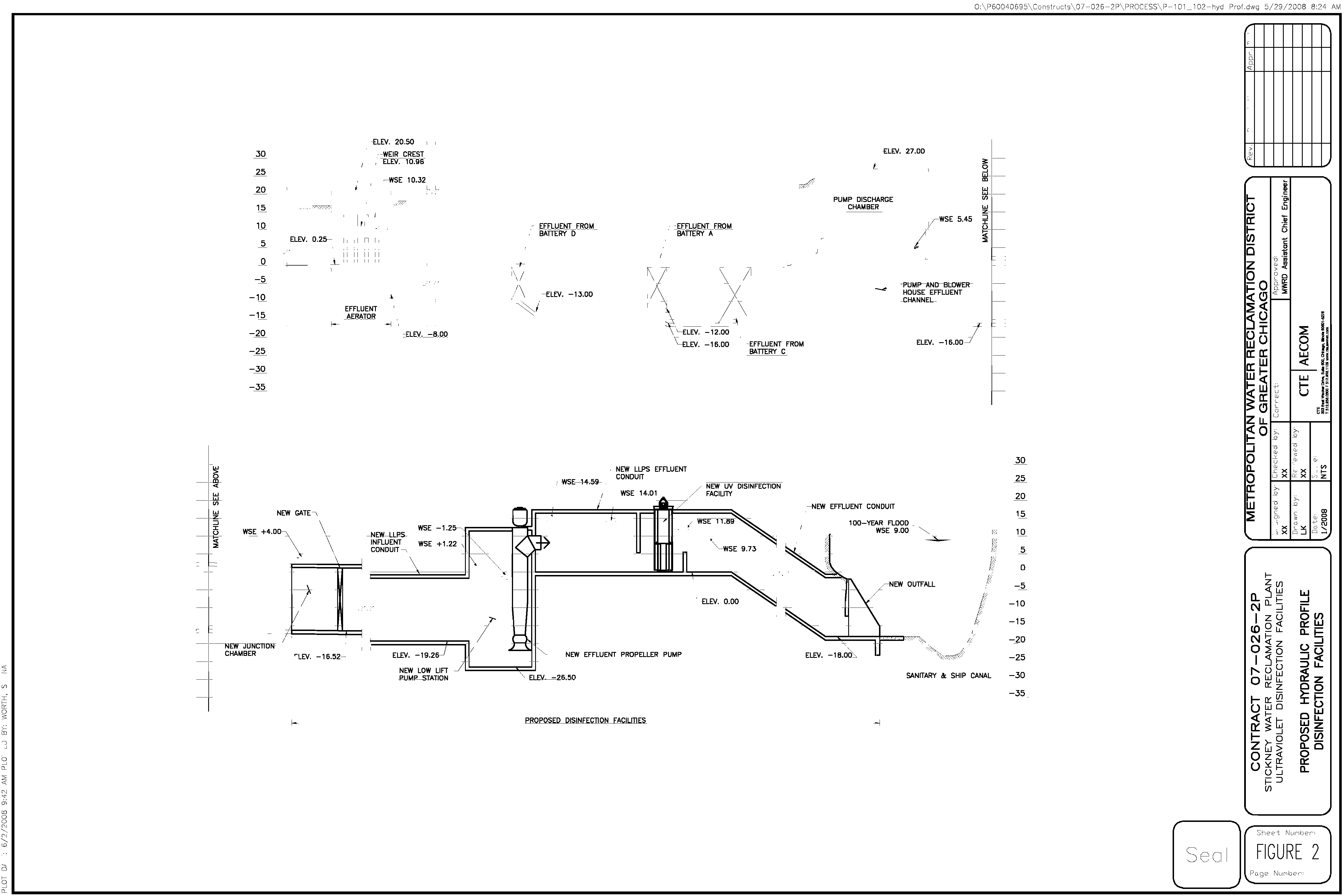
  6. HYDRAULIC?EVALUATION
  7. METROPOLITAN?WATER?RECLAMATION
  8. DISTRICT?OF?GREATER?CHICAGO
  9. STICKNEY?WATER?RECLAMATION?PLANT
  10. TECHNICAL?MEMORANDUM
  11. June?2,?2008
      1. 303?EAST?WACKER?DRIVE,?SUITE?600
      2. CHICAGO,?ILLINOIS?60601
  12. MWRDGC?Project?No.?07-026-2P
  13. CTE?Project?No.?60040695
      1. TABLE?OF?CONTENTS
      2. LIST?OF?TABLES
      3. LIST?OF?FIGURES
      4. LIST?OF?APPENDICES
      5. 1 INTRODUCTION
      6. 1.1?? Objective
      7. 2 PROPOSED?FACILITIES
      8. 2.1.1?Site?Constraints
      9. Conditions
      10. 3 HYDRAULIC?ANALYSIS?OF?THE?UV?DISINFECTION?FACILITIES
      11. 4 UV?DISINFECTION?FACILITIES
      12. Table?3?–?Design?Parameters?for?UV?Disinfection?Unit?at?NSWRP
      13. Parameter Design?Value
      14. 5 LOW?LIFT?PUMP?STATION
      15. Table?4?-?Low?Lift?Pump?Station?Basis?of?Design
      16. Pumps
      17. Table?5?-?Summary?of?Pump?Operation
      18. Flow,?MGD Pump?Drive?Type Pump?Flow,?gpm
  14. APPENDIX?A
  15. Site?Plan?from?the?SWRP?Master?Plan
  16. APPENDIX?B
  17. Selected?Pages?from?USACE?CUP?DDR
  18. DESIGN DOCUMENTATION REPORT
  19. CHICAGOLAND UNDERFLOW PLAN
  20. ---- ...-
  21. APPENDIX?CLLPS?Proposed?Layout

APPENDIX?D

Back to top


PUMP?TECHNICAL?INFORMATION
Electronic Filing - Received, Clerk's Office, October 20, 2008

MORRISON
PUMP
COMPANY
September 21, 2007
Cathy Busking
Dusking Engineering
627 S. Euclid Avenue
Oak Park, IL 60304
RE:
MORRISON BUDGET QUOTE NO. 27151
MWRDGC Effluent Pumps
Dear Cathy,
MPCNo; BQ-27151
Morrison Pump Company is pleased to provide this Budget Quotation for Pump Equipment for the
MWRDGC Effluent Pumping Project, as
per our pump selection emailed to you on September 11, 2007.
Pumps are
per typical municipal, final effluent pump specifications, and per Hydraulic Institute Standards.
Specifications are attached.
Equipment
Six (6) Morrison Vertical Pumps Model VP8-54-47-o2,
with 250 HP @ 325 RPM Vertical Electric Motor Drivers,
Motor Control Center with VFDs,
each pump providing 78,000 GPM @ 7.5 Ft. TDB
Total Budget Price
$ 3,500,000.-
Pricing
is
to be understood net, delivered to site, without applicable taxes. Included with our equipment are
complete technical submittals, factory performance testing, delivery to site, field services for installation
&
start-up,
and
one year standard warranty.
Sincerely,
Jorge M. Cortes
2514 Hollywood Blvd. #105, Hollywood, FL 33020
(954) 922-5880 Tel.
(954)
922-n29
Fax http://www.morrisonpump.com
Electronic Filing - Received, Clerk's Office, October 20, 2008

GENERAL PUMP LAYOUT
(
~
"'\
I
i
\
FLOOR OPENING
8Ftx8Ft.
r EL+19.5Ft
,." .
L
;.
.
r EL +15.5 Flo
~.
:
.~~
•••• P ••:.;"
~'.:
:'. • '0
~
OJ
r
._
..
_-
f).
~
. ""
:
'"
~
..
.-
<5
.
...
~
"
:
'---'-
.
flo
.
".
.-
..
'.
"
o.
~"
'.
~~
Po
pO
ot!;'•
. ". ..!
.."0
:-:..-:....J
EL+8.0Ft l
FLAPGATE\
054-in.
EL+11.
92F
1
m-Jf-:..-+-rn--.!t--,...-+
..
"
•• "0
.fIo
I
:
"
r EL-4.83Ft
_....:...--
r EL-7.5Ft
.,: ..
.
. :.4
.
pO
'",
'!....
.,
~ ~.:.:
"'~"
-
NOTES:
- LAYOUT IS FOR GENERAL REFERENCE ONLY.
- FLOOR OPENING REQUIREMENT
= 96"
x
96" SQUARE; PUMP BASEPLATE = 116"
x
116"
- PUMP DISCHARGE
= 054-INCHES.
- PUMP SUCITON BELL
= 081-INCHES.
- ELECTRIC MOTOR
= TEFC, VSS, 250 HP @ 325 RPM, 460VI3PH/60HZ
•.
• ..
.
@2007ALLRlGHTSRESERVED.
.
MORRISON PUMP COMPANY,INC.
ORRISON
M .. ... ..••
. PROPRIETARYANDFORGENERAL
THE INFORMATION PROVIDED IS
PUMP COMPANY
REFERENCE ONLY.
DWG. TITLE:
Monison Pump Model VPS-54-47.Q2 - Station
layout
ALE NAME:
MWRGC North Side Water Reclamation Plant.CTE Engineering
DWGNO.:
DWG-27151.Q02
DATE:
11-SEPT-2007
Electronic Filing - Received, Clerk's Office, October 20, 2008

GENERAL PUMP DIMENSIONS
1-------9'-8"'-------..
rl rn r'\
55"--..---t----t--
24'-4"
16'-9"
I\
NOTES:
- DIMENSIONS ARE FOR GENERAL REFERENCE ONLY.
- ESTIMATED PUMP WEIGHT
= 20,000 LBS.
- PUMP INCLUDES REMOVABLE (SPLIT) BASEPLATE, 116" X 116" SQUARE
_
02007 ALL RIGHTS RESERVED.
. . .
MORRISON PUMP COMPANY, INC.
lliE INFORMA11ON PROVIDED IS
MORRISON
PROPRIETARY AND FORGENERAl
PUMP COMPANY
REFERENCE ONLY.
DWG. TITLE:
MOllison Pump Model VPS-54-47 General Dimensions
ALE NAME:
MWRGC North Side Water Reclamation Plant. CTE Engineering
DWGNO.:
DWG.27151-D01
DATE:
11-8EPT-2007
Electronic Filing - Received, Clerk's Office, October 20, 2008

Pump Performance
Axial Flow Impeller, Single Stage, High-Efficiency
Project No.:
Project Name:
Date:
27151
MWRDGC North Side Water Reclamation Plant - CTE Engineering
11-September-2007
16
14
.......
it
.......
12
"'C
ca
Q)
10
J:
(.)
.E
8
ca
~
0
6
"'ffi
I-
15
4
2
~
r----.....
~
-
-....
----.
r--...
-
~
---....
~
r----
-...........
...........-.
.........
--.....
-...........
~
.........
r---
---...
j"--.....
--
~
-...........
...............
--..
---...
r----
~
-
...............
-
240
220
200
180
.....
a..
.......
J:
160
r...
a..
~
140
I
120
100
o
70,000
75,000
80,000
80
85,000
Capacity [GPM]
Pump Bowl Model No.:
Impeller Diameter:
Shaft Speed:
47-02-CH
46.9 in. (1190 mm.)
325 RPM
MORRISON
PUMP
-~
COMPANY
10 2006 All rights reserved. Morrison Pump Company, Inc.
The curve provided Is proprIetary and for general reference
use. only. Plesse consult factory (or specific pump operating
characteristics
and certIfied performance curves.
Electronic Filing - Received, Clerk's Office, October 20, 2008

Pump Performance
Axial Flow Impeller, Single Stage, High-Efficiency
Project No.:
Project Name:
Date:
27151
MWRDGC North Side Water Reclamation Plant - CTE Engineering
11-September-2007
16
14
.....
..,.;
12
-
"0
u.
co
Q)
10
:c
(.)
'E
(0
8
c:
>-
0
6
m
"0
I-
4
2
....
---
--..
r--..
r---....
----..
~
---.
r--..
I"---
---
---
----..
r---
---
----
40
35
30
25
20
-
~
0::
:c
en
a.
15
z
10
5
o
70,000
75,000
80,000
o
85,000
Capacity [GPM)
Pump Bowl Model No.:
Impeller
Di~meter:
Shaft Speed:
47;'02-CH
46.9
in. (1190 mm.)
325 RPM
.~
MORRISON
PUMP COMPANY
02006 All rights reserved. Morrtson Pump Company, Inc.
The curve provlded IB proprietary snd for general reference
use only. Please consult factory
for
specific pump operating
characteristics and certlfled performance curves.
Electronic Filing - Received, Clerk's Office, October 20, 2008

Pump Performance
Axial Flow Impeller, Single Stage, High-Efficiency
Project No.:
Project Name:
Date:
27151
MWRDGC North Side Water Reclamation Plant -
CrE Engineering
11-September-2007
16
14
LL......
~
-
12
"'0
ca
Q)
10
J:
u
'e
c:
ca
8
>-
Q
6
(ij
.-
"5
4
2
------
~
--....
~
..............
-
~
-.......
~
i"'---
...............
--....
r--..
...............
~
.....
,
r-.........
-
-
"
...............
i'..
~,
-
~
.....
100
95
90
.....
......
'#.
85
~
c:
Q)
'0
80
IE
w
a.
75
E
;:)
a.
t
t
70
65
o
70,000
75,000
80,000
60
85,000
Capacity [GPM]
Pump Bowl Model No.:
Impeller Diameter:
Shaft Speed:
47-02-CH
46.9
in. (1190 mm.)
325
RPM
MORRISON
PUMP
C0!"lPANY
=2006 All rights reserved. Morrison Pump Company,lnc,
The curve provIded Is proprietary and for general reference
use only.. Plesse consult factory for specific pump operatlng
characteristics
and certified performance curves.
Electronic Filing - Received, Clerk's Office, October 20, 2008

Back to top


APPENDIX?E

Back to top


HISTORICAL?SOIL?BORING?INFORMATION
Electronic Filing - Received, Clerk's Office, October 20, 2008

+
~.
__
~~_~,
•• K_._ ......
• ..._,
.. -:...-.....:..--"'""-'--__
=->"~
........
*.,
.:-_"~._k,",-t.f-:.....0-!a.'(
+
(
+
N
SCALE I" .'160'
€24'
J
L COKNE/? FENCE Ri)ST
-f
FEC-l
(
OBSERVATION
WELLS
BORING NO.
ELEY. OF
~
BRASS TIP
fST-II
- 9.00 c:c.o.
PST-S
-12.50
c.eJ).
FST-6
• 9.25
c.c.o.
TFB-4
- 12.50 c.c.o.
'+
,f8"'
Y
,I
I
! :
I
1+
LEGEND
I ;
EXISTING {30REHOL£S
I :
+
OBSERVATION WELLS
i I
H.s.o. MONClMEIlfT
I
'+
+
+
1
NOTE.- N.I.C;.FUTLIRE.
WORK
NOT
J~
THIS C.OIJTRA(.T
I
NORTH SIDE SEWAGE TREATMENT WORKS
CONTRACT 7.8-020-CP
SECONDARY
rR£A!.("~
fACll~TI(S
BORING. LOCATION PLAN
«
SCALES SHOWN 'ARE
SCALES OF
TRAC.IHGS
nAT
S:i
&,itD
METROROUTAN
SAIIT'AHY
DISTRICT
OF . Ga-EMtR CH.ICAGO
THE
RETA ENGINEERSI AJOINT VENTURE
CflCAGO
.
(
Electronic Filing - Received, Clerk's Office, October 20, 2008

]5 55-1
_ T-ll 30 30-
15b-12
Soft Cr Silty CLAY..
llt.t:le f-e sand. uaot.
t.
cra.vel:;:
pbk Silty O"'r pocket.:. noted.. Silt
layers noted.
::=f~C:~:I.UJu,
4~~"4O:
-~
End
of Bor.t\.9
2 ..
2.....3< 2 •
26-28.5
21-23..5
23.5-25 2
1---1---1-++-
f-t-
..
::: c= ::
:::.=~..1
SOtL tOt:HTJFtCATIOft • OItIt.U:RS
MOtu;,
:aWL
SUftfACE PElf fT .f'AOII-TO ;
H
-III-
l"OC&TE El.[VATtON OF STA.lT4
CHANGE
\.JP ..yorE
~N
1!.I£"c.
SAWt.
..5SS-2 .
• S-1
§,:8=7l'
•• sr--5 jJo- 20.
2. 6-. 110. 12.
PUb Blkf' Yd-llr
~
Gr
Silty
CLAY. llttl.. t-c
sa:nd,. b:ace
f-c
Gxavel:;:
c.uukn, roots, wood,.
~
oEgaDic aaterlal coted:.
sl1~
seillU
,m.;l podtets
rao«d,
$.aDd layer at;
~8·
..
s
1 12
6
8
.5-10
l-U..S
-2..5
.....
......
13.5-15 2 J"
f--+--+-+-+--l
10
15
""'rH,
'~"'I~
$AIlF1.£
aows n_ r
SOt\.
IDEJdIFIC&TION • OfIM-t.PlS MOlES
8ElOW I
"-O\JI$
Of:PTHS
Oft
SAMPl,.1:1t
SUM'AC£l"EIt FT
fROIII~TO
0-& S-iZ
....
WES!ENHOFf
a
NO\IrCK. tHC
.-
~1J
30 20
..~
.......1-+--1-1--1
.'~1l
Gc
t-c
~r
utt.1.0
~-.
(in.ve..L"
1i~le
Silt, U'ace ClAy..
6-28..5
8.5-30 ....
:t.S-25
2 2
2sr--,3010"
!k:QJ.ta Q'
S1"-ty"
~a"
.I,.I.~".LCJ
,,--c
Sand, uace
f.
Cravel..
I--~---I-.
-
~
-~
~-+--+_+_+_1~:~
:..:.;~
C••• :1.
End of IOriag-..
25
f£C
-I
r==~~;;;;-;;:;;:-----------:==-=--"""-'
f--
P1.11:
DE.
G:r £. Yel-pr C1&yey Slla'
~d
Yet-BC' So eu. SNm. 11t.U.
f-.
Cr,w.W"h blk
C'~
noted.
-2.5
2
Silt layers noted" Grave1 (fill)
SS-
layer noted:.
.$-5.0
)
- ss-2
S
'-".s
6
1 10
- ss-)
8..5-10
10
""
Veri Stift Tel-Bt' .c)t.t:1ecl t;r Silty
ClAY. Ut.tl4l: f-e Sandi. uacs f-a
Gravel, Silt: layers hOte4.
11-13.. 5
..
-
-
-
-
.0 sr-4 30
..
"
Medi~
t:o sUff Gr Clayey SILT. litt.t
1.
• 13..5-15. 5
1
9
f-e~,
trace- fO'
Gr:..
vel.
" ss-'
"E.....lIt.S:,
~a~":...::-_Ho_""_CO.:_""_ry_=_
80R1NG HOoP!£::!
AE....JlIIS.-------------'-------OORING
HO.~
20
16-18.
1....... 2
2 2
Soft
Cir
Silty CLAY.
utt.lo J:-c
~anQ"
tE'ace
f ..
Gravel.
5 ST-6]Q 2S
.s ss--
R£M&1UrS"--------------------SORlHG
NO.fS:l
..
16-18.5
18.5"'-20 1 15 2-4
.. S0f001 30" U.
- ss-a
IIIlldltll$;
..:..
~-----..,....------80ftINfi
No.~
-----------.,----------------$"(£1'_0'_
-----------------------'...n_"'_
---'--------------------...n_o<_
-----------------------$"((.'1'_0'_
~41>'r-10
36
30-
• /;s-u
25 S'I'-8 36" 30
:1S ss-9
KecJitSll
GE'
Silty cpr"
Ut~e
f-e sand, trace f-d. Gl"a..el..
8 ..5-)0
2
Z
26-28.
23.S-25 2 2
..
I:MAIllk'5~------------------..,....-BOR1N~
No.~
-----------------------$tlEU_Of_
25
::: :.sc: =:
::-ss:.u:.~
son.
IO£N1lF~nO"
o~E.$
HOltS
P#'J~"P'"
SUltf~
PElf fT
FflOM-lO
0-6 C-e:z 17...
1fOCATE e:L£VATtOfI OF STAA,T& ,".IM;f;
i:a"" 'yn
"f'N 1AEc.
----~-------------------
....n_o<__
RtVlSIONS
THE METROPOLITAN .'SANITARY DISTRICT
,~
_~";.;..O.-+..;;0A.;;TE+
..
IY~-------~OUF_~6::R~EaA.!.T~ER!.!-~C~H~I~C:;:.A~GO~
-I:~:::.~
~
NORTH SIDE SEWAGE TREATMENT WORKS
./
~
....
CONTRACT 78.;.020-CP
~
..........
SECONDARY TRUTtUN'
fActUms
/.
CIlitl
bfiloMt
SCAl.ES SHOWN ARE.
RETA ENGINEERS
I
A ...OINT VENTURE
BORING lOGS
SCALES OF
TR.A~INGS
. CHICA
__
GO
---------------
-I_"J.,_.J...JL';!les!qn!d;g;;;;I>;;;:.W:-m!I:lo-:R;,c,;U;;;;;;;;;.eI,Cl>ec1<td=~fl.;;W.:;&:;.
;lll;lllo:;.;:..ed~_~;gID:.AT~E~;A~P~R~
••U't,J.:19t,!8!,!6:....J.
IS~H~E~E~T....':N.~O
...
~2-C~- 4~3W
..
Electronic Filing - Received, Clerk's Office, October 20, 2008

5J2617!
.............
...
slum
......
c.
WESTENHOFF
a
NOVICK.
INC.
~orISULTING
ENGIltEERS
FIELO BORING LOG
....,.LGf'..L-.
~CT IQ~PQO.JECT
"&111£ 1\
LOCUJOII Bortb Side SMyJge
Treo,.....nt WJrl:s stet!e
Th
cur...,. lCetl'oeoliun SaRlpry Dlsuict;
of
Cc'eatett ChlC!'lo
80RaNG
NO.
ttt=t
BORSffG
'C.)I'I!R~CI'O'I'
Rayeona
Iaternat.!coal TvP£
atI3
om
t.OC&'POff
--+--+-+-f-t----------HI-+--I-I
5g.ft Gco. :;Ut;y
e:tA.Y..
llU1e
t--e
1--~I,..-~2],...~$+-+-f-l
~.
h:ace
t ..
cravel.
:::
~o: ~..:~::
sow..~,..
DlW.t:ltS
NOns
1-r...
="C:.~'l,---I
SUllf'ACE. '"£tI
n
",,*",fO
~...,..
..cJlQT£
~tJc)Iit
fW
sn,&1'4 C*JtC,£
~
"11'£
~
Me:.
.50 SIr-
ruis elk, Yd.-SE' 5 GE" SU:tr
(lAy,. U.U;1. (-..; saM,. UKe
f"...
Cravel, e1Jlders aAd. SUe
1-2.5 t:
9 U
Pyen. AOtc4.
(
3.5-05. 2
3
«
2
-2
25
).5-25 1 1
2
a 5-10
'.5-
5_0
.J" 6
o
SS-2
6-8.. 5
~)
10" 16
lIea1ua Q'Sl1tr CIAY. 1it:el.
1--+--++-1_1 f""'C sana. uace
t __
(;c'avel..
6-28...5
6.0-
8.'
CZ'
-ottle4 'l'el-erSUt)' a.AY.. uu1c
I--+--t--+-t-f
~~r~e:~"'7 =e~~~7t-t-_f-'lr--t
10
IS
.5-10
2
2
2
t--t---t--
f- -
1-13.5
f-I-
U.~1S
S
7
a
Very Stiff Gr
"'~!CI 1Ecd~.
1'• .1....
k Silty CE.A.'t.. Utt1.
t-e
san4,
b'at*
f.
cn.vel.
StU: <Or etayer SIU'.. littl.
f-e
Sand. trace
t ...
Gravel.
.2 $s-.
.2 "'-$ 30" 2."
.2 ss-6
B.. S-3D 2
2 .J
1--11--1-- C-
~
--
is
a..s;
11.:-
s-t
~_
,ft. , ••
...
16-11..5
2S "" 1....1 ..•
1t£...-.s;--------oO----.,..---------,BORING NQ.!!:.!..
.t........
s.
""""-.::-..
Ilo!!!..!...cov""""""enOL
..:.._
89IiIHG
H<L~
20
18.$-20 2
2
~
"_diu.. Cr Silty CLAY,
Itt:t.l~
f-e Sand,
tr~c
..
t-.
Czoa".l_
......
as"--------------------,8OftIM~
MG.~_I_.
20.0
1
1
2
..2 SS...1
------------------------.'"(£T_OI'_
------------------------SHl:£T_0'__
-----------------------5H(.ET_M_
506
0
7
.......
WESTENHOFF 8 NOVICK. INC.
CONSULTING EHGtfolEERS
F'IEt.O aORING t..OG
$tf(ET...1...Gf'~
PAO.lfCT 1NO--22.01
"-OJ(C::-".wt: A UXATtON
!forth
Side $'1W'ft
Trp" .........t
»,rk-
Skokie
n
CU£",T
tSeltrOFOUton
~nitGrr
District. of
~Atce
Chicago
BORQflJ
NO.
'l'FB-1
eoR_1IcG
C·)!t!,"C.Cl';)"~
I ..
lc:rnaU.ona~
'1'Pf:
Itni
eKE
ux;a1lQlf
50fi
az
sm
oz
WESTEHHOfF
a
NOVICK. INC.
COHSULfUiG ENGINEERS
"tELO BORING LOG
~£f-!..(;."_'_
PAGJ£c:r
"O~I>qQJ(Cf
"oWE"
LOCAtrO'f~i4fCSMBge
Trc...""nt
Mgt):,.
S1tnlrfe
It
CUE"T IletropolUan Sanlhry Oistsolct
of
Gceat.~r
Chicaqo
BORWG NO.
TfB-l
~ c.".nt-.cI';)R~
IntcrnationelI'YOoE ...:i
eKE
LOC&OOl'4
2S
C';;;;ir.
/"
,
...
.......
/
~
............
DISTRICT
SIDE SEWAGE. TREATMENT WORKS
CONTRACT 78-020-CP
SECONDARY JREATMEIIT FACiliTIES
METR'OPOlIJAN SANITARY.
OF GREATER CHICAGO
NORTH
THE
....
IIEV1SIliIlS
ss-
llO.
DATE
29 ) 27
End of Borina
S 2)
Ked1..
to sun Cc Silty CtA'r. little
f-c
sana. trace
f __
C:raV'el_
..
41.0-
ST-
43.5
.0 ••
].
2."
"'5
43.5-
.. 0
3
4 S
..
~
<6.0-
48_5
.s<
~
oense
\:0
Very oeDSe Gr SILT, sc.e
JO
18.
f-c:
$Md.. little
f-.
Gravel.
4B..5-
ft
><
"
I~
Very l)e1l54t
Gr
Clayey SlL1'. little f-c
52.5
'1-0-
20 2'5 37
and
sana,
pot;k~
t:Pce
DOt"td.
~
... Gravel; 9rSitt &eata$'
20
-
53~S-
ss-
".n
2. 3
21
very J>ens.o; Gr snT, $oae f-c Saa!!,
l1ttl.
~
Graye:l.
~r
...ce Cla7:
.c.;alaS of 9r..
Cl.:f~J'
SlIt: Doted:.
56
51..
.. 0-
5
27
3244
.s<I:-
58.5-
60.0
----------------...,.--,----......_0'__
4S
60
so
SS
SS-9
7515
~.-
.7 14
I].. , ••
J6..0-
]8.5
]8.5-
4O..n
7
1;:;-
~
...ua_~
~.i..I.~
......IU, ...
.I.~~.I..
~-e
~JIQ,
tc.ce
f
Gravel..
25
ST-
10
O. 28"-
~~::-
I>
~-
Hediua to Stiff"
ex-
SUty CIAY... little
f"""C $a.n4.. Uac.!:
f
Gravel..
31.0-
-
)3..5
.<12
~.
2..
~~-~-
S
7
8
Mediua
to ac.eto
f-cSHff
san«,
Gr
ttace
Clayey
f'-m
SILT
CCavel.
... little
-
2
5
13
ftE....
R"S;-------='-------------,80Rl~G
HO.T!.!:!
------------------------SHEET_ OF_._
1...-. ',no 2..
JO
40
RETA ENGINEERS
I
A "OINT VENTURE
1-..
CHICAGO
.......
_
Dot!lplec!
D.W.
IDlown
-~.
-
'BORING LOGS
SCALES
SHOWN
ARE
SCALES OF TRACINGS
Electronic Filing - Received, Clerk's Office, October 20, 2008

Electronic Filing - Received, Clerk's Office, October 20, 2008

..,.
T7P£
f'£'"
lR£c.
W£STEHHOfF a NOVICK. INC.
Clf:PfIt c.sIHG
~
et.OW$
nq..
SOtl.
UHrtne:4'hOH
a OIOtU.£RS HOlE:S
Kw.
1It.0lII$
D£"f't4$
0"'1
Sl","-£.
~
SURFAC£
.-n n
f'IIOU-TO O-C".J1J
lfOC.fE ELEva1lOft OF S:IIAm OWtGE
WESTENHOFF
a
NOVICK.
WC.
OE""" CAS"" $&.W\..E kOWS
f'OI
~
aE~
!lIl.OIIfS
OUJMS 0It $MIPl.Ea
SUMA« 1'£"
'T fJIIOIt-to
Ow5 6-JZ -..
CCNS\lU'NG EHGUlEERS
flEl.D 8OAING- LOG
$tEET~GF-l..-
fIAO.E:Cf
IfO~PQO~C1'
,..W;
ft, ananol'! tIM" Side
$MSC Tr..,.tment Mart... S'cok(e'
D
CUECF Metropel1t.an
~iUrY
District: of Greater Chlci:&gO
80AING NO.
tf'It=I
I!!IIO'IdIG
~~1JII&C1'i)ft
!ayaonc! Ihteraatiort&l TWP£ AI3
CHE:
LOCAflON
I
== ==::::=:
sort.
IIOt"tnlf)C&nt)H • OftILLU$ MOl£S
......
$URf~
P(1If
fT
fAOM.fO
0.. I-IZ'
~.
HXCU£ EUV.uiOtf Of" Sl"ar. c>ta"",
CONSULTlffiG ENGlN£ERS
f't£LO BOIliNG LOG
~'I'
..!...GI'"_~_
:=r
:~~~;;'~~t:r~~ ~u:~g;[;=9"
XrMOO=
=~'dr
lie
.._-••
-_._.-~-~-~_._-
-- ••••• o' ,.".- •••••••
_-~--
._.
-_.~---~'--_
......
~"-'---------
...._-----....._--_....__....._--"""--....,
....
---....----......-------........--------....
----'it"''''''...,
r----------------.,;.-&.1f
t5 L{ __------
-----\
.1~rP.-~
r.:e:==,.".-;;:=;-::::;;-----------===:=::=:-=::->
'-~'''
....
_
....
~._.-.
44
1--+--+-+--I-I1'l£L: Blk,. Tel.-BI:
Ii
Gr SUtr aJIY,
UUl. C-e S&rd,
U~
f
Gc~l,
S1U:
I--+.,....o-o::---f-I-+----I seaas DOud..
.-_-t=.~.$"---f"'_1+4=_f4"--1
F'
FSS-~II-+--f
..,..
_0
"
os
23:.5-
>s.0
1
2 "7-5 30 '0"
2
-
10
45
...
~
.u.s
43.S-
1•• 0
5
ru.l.1 Te1-8r. 'Blk
& Gc
£Ut.y e:tA1'.
1--+---1-+-+-1 tnee
to
littl4t f-e sana. ttace
f
1---f,"T:l
•..
~",,""+--I_I--I
:-'";:~'
~~ ~b~~~ty
..;::.
'.5
.
2 2S SS-1
...
lilt
::r
St:1H en Qrl;Pnlc ClAY.. t:c-ac«
C""'(!:
5%-2 30 13-
1--+=-=--,1-+-+-1 s.n.!..
tt~ ~
CJ:'avel: b= Silt $eaJa,$
~o~o
....
Stiff"
to
Very Stiff GE' IIlOttle4 Yel-
1--+=='-r:--rY'=-f Br
Silty CAY,. little
f-c
sand,
tJ:aCe
f
Gravel.
r---t--+--1-1--f
10
I....
S+ 20
4S+~lO
O.
46.....
".$
n ...
50.0
IS
't
2)
BUd CJ:' Silt.y OAT. lltt:le
L""C
SaM.
1--+--,1-+-+-1 trace
f
Gravel.
. so
fr.
30' 30"
ss-
f
12
lleltiu.
cr Silty CUI'. little t-c $ahll
"ace
f-.
~ycl.
28.5
26.. 0-
••
......
5
.1 sr-3 30 16-
8.~
stiff
to
"leg'
Self"t
~
llPU:le4 '1.1- ..
1-_+""'0"'.0'-....2+''-1
3"-f
::::l~~;Y~t;::;~
li:y=~~~C::O:b
...-'tIS"':;S--"i--i'---f
I--+--+-+--f-l
DO~
an4 p1.nJt Silty Cl4Y poebta 1'0_....+--,1-+-1
10
(
25 SS-6
4 sr-S
Jet
30.
SS-4
U.....,S:---...l!l!=-:....lllO"'-""'ecaYe""''''"=---
, .
,aoRIHG
NO.!!:!:.5
_.....
~
..,.....
~y ~~
..
~
.....
L~e.
~
....-+---11-+-+-1
=;
:a::.:
=-~tl:; =e~:.
.---f
l
",
......
=~:-
.
.-+-+-I....
td
18~5
20
~-
••
$5-
.0 "
.1:-
1728
$ ......
53.5
£rd of Bodng
lilt
~>
...
55.0
21 2
.J1
R£.....ttk$;----J....
!!!L-::..l!lIO!'-".--""''''.'''tt'''----
,80RING
NO.~
ss
60
n- 30" 2.'
ss-
.014
IIE...."tlS,--------------------_,SQRING
NO.1!!::!
I--+---lf-+-+-I
=::
:r
c:;.~,~~
::::rlcc:;
s.nt•.
/--n16
.........
=-I:-+-t-t pockets QOteI!
.at .Q••
18.5
3$
40
$5-6
25 ss-a
R'EW.ltlC5,----------------
'SORIHG
HO.~
I.
2Z
11..0-
Soft. QSUt:l' e:tAy. llt1.lCl f-c sand..
1--+--+-+--1-1 t:race
f
e.....veb plAIt Silty' Clay
pockets
DOtea.."jr C1ayey S11c.
.--+.1".6.-:....:-+-+-f~
layer not.ect ..
t
19..
, 18.5
15
.~
---=----------------------SMEET_ OF __
------------------------~ln_OF
__
----------------------~
.....r_or__
-----------------------.SHt!(T_OIt_
WESTENHOFF a NOVICK. INC
...
lY~
PfN
R£C.
=::
=:::::ws
~~
SOtL 'DI:tnW""TJOM • OkL[kS
HOf£$
1-r:...
~",;!.!1"t,-1
SUfi",,"
pof't"
'AOM-TO G-5 5-t: -Ie
ftClICAT£
nnATJOti
~
STRA'" CHAN«
fYH:
P(N
~~
Soft Cr Sl1ty CLAY. little. £"e
~
..
1--+--+-+--1-1 uace f-1l Gravel; pink Silt.Y Clay
1--+";;-1.:<0-0:--+-+--1-1 ,POCkeu DOt:ed.
2)~S
I'"
43.$
.5
~~:~
z.
.. ss-a
45
. 0 'n
Veey StUf GZ" Clayey SILT, :IOlIlC f-e.
$Md. "ace -C-. Gr.-vol
ltediUII
Gr Silty
CLAY..
lit.tle f-c sand..
I---P~'--+-+--f-l
t.race
1"...
Grav.h pink Silty' Clay
4
S"t-9
30 29.
pockets
noted.
~~5-
.
Si.i.,'E
Cr'.. Clayey SIL'l,. little
f-c
Sand.. trace 1 Gra.el ..
ss-
..10
8 11
)0- 25"
50
....0-
".5
1Ia~
Cc
Silty ClAY. Utt:1e f-c saAa,
1--+---11-+-+-1 ".ace
f
Cr.avel.
,5i
~~-
30 11-
.~
5+11
ss-
5+ ••
3S
45
"
ss-
12
55
Very Deose CE" SIt-'I', t:rae. t.o 1.1.t:.tle
ss-
:-:r::::: t:.raee Clay,. "ace
.c
F$:.;.+¥,,,,9-f--I'--1
R£TA £NGIN£ERS
I
A JOINT VENTURE
CHICAGO
SCALES SHOWN AR'E
SCALES OF TRACINGS
IDATE.APR.,!1986.lJSHEET NO
2C-67
BORING LOGS
amStONS
THE METROPOLITAti SANITARY DISTRICT
~.
~
t'-1lO_.+_DA_T£-+_8y-t
.:::O~f_G=-R::.E::.:A::.;TwE:.:.R:.-..=C.:.:H~IC::.:A~G::.;O=__-------1:::"
~-/.-
NORTH SlOE SEWAGE TREATMENT WORKS
AtsiSlMll
.~f"""
CONTRACT 78-020-CP
SfCOHDARY lRfArMfNT fACllIHfS
05-
~S
20
ss-
.. S+ 21
---~=~----BOR1NG
wc-'!!1!::§
20"
)2"
39
End of Borlaq
~:~
.,; .. "
aEMAfltftS,
_
-------------------------'SM£eT_Of'_
ss-
10 12
.0
n
38.S-
dO 0
.,boo-
38.5
lIrE"""ltkS:_ ---:--------------'='---,:sO"ING
HO.Tt:B-S
--~---------------------'5HcEJ_OF'
__
(
'0
\
Electronic Filing - Received, Clerk's Office, October 20, 2008

Electronic Filing - Received, Clerk's Office, October 20, 2008

_____....
"'~
..
~
_ _....c ..
~~
..._,;.
....
....
.......
-__...
....
...;...;
........
....
;...
...
'""'
~
__••.
~.~
.-_-__a..--
(
...
(
WESTENHOfl' a NOVICK INC.
Pro)I"" .....'h 51"" _,. Tr•• ,.,...t
CHICAGO. ILLINOIS
SUMMARY OF SPIt. TEST RESULTS .
.loll
No.~
Bo<ing
No.
=-1 _
Pogi Ne.
1
of
2
~:~
-
..
UIOcOPf-c..,-t.s.f.
r..,
LL
PoL
T'H
or
.~
....
we
Groit$l.~
s..
"'"
~
~
Tno
1Ifl...
lpfloll
;;0:
n
$.'-1:.
T....
_I~
Yo
.....
%
%
I";:'
I~
$$-1
I.....
5
13.5
CIt Gr "
rd.-k
C1.~y'
SIt.T aD4 Cr
*
2.'
:~~~. 11_~al:~I.
a@a~:ft;e~a"cl
C1A4.K'. 1101:..-4..
$$-2 3.5-
alle
t~ ~,
ll"-l.. t-e
Cs'~f'
'.0
llt.~.
sl1t r c1Actera. aotc4.
SS-3
5.0-
17
Yel-Br 5 elk f---= SNC Ana
'-lit
Crave
7.S
uut. Silt, eJ.nd.t:l:8;
AOte4..
ST'"
12.0
2.17
'.e
2:1.1
os••
]5.8 15.7
Tel-Dr .,ttle4 Cit' Silty etA".. UeUe
12.7
l-G
sand,. teace
f
':p"'11 SUt layer
and 1 aedluii Grav.l..
SS-S
U.S
15
4.5+ 13..8
2).5
G~
CbfC17 SiLT, little f-e Sand-..
*
15.. 0
uace
f
Gravel..
""5
17.3
0.75
0.'
19.9
lU.S 26..8
1'.
~
as SS-$.
l8.. 1
SS-.
18.S 0
0.9] 0.8 21..3- 11>6.8
Ceo Silt:.y ClAY,11t.tl. f-c Salld,
20.0
~r.c:.
f C1iZ'avel.
ST-8
11.'
0.38
O.~
27.5 0.8 34.5 15.8
cr SiltJ'
e:tA~
.. llt.U. f-c sand..
tt~
22.6
f
cnvel.
$$-9
.
25.0
U.S
S
24.'
~.a
SS-7.
Rtmotks:-
Prep..." b,
• denotel broken. defonnc:4, disturbed or ...11 ,.-pIe
JAT
Oot.~
Clltek"" bJ
Oote ___
,,1- Xl
WESTENHOfl'
&
NOVICl< INC.
Pto)tct.....'h SI""
$ewOge
Trea,.,."t
CHICAGO, ILLlN<iIS
SUMMARY OF SOIL TEST RESULTS
.lob
No.~
Bo<in9 No =-:1_
_
..
-
..
~r·~t.
..
!
We
lfq
LL.
PoL
81oill$'tt:~
....
....
PoglNo.-L..
of
~.
...
..
T....
Yo
....t
%
%
~
I~
~
''''
OoserlpiilA
....
s.p.~
.._Ire'
'"iii:!
.....1
16••
1l.i
~.3
GI:'
f-c $MD, llt.tle
t __
Gc..vel•
27.1
lltt.le Silt." traoe c ...
y~
$$01 28.5
30~O
9
1.19
1.1
21-5
fu..
SatM ..
s SS-7 (-.r. s.d._
Remot~s::
*
4'enolcl .rolcen, defonDeCl. 4hturHd cr INII- ...1.
Preporw" IoJ
JA'
Oola~
_1<0<1 bJ
Dota ___
W£STENHOI'F B NOVICK INC.
Project tforth $1 ere Sewage Treataetlt
CHICAGO, ILLINOIS
-
SUMMARY OF SOIL TEST RESULTS
.lob
No.~
Bo<ing
No...lf.l:::l_
P.gI
No.
1
of
2
.~
-
II.
tJllco.t-ClMl_t. ..l
lfq
~
SiacAMtfsit:
....
Soil
f4'!.
or
..lI!
-~
..
LL
PoL
....
.
...
4-Pol:.
--
~.
''''
Oescriptlon
'"
"Cot
%
%
~ ~ ~
~
$$-1
.
'.S
t..o-
19
12••
sand"
ytl-k
t.r~
6 Cc' silty
f Ga";iI;yelJ
CLAY"
£OOts,
lit.tle
~lc
f~
aaterial ,and. Silt fodtcU.
oot.ed~
$$0,
3.S- 10
4.:n
....
16.6
11•• 8
Ok Cc" yet-Ir S sIte SiltJ' ClAT"
S.O
llttl. l--c sand, trace
f __
Gr~eh
c1n4er:s af'KI i\IIir
~
...
notcc!.
Sf-'
...
6.0-
1.20
2.6
10.0 U.8
k-Q:
-.:::tttl~d
au: sutY ClAY" l1U1e
f-c
~.
tr..oe
f
cravell S&nd .c..
l
toots ftOted.
$$0'
8.5-
9
15.'
G'I:' aot.tledi Tel-k' Silty cL\yo
r
llt.t1.
*
10.0
f-.e Sandi, t:iace
f
Graftl, tlll,a: Silt
nb$ .aM :roots ftOted.
ST-S
12.0
..,
.0 25.3
'.'.8
Ilk
Ct,
Yel-llr G k-Gr Silt.y CIA'..
12-7
little f-e sandi. ttac:;e
!
Graveh
2
eoa~
pieces of Gravel noted.
"'CIOlI
Fiec:es noted.
SS-'
U.S
7
2....0 2.7 20.0
1M."
CC'
SiltY'
a.AY
vit..
cbiD BUr,.Silty
IS:
CIAY' layt!!cs. llttle f-e 5an4. ua"
L
CraWlh 1- layer of
)"d.-bC'
5UtyClay .. t:.l'U'C!
~
__ san4 at; etKI.
S'f-7 16.
0 ..18
1.2
••• 11'....
'I'el.Be.-Jt.Ued Ilk Silty etAy. Uttl
15.
f-e: sana" uace r... Craft1, «ganic
aateda1..
1:000 and voodi
pieces
DOt.<!!
RI...,b,
*
tlalotu broken. defOf':Ie4. 4hturtre4 or ...11 sWllp1e
""porl" bJ
J"
Oola~
CIltcll4 bJ
Oot. ___
wESTENIlOfF
&
NOVICK
INC.
Project No!"t'" Side 'Sewase Treallaent
;~te
CIlICAGa,
-
ILLINOIS
...
UlK'onf-c...
,..t..1.
SUMMARY OF SOIL TEST AESUlTS
Job
No.~
Pog. No.
2
Boring
of
No.
nc-,_
w,
1",
LL PoL
.rf"_
or
"1101
~Qilt
Si.......
I,.;.
So-
-
Gr~
""
Ol'Scrlptlon
H.-:
It
!.P.'t.
T....
RI~oe
p~t.
~
p..c.t
.%
%
I~ ~
.~
....0,
~r,"
5S-7
18.S
..73
...
21.1
08.S
Su.e as ST-6•
20.0
....8
22.7
0.43
8.'
26..- 01.'5 33.0
15.9
Sallle as- ST-6 (pil'lok SUt.y
Clay
23••
poekets noted).
$$09 23.5
0.73 •• S 21.6
10.2
s_
~s
55-7.
.25.0
....1
27.7
.0.87
1.0
21.0 12.7
S~
iI;$
5S-7
(taed(W11
Cravel noted).
28.S
$$-1 21.S
S
MH 1 ••
18.4 07.. 1
~_
as
SS-7
Cl:IQCe S.and) •
30.0
Remodi.:- .
.. denotes broken"
th:rOf'lllCd.
4hturbc4 or SlIIII1 s.-pl.
p,.paro" bJ
'AT
Oola iau!L.
CI>Ick," bJ
Dotl ____
De;crlptfon
Cc .xt:le4. Tel-Sr Sllty a.AY" u.Cft
f-.
sans.
Gr
Sil~
cu.Y" Ilt.Ue
f'-c Sana..
tRee
f~YeJ.
Gr mottled Yel-Bl' • tttc CJ: Silty ClAY.
ltt.tl4it f-e sana, t.race
f ..
Gravel:;
thin bIt. Silty Clay RalliS DOted.
top 3-
C:r .ottlcdl
8r Co Dk GZ' Silty
qAY,
tracef-. sand".
11-11.' Cr C Yel-JIr
.,t.t.l~
511...,,-
ClAY. t:nee f--e sancJ" tr.ac:• ., er.ve-l
11.7-12.7
Q' ..
ttle4
1'1tl-Br chaft9!nq
to
~
Clayey SIL'r. sc.e
~-.c
sand,
tracc
f~
Cravel:. sam $UIlS note!!
and Silty Clalf layen n0te4.
Cr
Cl~y.
SIL'l" 11t.t.1. f-e $and..
trace f
Gravel; SUt.y
Clay
aft4 saM:
layers DOted.
Yet-Br Co Gr slightly 1lOt.t.led, Siltr
CLAY.
llt.U. f-c s.an.!.
uae:a f
Gravel~
ti11n
Silt .Haas
an4:
pockets
~
.....
,.,.,.,." bJ_.:JA:;;T:-__
Doll
~
_
"I" bJ
Dotl
_
33.5 15.9
Project
North
Side Scwaqe. Trc:ateJcl'lt
SUMMARY OF SOIL TEST RESULTS
J.b N••
~
Bo<lng No n:c-3_
P.go
No.-l-
of
2
2.1 27.1
D.S 21.1 01.6
4.89 4.5
:Zl'....
8~7
57.2 20.9
0.65
0.45
VIES TENHOfF
B
NOVICK INC.
CHICAGO, ILLINOIS
55-1
...
i.o- 9
6.36 4.5+ 12.7 17.8 32.4 15.8
S't-2 6.0-
ii.3
0.72
1.1 2EkO 9.4 50.5 19.f
~:~
36.7 16.7
R.no.,IIt>
ST-. 11.0
12.1
SS-l 8 .. 5-- 7
10.0
SS-S 13.. 50 1
15~O
1Sr-. U.7
18.S
Sallie
as
55-10
DefCTlptlon
Red41,sb-Yd-Br f-c
~
.. SC*e
f
Q:ave-ls bUt Silty C1.ayletl$e$ noted.
Cr Silty
CtA't.
little
f-c
Sand'"
trae. r Gtaveh plllk Silty Clay
pockets
noteda
s.- as
S't-9.
saate as sor-9 (1/2" SiU; hyers a:oted
I'teporo4
b1'_~JA~T,--
__ Oola
...J!mL!!..
Cl>lcl<t4
bJ
Dot. _
PIOJact North 51_de Sewa2! Treatment
SUMMARY OF SOIL TEST RESULTS .I.b
N••
~
Bo<inv
NO•.!52_
Poge Nc.. 2
of
2
Rtmortr.s::-
WEsTENHOFF a NOVICK lNC:'-
C;HICAGO. ILLINOIS
5~:C
H.
UlKOfIr-tomg~t.
..
L.
¥'"
. Gnlil Si.e
AMI'"
'o.
$oil
',..
Depth
or
t,tJIott
'"
LL
PoL
ito:-
"
s.,.~.
~
"2}."
~
"0/.
GRJYiI,
....
T...
R"'oe
?-~t
,..
..,-,
%
%
..wr..
ss-tJ
18.
'9
lOa!
4:0a
ST-'
22.1
0.45
...
23.8
105.1
31.9 IS •
23.
SS-1 23.5
22.5
'5.
ST-l 27.1
0.46
0.3 24.6
".8
28.5
5-1
28.5 S
2.2.
.2.1
18.2 19.
)0.0
(
REVISIOIlS
10
DAn
8Y
THE METROPOLITAN SA'NIlARY DISTRICT
OF GREATER CHICAGO
.NORTH
~IDE
SEWAGE TREATMENT WORKS
CONTRACT 78-020-CP
SECONDARY- TREATMENT faCILITIES
.........
RETA ENGINEERS
I
A JOINT VENTURE
CHICAGO
LABORATORY TEST DATA
SCALES SHOWN ARE
SCALES OF TRACINGS
SHEET NO 2C-72
~'~'''''~
...
II~C:''~''liL'·1,:':
Electronic Filing - Received, Clerk's Office, October 20, 2008

",
)
--
...._ ...
.....
""".....;a.,,
=_....
~""""
...........d"':d'....
l
(
W£ST£NHOFF a NOVICK INC.
ProJect
IIort:Jt.
side
5e!Mq. Treat:DeRt
CHICAGO. ILLINOIS
SUMMARY
OF
SOIL TEST RESULTS
Job No.....alIlIl-- aMino N... 'mI-l
~,.
Pogo No.
1
of
Doot_
II.
1-!!2'
M
Wt
If",
LL
PoL
-_
....
-
...
SolI
-1[!-
..
..
G<;:'
~~·I~
s.u.
TaL
,.
.....
,.
'lfo
'-
IUoi<.<
Troo
ou.,rptlon
";"1
1.0-
10
4.5+
u.,.
GI:'
k SUtr etA!". Ut1:1e
f-e
san.J.
2.5
u~
f-.
CZ&V'el, thla
~
of
yel-br Silt
~
blkClay nobd.
SS-2
J.5- 10
3.11 2.G
1!'.G
116.8
Yc-l-B%' .U,htly 'aOtt.1ed Cr Sl1ty
5.0
C!,AY.
Iltt.1. f-c satMS. tr.ace
f
crave
t.biA blk SUty Clay JOe" -.nil Silt
DOtea.
ST-.
G.8-
1.31
2.7 30.3 69.4 -47.8
~7.8
elk
~lc
suq- c:u.y. trKO r....
7.G
sand, JeOOt•
.and
saoa seas noted: ..
ss-.
8.5-
8
1.SS 1 ••
2ia.3 00.8
'I'd-Dr-.ot.t.led Gr ,
Ok.
Gr SUq
10.0
ClAY.
tza«
f
Crawl, blk
Sll~
Clay ,UoUS DOte4. thiD Sllt
aid
$aQC!;
~
noto!.
~5
12.1
2:.02
2.2 15.7
121."
Gr -at.t:1e4 y..l ...k Silty ClAJ', 11t.t.b
n.l
t-.;;
said, tr..c:e , .... GE'avell r:1uJt
Silty Clay poclte't.
DQt:ed. sand
seaa
DOted.
ST-6 17.. 7
0 .. 48
.2
2).... 107.(
30.8 14.7
Gr SUty ClAY, litU. r-.c $and,
18.5
t:r.ace f
CE'avtll pink Silty C1ar
pockets and. weathered granite
QOt.e<I ..
59
.
40
7
18.S20.0
...
..
23.8 lOSr
. CI:'
trace
Silty
f
~~w:l.
ctAY, lltU.
~ooc
Saacl..
Ist-.
22.~i"
.lS
•2 27.6
100•
$a:lHt .as ST-6 (1 .eoJlu. er.,,4! noted)
21.3
Rerno"ot..:
• Denotes brokeR" 4cronted, disturbed oc .-.aU -..pIe
Pre~Q:'ed
by
J.'I:..
Ocfe
>JlSn7
ChRcked
by
Oota
____
WEST£t/HOFF 8 NOVICK INC.
Project Korth side-
St;vAqe
Tz:'eat-ent
CHICAGO. IWNOIS
SUMMARY OF SOIL TEST RESULTS
Job No.
ZOO)
Boring:
~.!!!.:!-
Pogo
No. 2
of
~
_.
II.
u.eo-r~c~·t.
...
t.
we
r", LL
~L
~
..
~
.......
'"
~Sn""'rsiI
~!
...
"""
...
..
$"';
.
....,
..-'1ft:!
%
.....
%-
%
~t1
I";:'
..:
T,..
Desf;riptfoft
fss-9
23.5
..
23.9
.
25.0
1
sa. as
SS-7.
f;T-1
27.5
28.J
.52
..
24.1 04.6 38
22
$dIe.as sr-6..
Ss-1
28.5
1.0
.G 20.4i 12.5
cr
Sll~
CIAY, little
f-c
$ald.
tr~Ci!
30..0
f
Gr.avel.
St'-1 32.5
1.10
1.2 19.1 15.4
s-e as &3-11.
33.]
SS-1
33.5 15
<1..
71
4."
12.9
Iu...
cr
~
SILT,
~1tt1.
f-e SIQd,
35.0
t.nce
L-a
Crave1. .
fr-l
31.7
.75
.7 17..8 20.0 28.9 1•• 3
GK' Clayey SILT
& soaa.II
t-c
san4,
38..5
traOC'
f-a
Gra\lel.
S:-"
8.5-
35
1.0 20.0
GJ:' Silty
~Y.
llttle f-e Sand.
<10.0
UK.
f Q;"AVel ..
ST-l
'2.S
1.48
1.7
22.G 100.1
saae as SS...15 (1
Mdl~
Gnvel
~
.
43.3
5$-1
.
45
U.S
..0
9
1.'
Z2..9
~
f
GraV'ol.
Silty cu.y.. t.:c...ce f""C'SaM, "ace
"'-11
~:;
• 89
..
22.8 08.
37.'
18.0
s-e a. SS-15.
R.JftQR.,:
• Denotes broken, defor1aed.. dist.urbed. OZ' pall
~le
..
....;>or.d.
by
J ..-r_
Om
7{15m
ChaclecS
b~
Doto ___
W£STENHOFf 8 NOVICK INC.
Project JtCIrt::h Side sevage
'f'rN~t
CHiCAGO. ILt.lNOIS
SUMMARY
OF
SOIL TEST RESULTS
Jot>
No.~
aoiing No
'tPB-l
Page
No. •
of
3
S;lC
.....
II.
Unc:oiIr..c:-rt.s.l
Wt
If...
LL.
U.
..
S~
GtaillSit.~
~ ~
...."
so.
"po
sail
,
Oescrlptlon
~
..
....>:
T...
,.
..c.t
,.
%
G<;:'
.~
tu....
!
~-
.. <11 ..2
....5+
n .•
2'-1
ce StL1"f' ... f-e s.na..
u.ae-
Clay,.
b
47."5
tt.ac:e
f
Gr.&vel.
~-i
48.5 ..
.2.22
9.5 27.2
I.t:
CZ' C <Or layered S'u.-r. SOM' f.-e
SO.O
.$m:l,
ltt~.
f ....
GnLvcl,
$and
.eaa
noteil..
fI'~e4
U ...
tea.e Cc'...
ye~
ftOte4.
SS-2
.
52.5
Sl.~
GG
1.98
2.0 n.9 119.. 1
trace
a-feY
r...
~.wl
:UW, llttl.
..
~-e
sand.
55
40
2 53.5 SS
2.03
1.3 18.2
H.~
SaM .. ss-20. (Sl1t: .... mid.
55.0
pock,eU QOt«I).
05-2
56••
,.
.... 8.7
20.0 13.8
Gr SIL'f, .0.. f-c 5a,,4.
t.r.c:~Cl.
57.5
lltUa
~
GrAvel, lnC9Ularlr
l-tMtoJ ...
~
of
gC' Sl1t".an& elate
Silt
DOte4..
SS-2
58.5
G6
4.1"
7.G US.
$De at SS-22..
60.0
.
t
I
I
A~tnarks:
• Denotes
b~en,
4efozaec1, dlsturbe4 or ...11 ....
t.
....;>or.d
by
3.'1'•
Oot4~
Chocked
b,
Dote __. __
(
\
-wESTE!IIHOFF 6 NOVICK INC.
CHICAGO. ILLINOIS
Project
I'kX'tb Side
Sev,afle Treatment
SUMMARY OF SOIL TEST RESULTS
Job
r:.>.---2lllll.-
B",'ng No...!I!!::L.-
Page No.....-!- of
2
WESTfNHOFF 6 NOVICK INC.
CHICAGO. tLUNaIS
Project Rort:h Side sevaqe. rrn,ment.
SUMMARY OF SOIL TEST RESULTS
Job No.-ll!lll...-- Boring No....!!:!!:L
Poge
No.
2
r.f
2
T,:le Oro'.
or
i.:O:"
ft.
S.P-T.
LL
~.
Description
Ll.
%
St'-"
6.7-
1.46
3.1 U.S
OT.
7.3.,
5S-4
8.5- 11
2.83 2.8
21.1 109.
10.. 0
I
ST-S
".J
3.61
...
18.1
11S.'
13.2
SS-<;
13.
11
3.29
3.5 15.4 122.
is.oj
.43
.5 20.. 6 12.2
Qr Silt.y ot:UY .. llttle
f-c
Sand,
tr.ae.
f
Gravel.
Same a.s ss-a (1 1H!d1u. Gravel oate4)
GI:'
Silt}" CLAY. litt.le Eeoc san4, uac
f
GE'aval;- piak Silt.y Cl.ay
pockets
note4.
1 Md1wa
<kavel notCll..
SUa.s SS-10.
cor Silty QAY4' little f-c sa."c),
trace
C
Gravel.
sa.. as 55-8.
s~
as
S'r-9.
s~
as 55-8.
..
23.3
.2 25.. 3 04.7
.6 23 ..8
..
25.4 102.5
.3 24 ..8
..
21.9 00.8
.40
.40
..'64
.. 5 23.4 05.2
.41
55-8 18.5 3
70..0
S-1
28.5 4
30.0
S~
2%.6
23.4
ST407
17..7
18.5
T-l
~~:;
~-.
~~:~
7
>T-LS
37.71
~9.5
S-18 '8• ..!, •
• 1..,.Oj
S:-l
~~::
3
ST-l 2•••
27.8
SO.
Gr IIOttld Yel'"k SJltoy CLAY.
lit.tle
f-e
sa.n4, t.race
f
cr.vel.
SO\ Dk
CI:'
Silt.)" cu.y.. UtUe f-e
SAnc!. tc-ace
f
Gl:'aYC1h hair roots
ftOt";ec!.
Gr:
IIIOttJ,~
Yet-Dr 511
t.y
CLA.Y.
1.1t;t:l.
~-c
$aDd.
~rac.
t!
Grave
t.b.la Sand sea. not.ed..
Yet-Dr
IItOttled
Gl'
SH~
CLAY, uac:e
f-e sand. trace
f
Gra~lJ
bItt Silt.y
Clay poekets noted .. Silt seaJfl$ noted'
J:'oob ftOted.
Gc
aott1ed. Yel-h' 5Uc:y C:UY. I1t:Ue
(-e sand, U.ace
f
Cr-avelr
5azldi
veins
si1t. pockets
ftotiC!d.
roots an4 decayeo
wood noted.
81k. oll:9anlol;: CLAY. lit.Ue f-e SancJ,
trace' (-m
Grbve-l;
pl!at. anct
rooa
no.....
Cl"
.ot.tled ....,l-Br Silty CIAY. llt.t1e
f-c- sand, tt.a<:e
f
GI:'.&vel~
pink
Siley Clay poc1te1ts
not~.
<:r
Clayey SILT. ll'ttle t-c
~f'
t.race
f
Gr.avel.
"
4.5 12.4
16.4
3.6 17.8 114.
3.69 4 ..0 17.. 9 118.
2.0
SS-1 1 .. 0- 18
2.5
5S-2 3.5- 14
5.0
Rl:mcrl\s: .OenotC;t> broke.a. 4etol:'aecJ.. 4istQr;bed or saall sa.ple..
P,e;>ored
by....:3:...T::.'-__
Dole
~
Ro!A\orks:
• DeMtes broken. defonaed. distw:bed or saall sample.
Ptepoced by....;lc.:T....__ Dota
~
etec:!led
by
Date
_
Chec!<.d b'
Oct..
_
IIEVISIONS.
NO
DAn
8Y
THE METROPOLITAN- SANITARY DISTRICT
OF GREATER CHICAGO
NORTH SIDE SEWAGE TREATMENT V:ORKS-
CONTRACT 78-020-CP
SlCOHDARY TREAIMIHT fA<llIl1ES
RETA
~NGijl/E:ERSI
A
JOINT
VENTURE
CHICAGO
OATE'jAPR",11986.
•• ' .... : ....
~.(':~1:.;,.~l
•.:....
$.~.r·
...
SHEET
.....r.....:•. 0:.1'''".
NO
J:'
2C-94
".or."
..- : •
SCALES SHOWN ARE
LABORATORY TEST DATA
SCALES OF TRACINGS
-=,"'"
.~:
..
:J:.~_.l
..
• ....'
'.~
••••••••
1
. . :;-:' ,,_
.l·~.
Electronic Filing - Received, Clerk's Office, October 20, 2008

- --
.
.
~
1--------------J\.~:c.,~~..-...IoK-·
.
.'
......
~ _----.---_----.--I-'~
___
~
-1316.06'
_~__
---
__ _
--_:j5i4.85 .___
TRACK"S
I 1
'-'I
/
I ...
:;
6
4
2
~
FINA
I~
5
II
I
I'"
.
-
N
1--
..J
III
Z
Z
c(
(,)
x
IIJ
It:
o
...
X
o
t
z
'-Center ofSecfion
213
T.
4/
NI2/3£.
-
lO.
/
I
I
i
LEGENO:
-- Work under Controct
69-00e-2P
-- Existing structures, roods, etc.
.J
REVISIOIiS
NO.
DATE
BY
THE METROP.oLITAN SANITARY DISTRICT
OF
GREATER CHICAGO
NORTH
SIDE SEWAGE TREATMENT WORKS
CONTRACT 69-008-2P
SITE .U;AlATIOII
fOI
filE aUII 10TAIl STUIIlII
LOCATION
PLAN
JL
,j~eJ..c;-'
1?MB.JL
f€-
JH"i .
I~U~
SCALES SHOWN ARE
SCALES Of TRACINGS.
I!mm
c."-J,C. N.T.
Checked
tt-.
SHEET NO. P-I
Electronic Filing - Received, Clerk's Office, October 20, 2008

2
SCALES SHOWN ARE
SCALES
OF TRACINGS
finish
grQde
£7+22.0--
E1.f-22.2S
£1.+22.17
PresenI9'1:Jt!nd,
EI.
+22.5
8;fumlnO<ls 5urkce
(clq.~$
A-3j ToD.I/.)
PAVEMENT AND GRADING
Scale: 1"=30'0'
2'-0'
TYPICAL CONCRETE
WALK
5&0Ie:%..... I'-0'
/'if
I with plasftc. mot'l.
%UCork
4" Compacted
sfone:.=.l+-I~~_--="-'-"":O~-
_~_---'
LEGENO:
• PP
Power pole
~
Proposed Devotion
__
cpslmg Ele.vaTlon
5"
e'I/Cp.,
2'-10'
Inv.
£1. +20.38
Conc.precQst ring1-
floor
DETAIL C
Scale: $/4'=/'-0"
\
)
rence
NOItTH SIDE SEWAGE TREATMENT WORKS
CONTRACT 69-Ooi-2P
THE METROPOLITAN SANITARY DISTRICT
OF GREATER CHICAGO
DETAIL B
(N.T.sj
Trench-pip<!! bedding
GENERAL PLAN AND TOPOGRAPHY
DETAILS
BY
4"Cradle sfttlP"'(/
with
template in
sand
baclr
flll
REVISIONS
NO.
OATE
'I
SECTION B-B
"
42.R.CP.
,
It
EU7.77-
8~t6'
/
SECTION
A,..A
DETAIL A
Scale:!f;""JftY
'-It",
'e;-
".
",,4.~
,,_
.
.....
"
..
:04
PLAN
Scale:
/"=50'-0'
Provide concrefe
fhru5f bloc/:5
.....
~
_______._
~
B
qroov<!!fOr
Stop Log
. Cone.
bulkhead
SfJ'I: c- 5
15'-0'
12"
..
,.
.-
Wed
race
or
.• p
.4
.'
,
7lm'
rocility
4.
:subsf/"Uctur<!! wall
~
..;
'.
SECTIONAL
I
q,1
.!>l
""<I
"\)1
q,1
"tl
~l
I
I
"-
42-:'90'£lbow
B
.L
12'
4'-g'
rri-~,
'"
~
~:.
fi
....
IJ
~
~
:.4
..
-A
~
A-
~
~
..
\;j
....
~
111
"\il
~
.
~
~
<:::>
~
~
t;
.,
~
~
'"
~
.6:
'.~.
~
--I,-
N
OgwD
N.Z:
Checked
rtf-
DATE
NOV., 1969
SHEET NO. P-2
Electronic Filing - Received, Clerk's Office, October 20, 2008

PUS s:LU:VES.
nA!fZS
J DalOIl BCl..TS
I
IHSEaTs J ETC.,
SBAI.L
U
1ft
D
l'UCZ IIUllD
alIlCD1'E
lS lOOIlBD. TlIE CQlDAcr<:a IS
IZqVUZD to _CIt AU.
lIIWmlGS AIlD SIlOl IlEtAILS or IlQlJI1'tIlIlr
AIIII 'BrABllICAftD HOUSUG _
TlIE SIZE AIm LlICATIOlI or ALL
DISU1'S.
D __ UISTDG
-COlICUl:Z
AIlII IlASOIIIlY. PIORI. PIlZCAUrIOIl
IIIIAU. III ftD1l 'rO PIlZVEIlE nu: SPALLlllG or TlIE COIlCUTE AIID
~
__ TIlE currDG LIllZS. QlY PATCHIJIC IlIQlJIBD SlLILL
-.: AS DDl!CftIl .Y TIlE DGIIlDIl AIID SIIALL BE AT TlIE
<DlrI.lCtOIl'S
IIII'ZIIS~
•.
-.: DlI
cc.:uTZ
IS YO COWlt IUISTlllG COIlCIETII: SUIlJ'ACES. SUCK
_£CIS
SIlAU.
D TlIOIOUGlILY
~D
AIlD LIllY IOUQl 'rO l1lSUU
GOOD COIn"ACT
BftllUIl
TlIE OLD AIlD
'IIIB
IIIlI COlICU'lE.
!IIIlIlICIIOUI'
'IlIIS SET
01
DaAlIlllGS EXISTIllG snllCTllUS AIlll BIlOllll
lJl LIGB1' LIRZS; IlElI AIm ALTEIlIlIl
wou:
IS _
lJl IlEAVY
OUTLlIBS.
ALL CIlOSS DAlCIIZD AIlEAS BOllIlIlED BY HEAVY lULL LlllZS IllDICAT!
MllTEIlULS
YO IZ
llI!I«lYZD.
~
GBll!:UL
IIOlES
IlEtAILS AIlD HarES m.ATIVE TO BXISTIIIG WOU: AIlll IIEASOllA!LY
Cl8IlI!Cr Bur AIlll HCIr GUARAllTEED
BY TlIE SAII1uaY DISnICT.
TlIE
cnmlAcroa
SIlAU.
QlECI:
ALL DEtAILS. ELEVArIOllS. AIlD
IIltulALS IB 'IIIB FlBLIl j1l]) SHALL AUAllGE
'!BE
ImIlllOH YO sm.
jLJ.
AS APPID'IBD BY 'IIIB EIlG1lIEU.. 'IIIB COST or SOCII llOB S!W.L
U lIICLlJD£II III
TlIII:
lJIIlT AIlD
LU!IP
SOlI lUCES l'Ol. 'IIIB V.II.lOOS
ImlS.
TIlE SOIL IIORlllG IllPllllKATIOIl IS IlELIXVED YO BE ACCUaATE
Bur
IS
lIl7r
GUAIlAIlTEED BY TIlE s.un-:w<Y DISTnCT. TIlE ClIITIAcr<:a IlDST
SATISfY IlDlSELP BY KAnIIG BOR.lIIGS 011. BY AllY
01'IIBIl
I£!IlOD AS lIE
lilY l'REPEIl. AS 'rO TIlE CIIAUCTn or SOILS AIID TIlE AHIUIIr or
llATEIl. JlOULIlERS.
mlCIt
AIID «mID. 1IlTDIAI.$ BE lilY IIlCOIJH'tEIl III
'IIIB
IIOIlIt
to IE lDFOllllED
lJIIDEll
TIllS COImlACT.
jLJ.
~VArlOll
SBALL
I!E
PEU'OIJIlD WITIll1l TIlE llAiIlOllEST rtACTICAL
LIMITS so tIlAT
TlIII:
LlllD CAnYIllG cA!'ACITY or
'IIIB
SOIL 1llI\lEJ. AllY
_Y fOOrDG WILL !lOr. III TlIE OllllIOlI or
'IIIB
IQlGlllEEI.. BE
llIOIZCISSAIlILY 1lI!CUASED.
TlIII:
JU.I.OIllllG ABBIlEVlATIOlIS AIlE IISED III LOCArlllG IBIIllOIlCSIIEIIr
MIl:
"l
u
EmIOftS BO!tCII; liT" DaIOI!S
TOr-
"'-.F..n naorzs 111M.
J'£CI; "F.I'." D!!IIOtZS I'AIl I'ACE; "1..1'." DiiI6mi JW:II I'ACE.
_
111_ IlUS
lit
TlIE TOr AIID
BarTOlI
or
liUIIIl lIaI:
III
Cl*!ACT 1IlTIl SOIL SIIALL DAVE A l-UCIl a.uI. _
or _cum
~
'IIIB
'ACES 'rO IlIlIm TlIEY AlII ADJACIIIY. UlZl'r AS _.
MUll IIIIIlJ'OIlCBIIIIl BAIlS lJl SLUS III «XllIrACT WUB SOIL BBALL
DAft A 3-111m aJIAIl COVEIllIIG OF COIlCIIETE.
_
..._
BAIlS III WALLS SIIALL DAVE A Z-lllm a.UIl
COIDlllG or COlICUTE.
DIIIPOIlClllG BAIlS AT ORIIlllGS SIlALLElt
'IBAll
U-IllCH D1A!£TD.
SIIALL IE DAUAIlGED III 1IELD 'rO SUIT.
AS
Arllll'lED BY TIlE
IlIIGIllDIl.
.... _---_._-----------1
]
j
"]
i
I
i
...
.-1
lot .
OMit 1. RIG
tlo.
28
III
I
60
=
-
-
-..l-..J..LLI-L--L.....L---'L--'=-..I-,J...,.,.-l=---:c,-----._.
TE5TtHG SERVICE CORPORATION
,._
..
_
..
-
---_.-._--------------~
TESnNG SERVICE CORPORATION
l
ib
ot orio at!.S
t~t
hr'
hat
at .S
t~t
to,,",," 1.
fodro<
I
OAll.L RIG "0.
~
110-
,-------------_
....
_-_
..-...
_--_._.
A«ing CI.-
_ M. , 0_
SCALES SHOWN AlE
SCALES OF -TIACINGS
App,gud
;l_.,/r>e::;/
Aet1.ng; Chi" Entin"f
SOIL lORING LOG
Silt
PREPAR~T10N
FOR FINE MESH
ROTARY' STRAINER
NOITH liDI SIWAGI TIIATMINT WOIKI
CONTRACT 69-008-2P
REVISIONS
THE METROPOLITAN SANITARY DISTRICT
_
IJ
e.
I.
NO.
DATE
BY
OF GREATER CHICAGO
Correct"'9±4.i
~
....
;.;;;;..+=,...:.;-+----------=::=...-=~::.=.=-=:=.:.:==.::=----------I
E<l8:;egr::.
~:'ert
~"1gn
""istellt
aim B1liineer
Appro.ed'"
o OD'rJ1f
a
,.6l£.,.
~
4I!!J~
0
~
~
Dl'iWJ]
£
r..:.zike.
NOV.,
19691 SHEET NO. C-1
Electronic Filing - Received, Clerk's Office, October 20, 2008

1966
SHEET NO. P-I
For work in
"""'''-~~
1fT;, /ocatio!7;
/:7--z.-f:
1(/,7/.:(-;:6
THE METROPOLITAN SANITARY D1snuer
OF GREATER CHICAGO
CALUMET SEWAGE TREATMENT WORKS
CONTRACT 65-41 (CLT-P)
EFFWENT CHLORINATION FACILITIES
LOCATION PLANS
NOTE,
The Confraclor shall verify all dimensions by
field measurement.
LOCATION
PLAN
x«!e:
/".!(J(Jc(J"
I'/:,O ;o?
100
LEGEND:
_...91!. _
Work under Contract 65-4/.
_ ...!HL _
Exisling structures roads. and pipe Jines.
6top Log
Outfa!!
5
LOCATION
PLAN
Scu/e: /'='(0'.0"
5".0~=--="
....
~0====50:;;;.
~100
lJ.i
<t,
N
'136.62-
~-----
ISlone:
b
130
TH
'
'.
Electronic Filing - Received, Clerk's Office, October 20, 2008

6.1
I 01'
'"
I
--;D.
AI'NOYD
JlIOL
lII.n lor I
v/.....-o
V
IOMIl.nAITIO
~.8CO-'LnD
L'.'~.
_.T1I_'"
u ...,tIo
.,.
~---------
..AIIl..
:e
---------._6
_I.L_...
"t
JIB
100
10:
94
114
~CTN"
••
ALIlJeT SC\oIACII:
T"~.'."T
......
U
CU'ANSIOII
fliltOJaCT N ........
,1LUllf1
51\1""
111£.'M(1I1 llIot1l1t lll,.A/IISIOII
'Ne
,
II PP'INO.T.H 1110,1,0
HCX'lTH.tIOO'C. tWHO!.
'Ne
III P"'"G5TCH "0""0
HOfIITHlll'eOOll'.II.LINO'"
SOIL TESTlI& SERVICES
SOIL TESTlI& SERVICES
I:ND or IORtHe.
6'
HJ. e,l,UMG USED
"LTY tLAY::loOME FINE .ANEl;"
flACC: GlllAVIL IhT" OCC:,l.IO,""L
I:AM3 OF SILl. Co...v; It"'RO;
Cel.)
LOG OF' BORING NO.IS
liOIl: A. 511.TY OI."Y\ 601l1i TO,.
II.;
IlIoOa:
--
NIBO.NIIT.IIJUAI.S.
1I1l0.
,IlR"Y
&
DAft
GRAY: " ....0; (Ct.-PILL
---o--:-~".
i;:
_1'T1OIlc..- ....l ......
~
s-
~
i!
1------1
;j
3"
4
5T I
OWNI:It HttflOPOLIUN S,t.IIITAllT DISTRICT
or
GAUltR
CIII(I,GO
•.
tllfl,AC!lW"Tl!l!" O"!llftlllll
'"TO HOLI[ A,G.Il.
WAllUt U:Vl[L Olllll:lIIIVA,l1
II
I1'.L.
.5 lltIWO
LOQ
OF _'NO
NO.14
~8
Sf
=
=
=
==
==
I--
7 ST
f=
I--
6
.-
6
:IT
1=
MoTa A
HoTa.
.'I.T" CI,.AY,TR"OE
&AMDa~AAve:L
1==f~2*',='~IRO""
& "RAY, HARD; ttL)
108
I--
Limd 01' /on0'6l'Op//7§' 10 i/ll'/llrle
area o'i:s/urbeo'by eXoof/a/ion
/'or ION ",I";'henl" poe, Sheel
P/~
""~
------------
£/.+/0o.J...
B
~
"IT""-~"''''
Cf!,"nl'hl!d0s(/de
£/,
lOt
I
'iU~
8rden conc. rJp-11
-~~
>st
min. dlmenslOIl /7Ot
le55
111(//7 6"
/Z"mlfl
, IZ"I!5.P., /nv.E/+Z7:t
B~
SECTION A-A
~Monhole
Invert
£I
+2.
70
~/NAL
°0
I'(
/~
!
I
---~-----
-------
.' .
N
For contini.lation
.5ee ,sect DB
I.
. '..
LEGEN/J
~5:0H
r==-
C
/Appr;
x.
prt!se
n
f'1f"ad..
---l/1:Jrl< under CoIl/roc/
1$5-,11
-
t==;==;==~=~=~=~~~==;::='t::::;==;=~l==;::~7:;i~tC;~7.I-7.or
R.
~~~
'Ii
..
=.::::;:=D=;:-'=:t;'==;:=::;;~~_
---Exi.:5/inf'
---LimiT5
01"
s/rvcTur"'5,/ono'seopin?,
road::;,
Item
",/a.
/
I
..ar--~~~'fc"ffJ~3'·~
~
0
7i-",es
...--
__
~t;;;,:;~~~~~/Z~"~V.~5~.!?~.
,~5~0~'P~e=$a~?l~I?~Vt~==!=Ei~I~. +~l~7:f~i~
.....,==fH~"'~j(Li~.
f~Z.~.6.~.~
.
.
~
..
~_
r
~1f/.~/~·=~c.=onerC'k
:slob:s'
~
'"' ,..
/
I
AlOTE
/11/ Trees a/7t7'
de.br/~
I'V/Thln The
workCTrea
and sou/h fa
.......
n.t~r·L
:,'-Z/
~,
5am! beddinn
';:~.
El.7/75
pionI' *na", ",,/101/ beremoveo' ono'""''',=.:5eo',by//le C",nlrpc/",F.
\{
I/f:Ii/'/J'
::J
I
2~8"'1
50me
rree5
are oyer G
d
//l
d"..i?me/e/:
Loea/'/o/J
ono'
nt/moer
SECTION D-D
L:>- C
410keconn""C';"/7
/0
_ I -
..L
J
r
.<. _.J
Tn. C!.
.."
..<
CT
eXisfi/79
12"
Yo
S.
P.
D ---.
5!JoNn are "'pproxlmor", ana no !l{>'orohre=.
....
on/rocl"""
THE METROPOLITAN SANITARY DlllTIU
Remove concrete slab.
-
PraY/de comp:ulcd
SECTION C-C
$"'//
",,,,riIY number ono'6iz", 1'0.6", removed. Tree. which
OF
GREATER CHICAGO
sand bedding mr IZ"/(5.R m
{
of pioe
DESILTING POOL
do not interfere with work under fhis cantrac/ shall pe preserve
CALUMET SEWAGE TREATMEl\li WORKS
REVISIONS
.:1<:a/e' jf#.lcO
H
if
ordered,by the Engioeer. !?emoval
Co",,,
~L
..:.....t. ..
~
...
~
CO'"'•...,..'" """'T
"'''''~4'
(CL
T~P)
Ocfe' Jvnei!2,1961 LefterFl/eNo.lZ9
h
LJe.
removeduno'er .JT6'/17
/4
snaIl Il7cltlde sttlmps. Item
I.
APp,OV
~~~~
." •
"'T~;OG;;p~y
~~;;:/~o;~Z~~~e;JP~rap
Asaietllnl
Chief
Eugineer
:::::::
tti_.t/_J_K_.
w'_.c.
~=~::~::n
.....
t'~;:l~
GRADI~~R~N~~NCING
CHECKED
8Y?(1u#
/? -;-
/'}/r~~
_
II
,,,
\966
"'""'ED
,,~
APprov........,.."'...-q..,.......c?fi..;:;i;;,;;;-:-
5~~:.C~A~LaE~: ~1~§1.:.4=O=-=O==50~
..;;;IOO
SHEET tillO.
P-2
i.-.__
~_~
--J.
~
__
=--l,~~=~~
.~
~
~~~:--_---J
'"
L
.
1w>,I/oo/8'
!....I__.:.-
--I~
.
Electronic Filing - Received, Clerk's Office, October 20, 2008

I""
£ East wa/l---'
N
--+
"
3
SL U 0 GE
CONCEN RATION
TA
K S
2
4
Ii
LEGENO:
=_
Work "nder
Contrad
G5-1'1
:Pll:
Exi5Iin9slrucfun:,s.piping,
road5 (Jfc.
IVOTE5:
For profiJeofpipe Jines)
SheetP-16
For manhole, cakh basin.
and guNer ,nleldelojfs,Sb'tP2iii>?
. The ConltrlClor
shall
verify
01/ dImensions
qnd eleva/ions
01'
exislil7cJ sfrocfures
by
f'ie/d
measurement.
Providt: concrete
blocking on henas, stub"
and ft::t:.5 on caST iron,
City
lUott:r ond cff'laent water
pipes.
.5ectiM
717 of'
tlte
Detail Specifications.
THE METROPOLITAN SANITARY DlSTRicr
OF GREATER CHICAGQ
CALUMET SEWAGE TREATMENT WORKS
CONTRACT 65=4i (elL.T=IP)
GENERAL LAYOUT
SOUTH HALF
1966
100
SHEET
NO.
P-'3
01 In feet
DRAWN BY
MU. a l:'H(6.
Electronic Filing - Received, Clerk's Office, October 20, 2008

'.l"~
.•
• !J
LEGEND
Division
Xb
=-
-
Exisfi.79
WOrk unde'
sfrucmres on
d roods
>\N
SANITARY DISTRICT
E
MEl1\Ol'OLITTOR CHICAGO
WORKS
TIl
O. GREA
REATMENT
SEWAGE T
b
CALUMET
DIVISION X
CILITIES
S
LUDGE
CONCR
ENTRATION
DIGESTION
FA
FO
PlA~d
LOCATION
.
EMBER.1983
SEPT
P-I
SHEET
NO.
SCAL
2~1=~~;
I' /./II$"tP
I
---======-====- - \I
I
I I
I
II
I
RF.:VISI~~~.IIO
5epl.A!!Gf._
'~af='d
4tekrnN5e
N
~--,---
Electronic Filing - Received, Clerk's Office, October 20, 2008

2
LEGEND
--lfWk UHh, OMs!o.., Xb.
--Existin9 shuelunls. roods and
piptl
/11185.
SEPTEMBER. 1983
SHEET NO. P-2
TOPOGRAPHY
TIlE METROPOLITAN SANITARY V1STRICT
OF GREATER
CHICAGO
CALUMET SEWAGE TREATMENT WORKS
DIVISION Xb
N
Sept. 10, 19H
i
~lIer
;:;1e UP. I/O
HeIer house
Q'da'~d.:
+-
REVISIONS
f
Oike
'-'1"-1
---j
('.
:
\
I
_.-J
,
!
..
~
:
fFillf'l selJ/iflgl(1n/t
wail
6'~/8nded
"-....:'r-
--~-----+-
1
~~,~.~:'-
7~
1
. f
£Xlf" dike,
t(p
EI. +/I.O:t
SWOGE CONCENTRATION
[Appro)l. present IJround
SECTION A-A
Scole: 1"= 40'-0"
-
Scole: 1"= 100'-0
11
Borinl;is shown on Sheet No.
P-3
Boringl
EJ..!:.onJrol Chomper and
.$~r'l;ce
Tunnel:'
~
·$.D.C.~Untl
Ale/til' house
~23'R_
-----J\....---
_
-Gatt! chombtlT
~~
..
_.
"I
~\L
/,;1.
"<Y;'1/.fO
\,
L:=============================-=~.=_-=-=-=-=-=-=-=-=-=-=-=-=-=-=-=-========================:::::=====~J
Electronic Filing - Received, Clerk's Office, October 20, 2008

III
\-.
:""'."""""""Jj
.
. ,
BORINGS
THE METROPOLITAN SANITARY DlSTR1Cf
OF GREATER CHICAGO
CALUMET SEWAGE TREATMENT WORKS
DIVISION Xb
SCA~E:
CI..,. 110 SIIl-1'I'..... or s......
&
Gl'aul.BIIlIt.r.I'7To..sh
Oftcfll"'1ON0'"",TrltlAl.
IT
1.~llIUMtn
O
,IllIOIII'AIlCE
,.nf"OI'LW1,11G
"l.
'UUVfL
"'.•'f:----...:..---+-j,....s...
~
n_woa.f'MJ:Jf.ILI..Ol:I
I
Y
i
'I
/,1
1
I'
, at
,
I!! I
. s.
lOlL
I::ru..
:;:3
1=::=:~D
Clq~s-..
Sllt.Tra"e or Sud .
.. GI'• .,.,J"'11W IlIrcno/looVel7
To,,,.
~...;:-
OIOIMCtIlA"Ae'-::!
1.0'.1 To
.., ..
SUt~Tnc:.
or St!Iod ..
....
~------~~~
Gt'aHl-1rowft " (;"".'al'7Ta", 1 BT
lS·~·I-:,,,.."'-,-."Sl.,.
ar....l-JI_V"l')'
..-:
......
-"-.-r-
To..",
.....
-.---:l=.*'s=j....
··~,,
~
I""!~
I
I
IP ; 'I I
15...
Silt-Soa..Cla;r-Trlc"or
"""""'''''''''''->
Sa""
11."
I!'"
.•
'-J',
~1'-..
'I
.. 1,in...
I-llrer-
Ter
,
~Ma
:Ii
S
!
~l
...
I
11
~
I'!
2J'~"~-----
__W-+l-
Igrd"'IW I
)
!
I, I
Cur.
Silt-Tn".. or
S.nd ..
6.!iT
'h ;!
j
j
J
I;
:;""'-""~"""".'"
~l'''~)''';
ril"
".S."
,
--------J.4~"
Silt.s...eCI.r-Tr.,uoCSlo.... .
•.•
'
w::q,....
~
.... "
''1"'',
,'I I'.
ii'
,
I
I
I
.GI'....I...[inr-'.r1
D..._
1"1
!
i
r!
Ii
I
1:,1
[
~1!""'
~
nil.
J:.
Dhi'IllJCf
SIl~_So_
Cl.,-Tr• .,.
"c
Sa•
.d
"GI',,"l'l..(;""_Y"I')'~nae
CloJ" SlIt_T.D""oC SaM"
Gr..... 1_81...._V....,. roup.
...oj;--------+-j-!'t
DlI
III'
OI' ..TUIAl.
T
..........LfIlUMlU
O.iI-UU"'-INClOIlTllI<:f
T • TTl'! 01' Io&MI'llllO 11\. ...AUIt
u.yr:~
n
I" I I!
iA
I I I
1'1
1
;,,/11
![I, 1
i
',I
'ill
IUINOJSORILLING & TanNe co-PAHY
Mll~"WUTlCA"OO"_bA'O>OMl.""'·
SOIL lIO'INGlQG ItfCORDSttt:1T
SUt ..
CI"1~rra""
or Sud ..
Gr.wel..(lre1~r"..,.Dt_
7S
CIa," 5ilt_Tr.".. of Sand"
GI'.""J-IJI_'"..,.1'ollp
'28.0..1;--------+-1-*
ou.h"I.D.r.ir.cc>.
naACI:OIT
cJ.J.C.
CHIQCm .... C.J.J.C.
1X.....
1lID"~~
Electronic Filing - Received, Clerk's Office, October 20, 2008

[/
-
Existing struetures. roads etc.
LEGENO'
,,,,.......,,," -0 ••
~
..•
J__
]'1J1I1..
·~"li
..
,,~ T~
....
~~
... ...."ili..r"nf. .'( u.
--Work under Diviskm Xd
I
rHE METROl)()UTAN SANITAR Y DISTRICT
Of liIlEATF.R CIllCAt'O
CALUMET SEWAGE TREATMENT WORKS
DIVISION Xd
ADDITIONAL SLUDGE DIGESTION TANKS
LOCATION PLAN
SCA~E:I'.200'.0'
67 20;i
2
P
AUGUST. 1967
200 100 0
....:/:90
SHEET NO.P-I
i!~.·.n7.7
••
7••7_.Dm.1• __...IIIIIIIIIiI...rii.riiii-ii-liiiiiiiiiiiiiiiiiiiiiiiiiiiiri......
.
====,.,--_,
.._
....
Electronic Filing - Received, Clerk's Office, October 20, 2008

,
~"~'
.
.,1;:'
-:,:t.t
AUGUST•• 967
SHEET
NO.
P-2
f6,SBU1LT
C(,~.,,·,
,-'
_~~J::~(4-t·I~,.
1::•.:.
I.,
.~
.. '. <; .,,' (I" .'
TIlE METROPOLITAN S,,""'TARV DISTRICT
OF GREA1"ER CHICAGO
CALUMET SEWAGE TREA1.'MENT WORKS
DIVISION
Xd
67
203
2 P
TOPOGRAPHY AND GRADING
SCALE: AS SHOWN
.-tt.
Ope,olln9 Gallery
SECTlC?,N
~-~
Scale:l
o
40-0
Pl.-AN
Scale: I;'
~
100'- 0"
~A_""~C",·
.!!R~.
_
Electronic Filing - Received, Clerk's Office, October 20, 2008

~1"&6'
OlICltlPTlOMoP_n_
l'.,.,
l.l-Wl'I.t.......
O.~IIIODtrr.uter
T.nI'tO#~11fll
~
•• ATt.LlYIL
~_IT/.D.T.;Z:C&
..
TlUClDItrCJ.J.C.
OIr:DtfD""~'
"'...... "
/);f);t'&elt;
,~-~~.-....
-,.....
,._.
I...
-,.~.
...
._
......... 0.
9
~ :,"":'=Iio:·:~':.~=,MCI
CORRECT
AS
y:
BUILT
£"Y:~/<t"it
"./
[.J.
Al8RECHT
(.\i.
TecH, ENGR.
THE METROPOLITAN SANITARY DISTRICf
O~
GREATER
CHIC.\.GO
CALUMET SEWAGE TREATMENT WORKS
DIVISION Xd
87',10' • P
TEST PITS
AND
BORINGS
AUGUST. 1967
SHEET NO. P- 3
Electronic Filing - Received, Clerk's Office, October 20, 2008

APPENDIX F
COST ESTIMATE BREAKDOWN TABLES
Electronic Filing - Received, Clerk's Office, October 20, 2008

A.??GENERAL?SITEWORK
MATERIAL?&?LABOR
INSTALLED?COST
REMARKS
DIVISION
ITEM?DESCRIPTION
UNITS
NO.
UNIT?COST
TOTAL
1
GENERAL?REQUIREMENTS?(Field?personnel,?Field?Offices,?Testing?&?Misc.?Project?Overheads)
$1,682,710 15%?of?Installed?Cost?for?all?divisions
2
SITEWORK
????General?Equipment?Mobilization/Demob?(not?including?pile?driving?equipment)
LS
1
$10,000.00
$10,000
?????Road?work?(Concrete?Pavement)
SY
3,710
$232.81
$863,735
?????Site?Excavation?(not?structures?or?conduits)
CY
3,056
$2.68
$8,194 Embankment?excavation?by?BH?and?onsite?stockpile
?????Fencing?Removal
LF
1,625
$6.44
$10,472 posts?every?20?'
?????Fencing
LF
1,524
$49.69
$75,729
?????Fence?Gates?(20')
Ea
2
$3,574
$7,147
?????Clearing?and?Grubbing
SF
238,737
$0.50
$119,369 converted?unit?to?SF
?????Strip?topsoil?and?stockpile
SY
13,889
$1.43
$19,854
?????Final?Grading
SY
13,889
$1.00
$13,889
?????Sheeting/Shoring
SF
8,340
$43.99
$366,882 +50%?for?weekend?work?only
?????Retaining?Wall?(15'H)
LF
530
$2,105.00
$1,115,650 Adjusted?to?remove?sub?profit
?????Hand?Mining/Connection/Bulkheading?at?U/S?Connection
LS
1
$450,000.00
$450,000
?????Bulkheading?and?Removal?at?Gate?Structure?#3
LS
1
$120,000.00
$120,000
?????Misc.?Utility?Demolition
LF
1,300
$12.31
$16,009
?????Erosion?Control/Final?Seeding
SF
250,000
$0.40
$99,918
?????Silt?Fence
LF
2,500
$3.00
$7,500
?????Survey,?Construction?Staking
Days
120
$1,095.52
$131,462
?????Temporary?Power?Feed
Ea
2
$5,000.00
$10,000
?????Temporary?Connections
Ea
10
$500.00
$5,000
?????Temporary?Heating
SF
14,100
$11.86
$167,189
?????Temporary?Lighting
SF
14,100
$14.40
$203,039
??????Power?Use?for?Temporary?Facilites
csf/Mo
131
$3.14
$4,936
?????Water?Bill
Mo
36
$70.30
$2,531
?????Temp?Access?Road
SY
1,225
$10.83
$13,262 Assume?33%?of?final?roadway
?????CPM?Scheduling
Proj
65.4?mil
0.04%
$26,160
?????Cleaning
Proj
65.4?mil
0.30%
$196,200
?????Commissioning
Proj
65.4?mil
0.50%
$327,000
?????Special?Equipment?Startup
Days
50
$725.82
$36,291 UV?Equipment?-?25?days,?Pumps?25?days
PIPES
?????Steam?(12"?dia)?&?Condensate?Return?(4"?dia)
LF
475
$420.00
$199,500
?????Drain?(24"?dia)
LF
550
$379.85
$208,918
?????Non-potable?Water?(6"?dia)
LF
490
$55.70
$27,293
?????WNP?Hydrants
Ea
4
$1,874.69
$7,499
?????Storm?Sewer?(24"?RCP)
LF
660
$128.38
$84,731
?????City?Water?(6"?dia)
LF
145
$55.70
$8,077
?????Potable?Fire?Hydrants
Ea
4
$1,874.69
$7,499
?????3"?STL?Casing?Pipe?with?1"?PVC?Sampling?Line
LF
45
$47.62
$2,143
?????Effluent?(36"?RCP)
LF
500
$207.12
$103,560
EFFLUENT?CONDUITS
?????Conduit,?Effluent?to?Gate?Structure?(GS)?#?1
LF
25
$2,869.00
$71,725
?????Conduit,?GS1?to?GS2
LF
425
$2,161.00
$918,425
?????Conduit,?GS1?to?LLPS
LF
52
$2,869.00
$149,188
?????Conduit,?LLPS?to?UV?Bldg
LF
100
$2,869.00
$286,900
?????Conduit,?UV?Bldg?to?GS2
LF
120
$2,869.00
$344,280
?????Conduit,?GS2?to?GS3
LF
115
$3,191.00
$366,965
MANHOLES
?????Manholes
Ea
19
$2,542.54
$48,308 Excavation/Backfill?Incidental?to?Pipe
?????Drop?Manholes
Ea
1
$9,249.82
$9,250 +25%?for?drop?manhole
?????Inlet/Catch?Basin
Ea
24
$1,318.14
$31,635 Excavation/Backfill?Incidental?to?Pipe
GATE?STRUCTURES
???GS1
??????????Excavation
CY
583
$24.07
$14,031
??????????General?Backfill
CY
96
$7.09
$681
??????????Engineered?Backfill
CY
65
$25.13
$1,634
??????????Diposal?of?Spoil
CY
487
$19.65
$9,569
??????????Piling?Mobilization
CY
1
$13,942.98
$13,943
??????????Concrete?Filled?Pipe?Piles?(50')
LF
1,500
$67.37
$101,057 Adjusted?for?VLF
??????????Pile?Load?Test
Ea
1
$18,805.44
$18,805
??????????Temporary?Sheeting/Shoring
SF
2,160
$29.39
$63,473
??????????Dewatering
LS
1
$5,000.00
$5,000
??????????Concrete
???????????????Base?Slabs?(includes?labor)
CY
41
$500.00
$20,500
???????????????Walls?(includes?labor)
CY
88
$920.00
$80,960
???????????????Elevated?Slabs?(includes?labor)
CY
41
$1,000.00
$41,000
??????????Gates
Ea
2
$90,000.00
$180,000 Material?Only
??????????Gate?installation
Ea
2
$27,000.00
$54,000 Installation
??????????Hatch?(SS)
Ea
1
$10,170.00
$10,170
???GS2
??????????Excavation
CY
867
$24.07
$20,865
??????????General?Backfill
CY
263
$7.09
$1,864
??????????Engineered?Backfill
CY
59
$25.13
$1,483
??????????Diposal?of?Spoil
CY
604
$19.65
$11,868
??????????Piling?Mobilization
LS
1
$13,942.98
$13,943
??????????Concrete?Filled?Pipe?Piles?(50')
LF
1,500
$67.37
$101,057 Adjusted?for?VLF
??????????Pile?Load?Test
Ea
1
$18,805.44
$18,805
??????????Temporary?Sheeting/Shoring
SF
3,038
$29.39
$89,274
??????????Dewatering
LS
1
$5,000.00
$5,000
??????????Concrete
???????????????Base?Slabs?(includes?labor)
CY
36
$500.00
$18,000
???????????????Walls?(includes?labor)
CY
147
$920.00
$135,240
???????????????Elevated?Slabs?(includes?labor)
CY
36
$1,000.00
$36,000
??????????Gates
Ea
2
$90,000.00
$180,000 Material?Only
??????????Gate?installation
Ea
2
$27,000.00
$54,000 Installation
??????????Hatch?(SS)
Ea
2
$10,170.00
$20,340
NSWRP?CAPITAL?COST?ESTIMATION?FOR?ULTRAVIOLET?DISINFECTION?SYSTEM?AND?LOW?LIFT?PUMP?STATION
C:\Documents?and?Settings\cockerille\Desktop\505_Final?Cost?Study?Report\Updated?Cost?Estimate\NSWRP?and?CWRP?UV?-?Capital?and?O&M?-?012808?EPC.xls\NSWRP?CAPITAL
1?of?4
Electronic Filing - Received, Clerk's Office, October 20, 2008

NSWRP?CAPITAL?COST?ESTIMATION?FOR?ULTRAVIOLET?DISINFECTION?SYSTEM?AND?LOW?LIFT?PUMP?STATION
???GS3
??????????Excavation
CY
2,008
$24.07
$48,325
??????????General?Backfill
CY
521
$7.09
$3,693
??????????Engineered?Backfill
CY
122
$25.13
$3,066
??????????Diposal?of?Spoil
CY
1,487
$19.65
$29,218
??????????Dewatering
LS
1
$25,000.00
$25,000
??????????Concrete
???????????????Base?Slabs?(includes?labor)
CY
285
$500.00
$142,500
???????????????Walls?(includes?labor)
CY
46
$920.00
$42,320
???????????????Elevated?Slabs?(includes?labor)
CY
13
$1,000.00
$13,000
??????????Bulkhead?Installation?&?Removal
LS
1
$150,000.00
$150,000
??????????Gates
Ea
1
$90,000.00
$90,000 Material?Only
??????????Gate?installation
Ea
2
$27,000.00
$54,000 Installation
??????????Hatch?(SS)
Ea
1
$10,170.00
$10,170
16
ELECTRICAL?DUCT?BANK
?????6?cells,?5"?conduit?from?Battery?E?to?UV?Building
LF
1,020
$200.00
$204,000
?????6?cells,?5"?conduit?from?UV?Building?to?PS
LF
140
$200.00
$28,000
?????4?cells,?5"?conduit?from?UV?Building?to?Pump?and?Blower?Bldg.
LF
1,000
$160.00
$160,000
?????500?kcmil?(15?kV)
LF
4,710
$20.00
$94,200
?????4/0?AWG?(600?V)
LF
690
$7.00
$4,830
?????Fiber?Optic?Cable
LF
1,850
$95.00
$175,750
Electrical?Manholes
Ea
18
$12,500.00
$225,000
TRANSFORMER?YARD?(*70%?OF?COST?ALLOCATED?TO?UV)
Cost?is?allocated?porportionally?between
Switchgear?Yard,?50ft?x?50ft,?fence?and?stone
LS
1
$50,000.00
$35,000* Battery?E,?Tertiary?Filters,?and?UV.
Medium-Voltage?Air?Interrupter?Switchgear
UV?is?70%?of?total?(5?MVA?of?7MVA)
Transformer?Primary?Switch,?38KV,?600A
EA
2
$99,000.00
$138,600*
Motor?operated?main?and?tie?switches,?15?KV,?600A
EA
3
$54,800.00
$115,080*
Feeder?switches,?15?KV,?600A
EA
4
$54,800.00
$153,440*
Substation?Transformers
MVA
20
$39,100.00
$547,400*
Site?Lighting?Poles
Ea
10
$3,280.70
$32,807
Battery?E?Switchgear?Modifications
LS
1
$66,792.00
$66,792 Labor?=?20%?of?material?cost
SUBTOTAL
$12,900,777
?????GC?Markup?on?Subs?@?5%?(except?for?General?Conditions)
$560,903
?????Subtotal
$13,461,680
A
?????Escalation?to?Midpoint?of?Construction?@?7.5%
$1,009,626
B?=?A?X?0.075
?????Subtotal
$14,471,306
A+B
?????Contractor?OH&P?@?15%
$2,019,252
C?=?(A+B)?X?0.15
?????Subtotal
$15,480,932
A+B+C
?????Planning?Level?Contingency?@?30%
$4,644,280
D?=?(A+B+C)?x?0.3
?????Subtotal
$20,125,212
A+B+C+D
?????Misc.?Capital?Costs
???????Legal?and?Fiscal?Fees?@?15%
$3,018,782
E?=?(A+B+C+D)?x?0.15
???????Engineering?Fees?including?CM?@?20%
$4,025,042
F?=?(A+B+C+D)?x?0.2
?????Subtotal
$7,043,824
?E+F
GENERAL?SITEWORK?PROJECT?TOTAL
$27,170,000
A+B+C+D+E+F
C:\Documents?and?Settings\cockerille\Desktop\505_Final?Cost?Study?Report\Updated?Cost?Estimate\NSWRP?and?CWRP?UV?-?Capital?and?O&M?-?012808?EPC.xls\NSWRP?CAPITAL
2?of?4
Electronic Filing - Received, Clerk's Office, October 20, 2008

NSWRP?CAPITAL?COST?ESTIMATION?FOR?ULTRAVIOLET?DISINFECTION?SYSTEM?AND?LOW?LIFT?PUMP?STATION
B.??LOW?LIFT?PUMP?STATION
MATERIAL
INSTALLED?COST
REMARKS
DIVISION ITEM?DESCRIPTION
UNITS
NO.
UNIT?COST
TOTAL
1
GENERAL?REQUIREMENTS?(Field?personnel,?Field?Offices,?Testing?&?Misc.?Project?Overheads)
$1,618,783 15%?of?Installed?Cost?for?all?divisions
2
SITEWORK
?????Excavation
CY
12,500
$24.07
$300,828
?????General?Backfill
CY
609
$7.09
$4,317
?????Engineered?Backfill
CY
260
$25.13
$6,534
?????Disposal?of?Spoil
CY
11,891
$19.65
$233,647
?????Piling?Mobilization
LS
1
$13,942.98
$13,943
?????Concrete?Filled?Pipe?Piles?(50')
LF
10,000
$67.37
$673,715
?????Pile?Load?Test
Ea
3
$18,805.44
$56,416
?????Temporary?Sheeting/Shoring
SF
10,530
$29.39
$309,431
?????Dewatering
LS
1
$40,000
$40,000
3
CONCRETE
??????Base?Slabs?(includes?labor)
CY
885
$500.00
$442,500
??????Walls?(includes?labor)
CY
391
$920.00
$359,720
??????Elevated?Slabs?(includes?labor)
CY
124
$1,000.00
$124,000
4
MASONRY
?????Exterior?Walls
SF
13,850
$45.00
$623,250 Revised?up?due?to?complex?features
5
METALS
?????Handrails?and?Railings
LF
900
$100.00
$90,000
?????Structural?Steel
TONS
53
$5,000
$265,000
SS?Ladder?(Roof?Access)
LF
40
$745.80
$29,832
?????Metal?Stairs
Ea
3
$8,000.00
$24,000
?????Metal?Decking?(Roof)?(includes?insulation)
SF
4,600
$3.10
$14,243
6
WOOD?&?PLASTICS
$0
7
THERMAL?&?MOISTURE?PROTECTION
?????Roofing?System
SF
4,600
$7.00
$32,200
?????Roof?Drainage?System
SF
4,600
$1.00
$4,600
8
DOORS?&?WINDOWS
?????Doors??(SS)
Ea
6
$6,500
$39,000
?????Windows
SF
1,310
$25
$32,750
?????Skylights
SF
567
$45
$25,515
?????Overhead?Door
Ea
1
$15,000
$15,000
?????Submerged?Manways
Ea
4
$7,500
$30,000
?????Hatches?(SS)
Ea
3
$10,170
$30,510
9
FINISHES
?????High?Performance?Coating?(Walls)
SF
11,480
$2.00
$22,960
?????Floor?Coating
SF
4,600
$2.25
$10,350
10
SPECIALITIES
$0
11
EQUIPMENT
?????Pumps?(includes?motors)
Ea
6
$729,250
$4,375,500 Installation?=?25%?Eqpm.?Cost
?????Perforated?Plate?Baffles
Ea
6
$36,500
$219,000
13
SPECIAL?CONSTRUCTION?(incl.?INSTRUMENTATION)
?????Lightning?Protection?Systems
LS
1
$7,080
$7,080
?????Distributed?Control?System?(DCS)?Modifications
LS
1
$40,000
$40,000
?????Input/Output?(I/O)?Point?List
EA
109
$1,500
$163,500
14
CONVEYING?SYSTEMS
?????Bridge?Crane/Hoist
LS
1
$85,466
$85,466 Installation?=?40%?Eqpm.?Cost
15
MECHANICAL
?????Plant?Water
LS
1
$20,000
$20,000
?????City?Water
LS
1
$20,000
$20,000
?????Slide?Gates
Ea
4
$117,000
$468,000 +30%?for?installation
?????Slide?Gates?(Bonnet)
Ea
2
$234,000
$468,000 +30%?for?installation
?????Plug?Valves?(8")
Ea
2
$1,300
$2,600
?????Motorized?Louvres,?Med
Ea
4
$2,000
$8,000
?????Exhaust?Fans,?Wall
Ea
6
$2,800
$16,800
?????Unit?Heaters,?Suspended
Ea
6
$2,000
$12,000
?????Building?Plumbing
LS
1
$25,000
$25,000
?????Butterfly?Valves?(60")
Ea
6
$30,000
$180,000 +20%?For?Installation
?????Flap?Gate?(60"?)
Ea
6
$12,000
$72,000 +20%?For?Installation
16
ELECTRICAL
Building?Systems
?????Basic?Material
SF
4,600
$4.62
$21,260
?????Devices
SF
4,600
$0.35
$1,611
?????Equipment?Connections
SF
4,600
$2.67
$12,267
?????Service?&?Distribution
SF
4,600
$2.11
$9,720
?????Lighting
SF
4,600
$5.65
$25,990
?????Intercom?System
SF
4,600
$0.47
$2,183
?????Fire?Alarm?&?Detection
SF
4,600
$0.51
$2,339
Low?Voltage?Switchgear
?????Main?Breaker,?3000A?w/?Metering
EA
2
$77,114
$154,228
?????Tie?Breaker,?3000A
EA
1
$74,614
$74,614
?????Feeder?Breaker,?1600A
EA
6
$36,348
$218,088
?????Space?for?Future?Breaker
EA
2
$5,500
$11,000
?????MCC?RVSS
Ea
4
$22,500
$90,000
?????Variable?Frequency?Drive,?250?horsepower
EA
2
$65,688
$131,375
SUBTOTAL
$12,410,667
?????GC?Markup?on?Subs?@?5%?(except?for?General?Conditions)
$539,594
?????Subtotal
$12,950,261
A
?????Escalation?to?Midpoint?of?Construction?@?7.5%
$971,270
B?=?A?X?0.075
?????Subtotal
$13,381,936
A+B
?????Contractor?OH&P?@?15%
$2,007,290
C?=?(A+B)?X?0.15
?????Subtotal
$15,389,227
A+B+C
?????Planning?Level?Contingency?@?30%
$4,616,768
D?=?(A+B+C)?x?0.3
?????Subtotal
$20,005,995
A+B+C+D
?????Misc.?Capital?Costs
???????Legal?and?Fiscal?Fees?@?15%
$3,000,899
E?=?(A+B+C+D)?x?0.15
???????Engineering?Fees?including?CM?@?20%
$4,001,199
F?=?(A+B+C+D)?x?0.2
?????Subtotal
$7,002,098
E+F
LOW?LIFT?PUMP?STATION?PROJECT?TOTAL
$27,010,000
A+B+C+D+E+F
C:\Documents?and?Settings\cockerille\Desktop\505_Final?Cost?Study?Report\Updated?Cost?Estimate\NSWRP?and?CWRP?UV?-?Capital?and?O&M?-?012808?EPC.xls\NSWRP?CAPITAL
3?of?4
Electronic Filing - Received, Clerk's Office, October 20, 2008

NSWRP?CAPITAL?COST?ESTIMATION?FOR?ULTRAVIOLET?DISINFECTION?SYSTEM?AND?LOW?LIFT?PUMP?STATION
C.??UV?DISINFECTION?BUILDING
MATERIAL
INSTALLED?COST
REMARKS
DIVISION ITEM?DESCRIPTION
UNITS
NO.
UNIT?COST
TOTAL
1
GENERAL?REQUIREMENTS?(Field?personnel,?Field?Offices,?Testing?&?Misc.?Project?Overheads)
$2,965,715 15%?of?Installed?Cost?for?all?divisions
2
SITEWORK
?????Excavation
CY
6,000
$24.07
$144,398
?????General?Backfill
CY
2,300
$7.09
$16,304
?????Engineered?Backfill
CY
400
$25.13
$10,053
?????Disposal?of?Spoil
CY
3,700
$19.65
$72,701
?????Piling?Mobilization
LS
1
$13,942.98
$13,943
?????Concrete?Filled?Pipe?Piles?(50')
LF
16,000
$67.37
$1,077,944
?????Pile?Load?Test
Ea
3
$18,805.44
$56,416
?????Temporary?Sheeting/Shoring
SF
8,000
$29.39
$235,086
?????Dewatering
LS
1
$25,000.00
$25,000
3
CONCRETE
?????Base?Slabs?(includes?labor)
CY
900
$500.00
$450,000
?????Walls?(includes?labor)
CY
930
$920.00
$855,600
?????Elevated?Slabs?(includes?labor)
CY
500
$1,000.00
$500,000
4
MASONRY
?????Interior?Walls
SF
2,067
$25.00
$51,675
?????Exterior?Walls
SF
6,500
$45.00
$292,500 Revised?up?due?to?complex?features
5
METALS
SS?Ladder?(Roof?Access)
LF
16
$745.80
$11,933
????Structural?Steel
Tons
1
$5,000.00
$5,000
?????Gratings
SF
1,300
$30.00
$39,000
6
WOOD?&?PLASTICS
?????Misc?Blocking
LS
1
$5,000.00
$5,000
7
THERMAL?&?MOISTURE?PROTECTION
?????Roofing?System
SF
8,550
$7.00
$59,850
?????Roof?Drainage?System
SF
8,550
$1.00
$8,550
8
DOORS?&?WINDOWS
?????Doors?(SS)
Ea
11
$6,500
$71,500
?????Windows
SF
1,030
$25.00
$25,750
?????Skylights
SF
480
$30.00
$14,400
?????Overhead?Door
Ea
1
$15,000.00
$15,000
?????Hatches
Ea
3
$10,170.00
$30,510
9
FINISHES
?????High?Performance?Coatings?(walls)
SF
8,000
$2.00
$16,000
?????Floor?Coating
SF
5,007
$2.25
$11,266
?????Accoustic?Ceiling
SF
2,000
$4.00
$8,000
10
SPECIALITIES
$0
11
EQUIPMENT
?????UV?Reactors
LS
1
$10,339,140.55
$10,339,141 Installation?=?15%?Eqpm.?Cost
?????Effluent?Sampling?System,?Pump/Sampler
LS
1
$10,000.00
$10,000
13
SPECIAL?CONSTRUCTION?(incl.?INSTRUMENTATION)
?????Lighting?Protection?Systems
LS
1
$7,080.00
$7,080
?????Distributed?Control?System?(DCS)?Modifications
LS
1
$40,000.00
$40,000
?????Input/Output?(I/O)?Point?List
EA
164
$1,000.00
$164,000
14
CONVEYING?SYSTEMS
$0
15
MECHANICAL
?????Misc.?Piping
LS
1
$25,000.00
$25,000
?????Weir?Gates,?Motorized
Ea
5
$169,000.00
$845,000 +30%?for?installation
?????Slide?Gates,?Motorized
Ea
5
$188,500.00
$942,500 +30%?for?installation
?????Motorized?Louvres,?Med
Ea
2
$860.00
$1,720
?????Motorized?Louvres,?Large
Ea
2
$2,000.00
$4,000
?????Exhaust?Fans,?Wall
Ea
3
$1,300.00
$3,900
?????Exhaust?Fans,?Roof
Ea
3
$3,125.00
$9,375
?????Unit?Heaters,?Suspended
Ea
5
$2,000.00
$10,000
?????Unit?Heaters,?Overhead
Ea
2
$4,500.00
$9,000
?????Air?Handling?Units
Ea
1
$3,500.00
$3,500
?????AHU/ACCU
Ea
1
$10,500.00
$10,500
?????Building?Plumbing
LS
1
$10,000.00
$10,000
?????Flow?Meters,?A/V
Ea
2
$20,190.00
$40,380 +20%?for?installation
?????Mud?Valves
Ea
5
$1,000.00
$5,000
?????Hatches,?Special
Ea
10
$15,000.00
$150,000
16
ELECTRICAL
???Building?Systems
??????????Basic?Material
SF
8,550
$4.62
$39,516
??????????Devices
SF
8,550
$0.35
$2,995
??????????Equipment?Connections
SF
8,550
$2.67
$22,801
??????????Service?&?Distribution
SF
8,550
$2.11
$18,067
??????????Lighting
SF
8,550
$5.65
$48,308
??????????Intercom?System
SF
8,550
$0.47
$4,058
??????????Fire?Alarm?&?Detection
SF
8,550
$0.51
$4,348
???Medium-Voltage?Circuit?Breaker?Switchgear
??????????Main?Breaker
EA
2
$109,050.00
$218,100
??????????Tie?Breaker
EA
1
$109,050.00
$109,050
??????????Feeders?(2?high)
EA
7
$188,364.00
$1,318,548
??????????Feeders?(2?high)???-?Prepared?Space
EA
3
$34,070.00
$102,210
??????????Control?Power?Section
EA
2
$48,630.00
$97,260
??????????Control?Power?Transformer,?75?KVA
EA
2
$25,250.00
$50,500
???Secondary?Unit?Substations
??????????Transformer,?1500?KVA,?80?deg?C,?VPI
EA
5
$74,745.00
$373,725
??????????Feeder?Breaker,?1600A
EA
12
$36,348.00
$436,176
??????????Space?for?Future?Breaker
EA
8
$5,500.00
$44,000
???Padmount?Transformer,?1500?KVA,?Pump?Station?Service
EA
2
$64,150.00
$128,300
SUBTOTAL
$22,737,150
?????GC?Markup?on?Subs?@?5%?(except?for?General?Conditions)
$988,572
?????Subtotal
$23,725,722
A
?????Escalation?to?Midpoint?of?Construction?@?7.5%?(18?months?to?midpoint)
$1,779,429
B?=?A?X?0.075
?????Subtotal
$24,516,579
A+B
?????Contractor?OH&P?@?15%
$3,677,487
C?=?(A+B)?X?0.15
?????Subtotal
$28,194,066
A+B+C
?????Planning?Level?Contingency?@?30%
$8,458,220
D?=?(A+B+C)?x?0.3
?????Subtotal
$36,652,286
A+B+C+D
?????Misc.?Capital?Costs
???????Legal?and?Fiscal?Fees?@?15%
$5,497,843
E?=?(A+B+C+D)?x?0.15
???????Engineering?Fees?including?CM?@?20%
$7,330,457
F?=?(A+B+C+D)?x?0.2
?????Subtotal
$12,828,300
E+F
UV?DISINFECTION?BUILDING?PROJECT?TOTAL
$49,490,000
A+B+C+D+E+F
PROJECT?GRAND?TOTAL
$103,670,000
C:\Documents?and?Settings\cockerille\Desktop\505_Final?Cost?Study?Report\Updated?Cost?Estimate\NSWRP?and?CWRP?UV?-?Capital?and?O&M?-?012808?EPC.xls\NSWRP?CAPITAL
4?of?4
Electronic Filing - Received, Clerk's Office, October 20, 2008

PRESENT?WORTH?FACTOR
Life,?N
20
Ineterest,?i
4.875
Inflation,?j
3
Present?Worth?Factor
23.17
??Average?Energy?Cost,?$/kWh
$0.0684
A.??GENERAL?SITEWORK
Operating
Time?of?Operation
Power?Usage
Energy?Cost Annual?Cost
Present?Worth
Factor
Present?Worth
Item
(kW)
(hrs/day)
(kW-hr/day)
($/day)
?($)
($)
OPERATIONS
Energy?-?Electrical
10
24
240.0
$16.42
$5,994
23.17
$138,887
Subtotal
$5,994
$138,887
No.?of?Operators
Time
Total?Time
Labor?Rate
Annual?Cost
Present?Worth
Factor
Present?Worth
(per?day)
(hrs/day/operator)
(hrs/day)
($/hr)
($)
($)
MAINTENANCE
Routine?Maintenance
1
2
2
$95.00
$69,350
23.17
$1,606,840
Labor?-?Operator
0
0
0
$95.00
$0
23.17
$0
Electrician
0
0
0
$165.00
$0
23.17
$0
Subtotal
NSWRP
$69,350
$1,606,840
Construction?Cost?of
New?Equip.?&?Piping
%?for?Annual??Parts?&
Supplies
Annual?Cost
Present?Worth
Factor
Present?Worth
($)
($)
($)
PARTS?AND?SUPPLIES
Parts?and?Supplies
1,099,218
5%
$54,961
23.17
$1,273,444
Subtotal
$54,961
$1,273,444
General?Sitework?Total?Annual?O&M
$130,305
General?Sitework?Total?Present?Worth?O&M?Cost
$3,019,171
B.??LOW?LIFT?PUMP?STATION
Item
Operating
Time?of?Operation
Power?Usage
Energy?Cost Annual?Cost
Present?Worth
Factor
Present?Worth
(kW)
(hrs/day)
(kW-hr/day)
($/day)
?($)
($)
OPERATIONS
Energy?-?Electrical?(333?MGD?Avg?Q)
375
24
9000.0
$615.85
$160,121
23.17
$3,709,994
Subtotal
$160,121
$3,709,994
No.?of?Operators
Time
Total?Time
Labor?Rate
Annual?Cost
Present?Worth
Factor
Present?Worth
(per?day)
(hrs/day/operator)
(hrs/day)
($/hr)
($)
($)
MAINTENANCE
Routine?Maintenance
2
2
4
$95.00
$138,700
23.17
$3,213,679
Labor?-?Operator
2
8
16
$95.00
$395,200
23.17
$9,156,784
Electrician
1
1
1
$165.00
$60,225
23.17
$1,395,413
Subtotal
$594,125
$13,765,876
Construction?Cost?of
New?Equip.?&?Piping
%?for?Annual??Parts?&
Supplies
Annual?Cost
Present?Worth
Factor
Present?Worth
($)
($)
($)
PARTS?AND?SUPPLIES
Parts?and?Supplies
6,998,132
5%
$349,907
23.17
$8,107,336
Subtotal
$349,907
$8,107,336
Low?Lift?Pump?Station?Total?Annual?O&M
$1,104,152
Low?Lift?Pump?Station?Total?Present?Worth?O&M?Cost
$25,583,206
C.??DISINFECTION?SYSTEM
Item
Operating
Time?of?Operation
Power?Usage
Energy?Cost Annual?Cost
Present?Worth
Factor
Present?Worth
(kW)
(hrs/day)
(kW-hr/day)
($/day)
?($)
($)
OPERATIONS
Energy?-?Electrical
3,182
24
76,368
$5,225.68
$1,358,677
23.17
$31,480,540
Subtotal
$1,358,677
$31,480,540
*Annual?Energy?Costs?based?on?24?hours?operation?for?9?months?(March?thru?November)
No.?of?Operators
Time
Total?Time
Labor?Rate
Annual?Cost
Present?Worth
Factor
Present?Worth
(per?day)
(hrs/unit-time/operator)
(hrs/unit-time)
($/hr)
($)
($)
MAINTENANCE
Electrician?for?routine?maintenance
1
2
2
$165.00
$12,257
23.17
$283,998
per?week
per?week
Electrician?to?replace?UV?lamps
2
8
16
$165.00
$137,657
23.17
$3,189,516
per?week
per?week
Electrician?for?lamp?cleaning/inspection
2
40
80
$165.00
$688,286
23.17
$15,947,580
per?week
per?week
Labor?-?Operator
2
8
16
$95.00
$395,200
23.17
$9,156,784
per?day
per?day
Subtotal
$1,233,400
$28,577,878
*Annual?Maintenance?Costs?based?on?-?(a)?operation?for?9?months?(March?thru?November);?(b)?based?on?365?days?only?for?lamp?replacement.
Construction?Cost?of
New?Equip.?&?Piping
%?for?Annual??Parts?&
Supplies
Number?of?Units
Replaced?per?Year
Cost?per?Unit Annual?Cost
Present?Worth
Factor
Present?Worth
($)
($)
($)
($)
PARTS?AND?SUPPLIES
Parts?and?Supplies
5,308,916
5%
$265,446
23.17
$6,150,379
Lamp?(replacement)
1680
$215.00
$361,200
23.17
$8,369,004
Ballast?(replacement)
336
$877.50
$294,840
23.17
$6,831,443
Quartz?sleeve?(replacement)
168
$338.00
$56,784
23.17
$1,315,685
Scraper?wiper?(replacement)
560
$40.00
$22,400
23.17
$519,008
Subtotal
$1,000,670
$23,185,519
UV?System?Total?Annual?O&M
$3,592,747
UV?System?Total?Present?Worth?O&M?Cost
$83,243,937
Project?Grand?Total?Annual?O&M
$4,830,000
Project?Total?Present?Worth?O&M?Cost
$111,900,000
NSWRP?ANNUAL?O&M?COSTS?FOR?UV?DISINFECTION?SYSTEM?AND?LOW?LIFT?PUMP?STATION
?1?of?1
Electronic Filing - Received, Clerk's Office, October 20, 2008

A.??NSWRP?UV?PILOT?PLANT
INSTALLED?COST
DIVISION
ITEM?DESCRIPTION
UNITS NO. UNIT?COST
TOTAL
1
General?Requirements
LS
1
$149,630
2
Site?Work
SF
10,000
$15
$150,000
3
Concrete?Channel
LF
100
$1,450
$145,000
3
Gates
Ea
2
$75,000
$150,000
3
Discharge?Piping?(48"?RCP)
LF
500
$12
$6,064
3
Trenching?and?Backfill
LF
500
$11
$5,320
11
UV?Reactor?(20?MGD)
Ea
1
$350,000
$350,000
10
Metal?Sandwich?Building
SF
1200
$134
$161,150
16
Temporary?Power
LS
1
$30,000
$30,000
SUBTOTAL
$997,534
?????GC?Markup?on?Subs?@?5%?(except?for?General?Conditions)
$49,877
?????Subtotal
$1,047,411
?????Escalation?to?Midpoint?of?Construction?@?7.5%?(18?months?to?midpoint)$78,556
?????Subtotal
$1,076,090
?????Contractor?OH&P?@?15%
$161,413
?????Subtotal
$1,237,503
?????Planning?Level?Contingency?@?30%
$371,251
?????Subtotal
$1,608,754
?????Misc.?Capital?Costs
???????Legal?and?Fiscal?Fees?@?15%
$241,313
???????Engineering?Fees?including?CM?@?20%
$321,751
?????Subtotal
$563,064
NSWRP?PILOT?PLANT?PROJECT?TOTAL
$2,180,000
Electronic Filing - Received, Clerk's Office, October 20, 2008

A.??NSWRP?ComEd?Service
INSTALLED?COST
DIVISION
ITEM?DESCRIPTION
UNITS NO.
UNIT?COST
TOTAL
1
General?Requirements
LS
1
$176,723
2
Miscellaneous?Restoration
SF
10,000
$15
$150,000
Underground?Duct?(Service?from?TSS-85)
?????6?cells,?5"?conduit?from?Battery?E?to?UV?Building
LF
120
$200.00
$24,000
?????500?kcmil?(15?kV)
LF
540
$20.00
$10,800
?????Electrical?Manholes
Ea
2
$12,500.00
$25,000
ComEd?Second?Service
???Flagman?(2)
Days
30
$
1,050.00
$
31,500.00
Digging?holes?in?earth
EA
50
$
436.20
$
21,810.13
Wood?electric?utility?pole,?45ft
EA
50
$
1,788.34
$
89,416.90
Wood?poles,?material?handling?and?spotting
EA
50
$
611.91
$
30,595.32
Erect?poles&?backfill?holes?in?earth
EA
50
$
3,113.72
$
155,685.75
Double?Crossarm,?each?10?ft?x?3-1/2?in?x?4-1/2?in
EA
50
$
1,115.17
$
55,758.72
Double?Crossarm,?each?8?ft?x?3-1/2?in?x?4-1/2?in
EA
50
$
1,036.21
$
51,810.50
Crossarm,?material?handling?and?spotting
EA
50
$
273.04
$
13,652.10
Install?crossarm
EA
50
$
1,490.13
$
74,506.55
Conductor,?795?to?954
W-Mi
6
$ 21,119.70
$
126,718.20
Wire,?material?handling?and?spotting
W-Mi
6
$
1,116.55
$
6,699.32
Insulators,?Pedestal?type
EA
300
$
125.68
$
37,703.58
Overhead?ground?wire
W-Mi
2
$ 10,766.64
$
21,533.28
Overhead?ground?wire,?material?handling?and?spotting
W-Mi
2
$
702.40
$
1,404.79
ROW?clearing
acre
7
$
964.41
$
6,750.87
ROW?restoration
acre
7
$
1,933.48
$
13,534.33
Surveying
LS
1
$113,000.00
$
113,000.00
Soil?Boring
LS
1
$ 16,272.00
$
16,272.00
16
Substation?Modifications
TSS-85?Protective?Device?Adjustment
LS
1
$ 50,000.00
$
50,000.00
TSS-88?Protective?Device?Adjustment
LS
1
$ 50,000.00
$
50,000.00
SUBTOTAL
$1,354,875
?????GC?Markup?on?Subs?@?5%?(except?for?General?Conditions)
$67,744
?????Subtotal
$1,422,619
?????Escalation?to?Midpoint?of?Construction?@?0%
$0
?????Subtotal
$1,422,619
?????Contractor?OH&P?@?15%
$213,393
?????Subtotal
$1,636,012
?????Planning?Level?Contingency?@?30%
$490,804
?????Subtotal
$2,126,815
?????Misc.?Capital?Costs
???????Legal?and?Fiscal?Fees?@?15%
$319,022
???????Engineering?Fees?including?CM?@?20%
$425,363
?????Subtotal
$744,385
NSWRP?COMED?SERVICE?IMPROVEMENTS?PROJECT?TOTAL
$2,880,000
Electronic Filing - Received, Clerk's Office, October 20, 2008

A.??CWRP?CHLORINE?CONTACT?CHAMBER?DEMOLITION
INSTALLED?COST
DIVISION
ITEM?DESCRIPTION
UNITS NO. UNIT?COST
TOTAL
2
Demolition
Exterior?Walls?(18")
SF
17395
24.30
$422,767
Interior?Walls
SF
63840
22.71
$1,450,006
Disposal?at?Landfill
CY
3922
12.89
$50,554
Structural?Backfill
CY
4002
11.50
$46,008
Common?Backfill
CY
36021
10.70
$385,373
SUBTOTAL
$2,360,000
Extended?Total
$4,980,000
Electronic Filing - Received, Clerk's Office, October 20, 2008

PRESENT?WORTH?FACTOR
Life,?N
20
Ineterest,?i
4.875
Inflation,?j
3
Present?Worth?Factor
23.17
??Average?Energy?Cost,?$/kWh
$0.0684
A.??GENERAL?SITEWORK
Operating
Time?of?Operation
Power?Usage
Energy?Cost
Annual?Cost
Present?Worth
Factor
Present?Worth
Item
(kW)
(hrs/day)
(kW-hr/day)
($/day)
?($)
($)
OPERATIONS
Energy?-?Electrical
10.67
24
256.0
$17.52
$6,394
23.17
$148,146
Subtotal
$6,394
$148,146
No.?of?Operators
Time
Total?Time
Labor?Rate
Annual?Cost
Present?Worth
Factor
Present?Worth
(per?day)
(hrs/day/operator)
(hrs/day)
($/hr)
($)
($)
MAINTENANCE
Routine?Maintenance
1
2
2
$90.00
$65,700
23.17
$1,522,269
Labor?-?Operator
0
0
0
$90.00
$0
23.17
$0
Electrician
0
0
0
$159.50
$0
23.17
$0
Subtotal
NSWRP
$65,700
$1,522,269
Construction?Cost?of
New?Equip.?&?Piping
%?for?Annual??Parts?&
Supplies
Annual?Cost
Present?Worth
Factor
Present?Worth
($)
($)
($)
PARTS?AND?SUPPLIES
Parts?and?Supplies
1,172,499
5%
$58,625
23.17
$1,358,341
Subtotal
$58,625
$1,358,341
General?Sitework?Total?Annual?O&M
$130,719
General?Sitework?Total?Present?Worth?O&M?Cost
$3,028,756
B.??LOW?LIFT?PUMP?STATION
Item
Operating
Time?of?Operation
Power?Usage
Energy?Cost
Annual?Cost
Present?Worth
Factor
Present?Worth
(kW)
(hrs/day)
(kW-hr/day)
($/day)
?($)
($)
OPERATIONS
Energy?-?Electrical?(305?MGD?Avg?Q)
331
24
7944.0
$543.59
$141,333
23.17
$3,274,688
Subtotal
$141,333
$3,274,688
No.?of?Operators
Time
Total?Time
Labor?Rate
Annual?Cost
Present?Worth
Factor
Present?Worth
(per?day)
(hrs/day/operator)
(hrs/day)
($/hr)
($)
($)
MAINTENANCE
Routine?Maintenance
2
2
4
$90.00
$131,400
23.17
$3,044,538
Labor?-?Operator
1
8
8
$90.00
$187,200
23.17
$4,337,424
Electrician
1
1
1
$159.50
$58,218
23.17
$1,348,899
Subtotal
$376,818
$8,730,861
Construction?Cost?of
New?Equip.?&?Piping
%?for?Annual??Parts?&
Supplies
Annual?Cost
Present?Worth
Factor
Present?Worth
($)
($)
($)
PARTS?AND?SUPPLIES
Parts?and?Supplies
7,464,674
5%
$373,234
23.17
$8,647,825
Subtotal
$373,234
$8,647,825
Low?Lift?Pump?Station?Total?Annual?O&M
$891,384
Low?Lift?Pump?Station?Total?Present?Worth?O&M?Cost
$20,653,375
C.??DISINFECTION?SYSTEM
Item
Operating
Time?of?Operation
Power?Usage
Energy?Cost
Annual?Cost
Present?Worth
Factor
Present?Worth
(kW)
(hrs/day)
(kW-hr/day)
($/day)
?($)
($)
OPERATIONS
Energy?-?Electrical
2,903
24
69,672
$4,767.49
$1,239,547
23.17
$28,720,304
Subtotal
$1,239,547
$28,720,304
*Annual?Energy?Costs?based?on?24?hours?operation?for?9?months?(March?thru?November)
No.?of?Operators
Time
Total?Time
Labor?Rate
Annual?Cost
Present?Worth
Factor
Present?Worth
(per?day)
(hrs/unit-time/operator)
(hrs/unit-time)
($/hr)
($)
($)
MAINTENANCE
Electrician?for?routine?maintenance
1
2
2
$165.00
$12,257
23.17
$283,998
per?week
per?week
Electrician?to?replace?UV?lamps
2
8
16
$165.00
$137,657
23.17
$3,189,516
per?week
per?week
Operator?for?lamp?cleaning/inspection
2
40
80
$165.00
$688,286
23.17
$15,947,580
per?week
per?week
Labor?-?Operator
2
8
16
$95.00
$395,200
23.17
$9,156,784
per?day
per?day
Subtotal
$1,233,400
$28,577,878
*Annual?Maintenance?Costs?based?on?-?(a)?operation?for?9?months?(March?thru?November);?(b)?based?on?365?days?only?for?lamp?replacement.
Construction?Cost?of
New?Equip.?&?Piping
%?for?Annual??Parts?&
Supplies
Number?of?Units
Replaced?per?Year
Cost?per?Unit Annual?Cost
Present?Worth
Factor
Present?Worth
($)
($)
($)
($)
PARTS?AND?SUPPLIES
Parts?and?Supplies
5,662,843
5%
$283,142
23.17
$6,560,404
Lamp?(replacement)
1680
$215.00
$361,200
23.17
$8,369,004
Ballast?(replacement)
336
$877.50
$294,840
23.17
$6,831,443
Quartz?sleeve?(replacement)
168
$338.00
$56,784
23.17
$1,315,685
Scraper?wiper?(replacement)
560
$40.00
$22,400
23.17
$519,008
Subtotal
$1,018,366
$23,595,544
UV?System?Total?Annual?O&M
$3,491,313
UV?System?Total?Present?Worth?O&M?Cost
$80,893,726
Project?Grand?Total?Annual?O&M
$4,520,000
Project?Total?Present?Worth?O&M?Cost
$104,600,000
CWRP?ANNUAL?O&M?COSTS?FOR?UV?DISINFECTION?SYSTEM?AND?LOW?LIFT?PUMP?STATION
?1?of?1
Electronic Filing - Received, Clerk's Office, October 20, 2008

A.??CWRP?ComEd?Service
INSTALLED?COST
DIVISION
ITEM?DESCRIPTION
UNITS NO.
UNIT?COST
TOTAL
1
General?Requirements
LS
1
$7,500
16
Substation?Modifications
TSS-85?Protective?Device?Adjustment
LS
1
$ 50,000.00
$
50,000.00
SUBTOTAL
$57,500
?????GC?Markup?on?Subs?@?5%?(except?for?General?Conditions)
$2,875
?????Subtotal
$60,375
?????Escalation?to?Midpoint?of?Construction?@?0%
$0
?????Subtotal
$60,375
?????Contractor?OH&P?@?15%
$9,056
?????Subtotal
$69,431
?????Planning?Level?Contingency?@?30%
$20,829
?????Subtotal
$90,261
?????Misc.?Capital?Costs
???????Legal?and?Fiscal?Fees?@?15%
$13,539
???????Engineering?Fees?including?CM?@?20%
$18,052
?????Subtotal
$31,591
CWRP?COMED?SERVICE?IMPROVEMENTS?PROJECT?TOTAL
$130,000
Electronic Filing - Received, Clerk's Office, October 20, 2008

Back to top


DISINFECTION?COST?STUDY

Back to top


HYDRAULIC?EVALUATION
FOR

Back to top


METROPOLITAN?WATER?RECLAMATION

Back to top


DISTRICT?OF?GREATER?CHICAGO

Back to top


STICKNEY?WATER?RECLAMATION?PLANT

Back to top


TECHNICAL?MEMORANDUM

Back to top


June?2,?2008
Prepared?By
303?EAST?WACKER?DRIVE,?SUITE?600
CHICAGO,?ILLINOIS?60601

Back to top


MWRDGC?Project?No.?07-026-2P

Back to top


CTE?Project?No.?60040695
Electronic Filing - Received, Clerk's Office, October 20, 2008

i
TABLE?OF?CONTENTS
1
INTRODUCTION ................................................................................................. 1
1.1
Objective..........................................................................................................1
2
PROPOSED?FACILITIES .................................................................................... 2
2.1
Key?Considerations?for?Design?Development ...................................................2
2.1.1?Site?Constraints ...............................................................................................2
2.1.2?Hydraulic?Constraints/Need?for?Additional?Pumping ........................................5
3
HYDRAULIC?ANALYSIS?OF?THE?UV?DISINFECTION?FACILITIES .................... 6
3.1
Objectives........................................................................................................6
3.2
Overview..........................................................................................................6
3.3
Assumptions ....................................................................................................6
3.4
Results.............................................................................................................7
4
UV?DISINFECTION?FACILITIES........................................................................ 10
4.1
Background ...................................................................................................10
4.2
Basis?of?Design..............................................................................................11
4.2.1
Proposed?Design?Criteria?for?UV?Disinfection?Equipment ...........................11
4.2.2
Proposed?Layout........................................................................................12
4.2.3
Proposed?Basis?of?Design?Criteria..............................................................12
5
LOW?LIFT?PUMP?STATION ..............................................................................14
5.1
Pump?Type ....................................................................................................14
5.2
Basis?of?Design..............................................................................................14
5.3
Proposed?Operational?Description .................................................................15
5.4
Proposed?Layout............................................................................................15
6
SUMMARY ........................................................................................................ 16
LIST?OF?TABLES
Table?1?-?Theoretical?Water?Surface?Elevation?Assuming?All?Gravity?Flow,?Existing
Conditions .......................................................................................................................5
Table?2?-?Summary?of?Proposed?WSE?including?UV?Disinfection?Facilities ......................8
Table?3?–?Design?Parameters?for?UV?Disinfection?Unit?at?NSWRP ................................12
Table?4?-?Low?Lift?Pump?Station?Basis?of?Design ...........................................................14
Table?5?-?Summary?of?Pump?Operation .........................................................................15
LIST?OF?FIGURES
Figure?1?–?Proposed?Site?Plan?........................................................................................4
Figure?2?–?Hydraulic?Profile?through?UV?Disinfection?Facilities.........................................9
Electronic Filing - Received, Clerk's Office, October 20, 2008

ii
LIST?OF?APPENDICES
Appendix?A?
Site?Plan?from?SWRP?Master?Plan
Appendix?B?
Selected?Pages?from?Chicago?Underflow?Plan?Detailed?Design?Report
(USACE,?1999)
Appendix?C?
Proposed?Layout?of?Low?Lift?Pump?Station
Electronic Filing - Received, Clerk's Office, October 20, 2008

1
1
INTRODUCTION
This? technical? memorandum? has? been? developed? as? part?of? the? Preliminary? Cost? Opinion
for? Ultraviolet? (UV)? Disinfection? Facilities? Study? at? the? Metropolitan? Water? Reclamation
District? of? Greater? Chicago’s? (MWRDGC,?or? District)? Stickney?Water? Reclamation?Plant
(SWRP)? in? Illinois.? This? memorandum? continues? the? work? that? began? in? TM1-WQ? which
was? developed? previously? as? part? of? a? Water? Quality? (WQ)? Strategy? for? affected? Chicago
Area?Waterways.
The? TM1-WQ? documented? the? results? of? a? Consoer? Townsend? Envirodyne? Engineers
(CTE)? study? of? effluent? disinfection? alternatives? for? the? District’s? North? Side,? Calumet? and
Stickney?WRPs.? Based? on? economic? and? non-economic? evaluation? of? alternatives,? ozone
disinfection? and? UV? disinfection? were? selected? and? study-level? basis? of? design? and? cost
estimates?were? developed.?Both?alternatives?were? developed? including? three? components:
a? low? lift? pump? station,? a? tertiary?filter? facility,? and? a? UV? or? ozone? disinfection? facility.? ? The
need? for? tertiary? filtration? to? support? disinfection? was? based? on? limited? sampling? that
showed?transmittance?values?less?than?the?IEPA?minimum?of?65%?and?energy?savings?with
a? less?turbid?flow?stream.? ? Because?of? the? limited?available?information,?the? estimates?that
were? developed? were? broken? into? two? alternatives? for? each? disinfection? technology:? one
with?tertiary?filters?and?one?without?tertiary?filters.??In?both?cases,?a?low?lift?pump?station?was
included? based? on? conceptual? level? evaluations?of? the? available?hydraulic? driving? head? for
the?existing?and?proposed?conditions.
Subsequent? to? the? TM1-WQ? evaluation,? additional? transmittance? data? was? obtained? and
the? District? requested? that? the? costs? be? further? developed? without? including? tertiary
filtration.? ? This? additional? evaluation? is? also? based? on? the? comments? received? from? the
United? Stated? Environmental? Protection? Agency? (USEPA)? as? part? of? the? Use? Attainability
Analysis?(UAA)?evaluations,?and?new?information?obtained?since?the?previous?work.
1.1?? Objective
The?primary?objectives?of?the?evaluation?presented?in?this?technical?memorandum?are:
? To?update?the?hydraulic?evaluation?conducted?during?the?preparation?of?TM-1WQ
? To?develop?the? hydraulic?basis?of?design?for?further? evaluation? and?development?of
the?conceptual?design?of?UV?disinfection?facilities
? To? determine? the? need? for? a? low? lift?pump? station? with? the?addition? UV? disinfection
facilities?both?prior?to?and?after?the?potential?addition?of?tertiary?filters
For? the?purposes?of? the? Disinfection? Cost?Study,?sound?engineering? judgment?will? be?used
to? make? assumptions? regarding? the? most? likely? arrangement? of? the? proposed? facilities
based?on?the?current?status?of?the?future?planned?improvements?to?the?SWRP.
In?the?following?discussion,?the?results?of?this?evaluation?are?given.?The?sections?that?follow
summarize?the?determination?of?the?process?flow?through?the?UV?Disinfection?Facilities,?the
hydraulic?profile? through? the? proposed? UV? Disinfection? System,?and?the? details? of?the? Low
Lift?Pump?Station.
Electronic Filing - Received, Clerk's Office, October 20, 2008

2
2
PROPOSED?FACILITIES
The?proposed?facilities?considered?in?this?study?revolve?around?adding?disinfection?process
facilities?to?the?existing?process?train?and?all?associated?improvements?required?due?to?that
addition.??As?such,?the?improvements?would?include?a?disinfection?facility/building?based?on
ultraviolet?disinfection? technology,?additional?effluent?flow? conduits?and? a?new?plant?outfall,
gate? structures? to? redirect? flow? to? the? new? facilities,? and? a? low? lift? pump? station.? ? Tertiary
filters? would? not? be? included,? although? the? proposed? disinfection? facilities? would? be
designed? to? allow? the? future? addition? of? tertiary? filters.? ? The? decision? to? proceed? with? UV
technology? for? disinfection? was? made? by? the? District? based? on? several? factors? including
track-record? of? the? technology,? the? need? to? avoid? release? of? additional? chemicals? to? the
environment? such? as? chlorination? byproducts,? security? concerns? related? to? chlorine? use
and? storage? and? the? cost? comparison? between? the? short-listed? disinfection? technology
alternatives? (ultraviolet? treatment? and? ozonation)? performed? as? part? of? TM-1WQ.? ? UV
technology? was? shown? to? be? less? costly? than? ozonation? with? substantially? less? concern
regarding?byproducts?and?security?compared?to?chlorination/dechlorination.
2.1?
Key?Considerations?for?Design?Development
In? order? to?further? develop? the? design?for? the? UV?Disinfection? Facilities,?CTE? has?reviewed
the? basis? for? the? decisions? that? were? incorporated? into? TM-1WQ? in? order? to? confirm? the
validity? of? those? decisions.? ? This? review? has? identified? several? issues? that? must? be
addressed?during?the?conceptual?design?of?the?facilities.
2.1.1?Site?Constraints
Proposed?Treatment?Train
Disinfection? facilities? are? usually? located? at? the? farthest? possible? downstream? point? in? the
process? treatment? train? for? the? reason? that? the? more? treatment? the? effluent? receives? to
remove? both? dissolved? and? suspended? contaminants,? the? more? effective? the? disinfection
process.
One? major? change? from? TM-1WQ? is? the? relaxation? of? the? assumed? need? for? tertiary
filtration? as? part? of? the? disinfection? facilities.? ? TM-1W Q? presented? scenarios? with? and
without? filtration? based? on? the? lack? of? information? to? demonstrate? that? filtration? was? not
required?for?effective?disinfection.??For?the?purposes?of?this?study,?it?is?assumed?that?tertiary
filtration? would? not? be? required? in? the? near? term.? ? However,? if? tertiary? filtration? is
implemented?in?the?future,?it?would?be?beneficial?for?filtration?to?occur?prior?to?disinfection?to
leverage?the?benefits?of?lower?suspended?solids?and?BOD?concentrations?that?would?make
disinfection?both?more?efficient?and?potentially?allow?the?UV?facilities?to?be?downsized.
Space
Appendix? A? shows? the?proposed?future? site? plan?from? the?SWRP? Master? Plan? as?included
in? TM1-W Q.? ? The? TM1-WQ? allocated? space? in? the? southwest? area? of? the? existing? site? for
disinfection? and? tertiary? filtration? due? to? the? amount? of? available? open? space? and? the
relative? proximity? to? the? Ship? and? Sanitary? Canal? (SSC).? However,? this? would? require? an
extensive? effluent? conduit? to? convey? flow? from? near? the? Pump? and? Blower? Building? nearly
1,500? LF? to? this? location? and? a? new?effluent? outfall? into? the? SSC.? Also,? the? majority?of? the
space? needs? in? this? location? are? allocated? to? future? tertiary? filtration.? The? filter? space
allocated? is? based? on? denitrification? media?filtration? at? 1.5? gpm/sf.?Although? other? filtration
technologies? are? available? with? smaller? space? requirements,? it? is? prudent? at? this? time? to
assume?denitrification?filtration?for?planning?purposes.
Electronic Filing - Received, Clerk's Office, October 20, 2008

3
In? consideration? of? these? points,? the? location? provided? in? TM-1WQ? is? recommended? as? it
provides?sufficient? open? space?for? the?new?facilities?as?well? as?provides?flexibility?for?future
implementation?of?tertiary?filters?is?so?required.?The?arrangement?of?the?new?facilities?in?the
south-west?area?of?the?plant?has?been?altered?from?TM-1WQ?to?provide?for?better?usage?of
the?site,?as?shown?in
Figure?1
.
Electronic Filing - Received, Clerk's Office, October 20, 2008

N
Electronic Filing - Received, Clerk's Office, October 20, 2008

5
2.1.2?Hydraulic?Constraints/Need?for?Additional?Pumping
The?final?key? consideration?for?development?of?the? potential?disinfection?facilities? at? SWRP
is? the?hydraulic?constraints? that? may? limit? the?ability?to? convey?flow?through? the?facilities?by
gravity.? ? CTE? has? completed? hydraulic? evaluations? to? estimate? the? headloss? through? the
UV? Disinfection? Facilities? including? the? required? conduits? to? evaluate? the? ability? to? flow
through?the?proposed?facilities?by?gravity.
The?flow?through? the?SWRP? is? currently? via?gravity?from? Aeration?Batteries?A,? B,? C?and? D,
underneath?the?Pump?and?Blower?Building?to?the?plant?outfall?discharging?into?the?Ship?and
Sanitary? Canal? (SSC).? The? existing? hydraulic? condition? was? analyzed? from? the? existing
effluent?aerator?downstream?of?Battery?B,?as?this?represents?a?hydraulic?break?point,?to?the
outfall? in? order? to? determine? the? head? available? for? the? disinfection? facilities.? CTE
conducted?this?hydraulic?evaluation?based?on?three?assumptions:
1.? A? water? surface? elevation? (WSE)? of? 3.5?ft? CCD? in? the? SSC? based? on? the? hydraulic
profile? from? the? Contract?78-102-EP,? West-Southwest? Treatment? Works,? February,
1985
1
?was?used?as?the?historical?hydraulic?basis?of?design?for?the?existing?facilities.
This?does?not?meet?the?100-year?flood?requirements.
2.? Secondary? effluent? to? the? new? disinfection? facilities? would? be? diverted? through? a
new? junction? chamber? located? just? downstream? of? the? Pump? and? Blower? Building,
at? a? point? approximately? 800-ft? upstream? of? the? outfall.? At? this? location,? secondary
effluent? from? all? Aeration? Batteries? (A,? B,? C? &? D)? could? be? diverted? to? the? new
facilities.
3.? Peak?flow?of?1,440?MGD?was?used?to?size?the?hydraulic?conduits.
The? difference? between? the? water? surface? elevation? at? the? Pump? and? Blower? house? and
the? historical? water? surface? elevation? in? the? SSC? is? the? head? available? to? convey? flow
through? the? new? disinfection? facilities? by? gravi
Tab
ty.
le? 1
? presents? the? results? of? that
evaluation.
Table?1?-?Theoretical?Water?Surface?Elevation?Assuming?All?Gravity?Flow,?Existing
Conditions
Location
WSE
WSE?just?downstream?of?Pump?and?Blower?House
5.45
WSE?in?SSC,?taken?from?1985?Hydraulic?Profiles?max?water?elevation
3.50
Available?head,?ft.
1.95
Note:??All?WSE?in?Chicago?City?Datum?(CCD).
Per? Table? 1,? only? 1.95? ft? of? head? is? available? to? convey? flow? through? the? proposed
disinfection? facilities? by? gravity? under? previous? hydraulic? analysis? conditions.? ? Without
tertiary?filters,?the? headloss?through? the? UV?disinfection?facilities,?including? associated?flow
splitting? and? control? systems,? is? estimated? to? be? 7.64 feet.? Thus? the? available? head? is
insufficient?to?direct?flow?through?the?potential?disinfection?facility?by?gravity?alone.
1
El?3.5?ft?CCD?is?listed?as?the?water?level?in?the?Sanitary?and?Ship?Canal?for?which?the?hydraulics
were?evaluated,?based?on?a?maximum?design?flow?rate?of?2,000?MGD.?This?profile?appears?to?be?the
last?official?hydraulic?profile?conducted?for?the?SWRP.
Electronic Filing - Received, Clerk's Office, October 20, 2008

6
As? a? result,? additional? pumping? would? be? required? after? the? implementation? of? the? UV
disinfection?facilities?to?meet?the?required?peak?flow?rate?of?1,440?MGD.
Considering? that? this? is? a? conceptual? level? evaluation,?additional? headloss? is? possible? and
likely? to? be? identified? during? final? design? as? the? details? of? flow? splitting? arrangements? and
other?site?constraints?create?less?than?ideal?flow?conditions.
3
HYDRAULIC?ANALYSIS?OF?THE?UV?DISINFECTION?FACILITIES
3.1?
Objectives
Hydraulic?analyses?of?the? SWRP? had? not?been? performed? as? part?of? the? Master?Plan,?thus
the? objective? is? to? identify? any? possible? hydraulic? bottlenecks? in? the? proposed? disinfection
facilities?for?the?recommended? site? plan? indicating? where? detailed? analysis?will? be? required
during? the? design? phase.? ? For? this? study? a? preliminary? model? was? created? to?evaluate? the
hydraulics? following? the? addition? of? the? UV? Disinfection? Facilities? inclusive? of? the? required
addition? effluent? conduits,? gate? structures,? UV? channels? and? reactors? and? the? Low? Lift
Pump?Station?(LLPS).
3.2?
Overview
The? hydraulic? analysis? was? completed? using? a? spreadsheet? utilizing? standard? open
channel? and? closed? conduit? flow? equations? to? represent? the? SWRP? from? the? effluent
conduit? at? the? Pump?and?Blower? house? through?a?new?junction? chamber? to? the? new?LLPS,
through? the? new? UV? facility?and? discharged? to? the? outfall.? ? The? hydraulics? evaluated? were
for? the? year? 2040? conditions,? utilizing? a? peak? flow? of? 1,440? MGD,? which? includes? both
infrastructure? and? permit-related? improvementsThe?
.
hydraulic? analysis? considered? the
existing? plant? hydraulics? starting? from? the? hydraulic? break? created? by? the? effluent? aerator,
downstream?of?Battery?B.
Although? a? WSE? Elevation? in? the? SSC? of? 3.5? ft? CCD? was? utilized? to? determine? if? effluent
pumping? is? required? based? on? the? historical? hydraulic? basis? of? design,? the? 100-year? flood
elevation?for?the?Sanitary?and?Ship?Canal?has?been?calculated?using?the?USACE’s?Chicago
Underflow?Plan?(CUP)?Design?Report.??The?CUP?report?used?observed?high?water?levels?to
model?the? predicted?high? water? levels? throughout?the? Chicago? Area?Waterways?at?each? of
the? construction? phases.? ? The? observed? high? water? level? at? the? SWRP? outfall? is
approximately? 4.1? ft? CCD? (since? 1965)? and? the? peak? modeled? level? for? the? 1957? event
(estimated?at?greater?than?the? 100-year?flood)? is?10.1?ft?CCD.? ? Appendix? B? provides? select
pages?from?this?report.
From?the?CUP?report,?a?water?surface?elevation?of?9.0?ft?CCD?was?estimated?at?the?SWRP
outfall? for? the? 100-year? flood.? For? the? conceptual? design? of? the? new? UV? facilities? in? this
study,? the? water? surface? elevation? of? 9.0?ft? CCD? will? be? utilized? as? a? worst? case? hydraulic
constraint?in?order?to?ensure?the?new?facilities?can?operate?during?the?100-year?flood.
3.3?
Assumptions
Due? to? the? preliminary? nature? of? the? selected? site? plan,? assumptions? were? made? in? the
development?of?the?hydraulic?model.??These?assumptions?are?as?follows:
1.
Peak? flow? of? 1,440? MGD.? ? Flows? above? 1,440? MGD? are? diverted? to? the? TARP
system.
Electronic Filing - Received, Clerk's Office, October 20, 2008

7
2.
SWRP? drawings? obtained? from? MWRDGC? are? on? the? Chicago? City? Datum
(CCD)? or? the? National? Geodetic? Vertical? Datum? (NGVD).? ? All? elevations? were
converted?to?CCD?using?conversion?CCD?=?NGVD?–?579.48.
3.
The? CCD? has? not? changed? since? the? plant? was? originally? constructed? in? the
1920’s.
4.
The? estimated? 100-yr? flood? elevation? is? +9.00? CCD,? as? calculated? in? the
Chicago? Canal? System? Model,? UNET.? ? Appendix? B? provides? selected? pages
from? the? USACE’s? Chicago? Underflow? Plan? (CUP)? Design? Report? presenting
these? results.? ? Pre-Stage? 1? (Stage? 1? of? the? McCook? Reservoir? Construction)
values?are? used? since?the? USACE’s?current?estimate?for?completion? of?Stage?1
construction?in?2020?or?later.
5.
Post?Aeration?is?not?included?in?this?study.??Additional?headloss?and?costs?would
be?associated?with?the?inclusion?of?post-aeration.
6.
Velocity? in? Disinfection? Influent? and? Effluent? Distribution? Chambers? is? zero? to
allow?adequate?flow?distribution.
7.
Batteries?A,?B,?C?and?D?are?all?at?the?same?elevation?and?flow?is?equally?divided
between?the?Batteries?A,?B,?C?and?D,?with?each?receiving?360?MGD.
8.
The? UV? process? requires? approximately? 6? ft? of? submergence,? thus? the
disinfection?channel?effluent?weir?is?assumed?to?be?5.5?ft?above?invert?to?ensure
a?submerged?weir?at?low?flow?conditions.
9.
The?following?modeling?equations?were?used:
a.? Pressure?Flow?–?Hazen?Williams?Equation
b.? Open-Channel?Flow?–?Manning’s?Equation
c.? Flow?junctions?–?Pressure?Momentum?Analysis
10.?
Hydraulic?coefficients?used?in?developing?this?model?include:
a.? Hazen?W illiams?–?110?(concrete)
b.? Manning’s
i.?
Regular?channel?–?0.013
ii.?
Aerated?channel?–?0.035
3.4?
Results
The?results?of?the?hydraulic?analysis?are?presented?in
Table?2
.??Table?2?presents?the
estimated?water?surface?elevations?through?the?plant?from?the?existing?Effluent?Aerator
through?the?new?LLPS?and?UV?Disinfection?Building?and?to?the?new?outfall.
The?flow?path?starts?with?a?new?effluent?conduit?that?would?direct?secondary?effluent?by
gravity?approximately?1,500?ft?west?from?the?new?junction?chamber?near?the?Pump?and
Blower?Building?to?the?new?LLPS.??Flow?would?then?be?lifted?15.8?ft?to?the?new?UV?influent
conduit.?Flow?would?travel?by?gravity?through?the?UV?facilities,?which?would?be?split?into?two
banks?of?six?UV?reactors,?into?an?effluent?conduit?and?to?a?new?outfall?discharging?into?the
SSC.
Electronic Filing - Received, Clerk's Office, October 20, 2008

8
Table?2?-?Summary?of?Proposed?WSE?including?UV?Disinfection?Facilities
Location
WSE
Effluent?Aerator?Discharge?Weir?Elevation
10.96
WSE?in?Effluent?Aerator
10.32
WSE?just?downstream?of?Pump?and?Blower?House
5.45
WSE?at?New?Junction?Chamber
4.00
WSE?in?LLPS?Influent?Conduit
1.22
WSE?in?LLPS?Wet?Well?just?u/s?of?curtain?wall
-1.25
WSE?just?downstream?of?Low?Lift?PS
14.59
WSE?just?upstream?of?Influent?gate
14.01
WSE?just?upstream?of?Effluent?Weir?gate
11.89
WSE?at?downstream?of?Disinfection?Effluent?Chamber
9.73
WSE?in?Sanitary?and?Ship?Canal,?Approximate?100?yr?flood?elevation
9.00
The?estimated?water?service?elevation?at?the?existing?effluent?aerator?remains?below?the
existing?aerator?weir?elevation,?thus?maintaining?the?existing?hydraulic?bre
Figure?2
ak.
contains?the?hydraulic?profile?of?the?flow?path?through?the?proposed?UV?disinfection
facilities?and?the?available?freeboard?at?the?locations?where?water?surface?elevations
(WSE’s)?were?calculated?at?the?maximum?day?flow.
Electronic Filing - Received, Clerk's Office, October 20, 2008

Electronic Filing - Received, Clerk's Office, October 20, 2008

10
4
UV?DISINFECTION?FACILITIES
The?District?has?preliminarily?selected?the?medium-pressure?high-intensity?(MP-HI)?UV
disinfection?technology?for?potential?disinfection?of?final?effluent?at?its?water?reclamation
plants.??This?section?presents?the?preliminary?basis?of?design?of?the?UV?system?to?be?used
at?the?SWRP.
4.1?
Background
A?Technical?Memorandum?on?the?UV?Disinfection?Technology?was?completed?for?the?North
Side?WRP?UV?Disinfection?Cost?Study.?The?memorandum?incorporated?the?following
information?which?is?relevant?to?the?Stickney?WRP:
? Information? from? literature? including? technical? proceedings? from? the? Water
Environment? Federation? (WEF),? Water? Environment? Research? Foundation
(WERF),?proceedings?from? the? latest?Disinfection?conference?series?undertaken? by
WEF,? American? Water? Works? Association? (AWWA),? and? International? Water
Association? (IWA).? ? This? information? provided? the? latest? updates? in? the? UV
disinfection?technology.
? Updated? recommendations? on? the? UV? system? from? four? manufacturers? –? Trojan
Technologies,?Aquionics,?Calgon?Carbon,?and?Severn?Trent?Services?(STS)/Quay.
? Reference? information? on? experience? of? UV? disinfection? at?five? selected? facilities? –
Racine?WWTP? (Racine,?W I),? R.L.? Sutton? WRF? (Cobb? County,? GA),? Grand? Rapids
WWTP? (Grand? Rapids,?MI),?Jacksonville?WWTP? (Buckman,?FL),?and?Valley?Creek
WWTP? (Valley? Creek,? AL).? ? A? summary? of? important? inferences? from? the? phone
survey?are?as?follows.
1.? Fouling? due? to? iron? in? the? effluent? has? been? a? problem? at? the? Racine,? Sutton,
and?Grand?Rapids?facilities.??Fouling?results?in?lower?then?expected?disinfection
performance,? higher? operating? costs,? and? higher? M&O? efforts.? ? The? iron? in? the
effluent?at?all? three?plants?was?primarily?from? the?chemical?phosphorus?removal
using? Ferric? Chloride.? ? At? Grand? Rapids? WWTP,? the? chemical? addition? is
upstream? of? the? secondary? treatment? process;? staining? of? sleeves? was? found
only? when? the? chemical? addition? was? in? the? secondary? clarifiers.? ? At?the? Sutton
WRF,? fouling? of? lamps? due? to? iron? is? observed? although? chemical? addition? is
upstream? of? secondary? process? and? sand? filters? are? used? upstream? of? the? UV
disinfection?system.??At?the?Racine?WWTP,?fouling?may?be?due?to?ferric?chloride
addition? and/or? due? to? the? additional? iron? brought? by? the? ferric? sludge? from
another? water? treatment? plant,? although? operational? controls? are? used? to
prevent?both?sources?from?occurring?simultaneously.
2.? Calcium?fouling?due?to?hardness?in?the?source?water?is?not?a?significant?problem
because? of? the? automatic? mechanical/chemical? cleaning? system? that? dissolves
and? wipes?away?any?scales.? ? The? lack?of? calcium?hardness? was? observed? in?all
five? plants? including? the? Racine? and? Grand? Rapids? utilities? which? have? Lake
Michigan? source? water? and? is? attributed? to? the? automatic? cleaning? system
performance.
3.? The? frequency? of? cleaning? and? changing? of? the? cleaning? solution? is? specific? to
the? utility? and? would? have? to? be? determined? only? by? experience;? however? it? is
likely?to?be?more?than?the?typical?case?stated?in?the?literature.
Electronic Filing - Received, Clerk's Office, October 20, 2008

11
4.? Labor?requirements?varied?amongst?facilities,?with?some?facilities?requiring?more
labor?to?handle?the?fouling?caused?by?iron?salt?addition.
5.? As? long? as? other? processes? in? the? plant? are? performing? as? desired,? all? five
facilities? were? satisfied? with? the? UV? disinfection? system? because? it? met? their
disinfection?goals.
In?conclusion,?the?phone?survey?had?revealed?that?fouling?of?the?quartz?sleeves?is?a
concern?for?this?application,?particularly?if?iron?salts?are?added?for?phosphorous?removal?in
the?future.??In?addition,?the?phone?survey?results?suggest?that?the?manufacturer’s
recommended?labor?assumptions?for?routine?maintenance?including?cleaning?and
inspection?of?the?lamps?is?too?low?for?this?application.??As?transmissivity?is?directly?related
to?lamp?fouling,?additional?lamps?and/or?more?frequent?cleaning?may?be?required?in?the
future?if?iron?salts?are?to?be?utilized?in?processes?upstream?of?this?technology.
Using?this?information?and?the?updated?information?available?from?manufacturers,?a
preliminary?basis?of?design?of?the?MP-HI?UV?disinfection?system?has?been?developed?for
disinfection?of?the?final?effluent?at?the?SWRP.
4.2?
Basis?of?Design
The?MP-HI?system?involves?sending?the?secondary?or?tertiary?effluent?through?channels
containing?banks?of?MP-HI?UV?lamps.???The?Trojan?UV4000™ Plus?system?is?used?here?to
develop?the?basis?of?design?for?the?UV?disinfection?system.??The?system?consists?of?a
power?supply,?an?electrical?system,?a?reactor,?MP-HI?lamps,?a?mechanical?and?chemical
cleaning?system,?and?a?control?system.??The?MP-HI?UV?lamps?are?enclosed?in?individual
quartz?sleeves?for?protection?against?dirt?and?breakage.??Reactor?chambers?(open
channels)?hold?the?lamps?in?a?horizontal?configuration.??The?effluent?weirs?and?level
sensors?are?used?to?keep?the?lamps?submerged?under?the?effluent?water.??This
submergence?ensures?that?the?lamps?do?not?overheat,?thereby?preventing?lamp?life
reduction?or?burnout.
The?UV?system?is?assumed?to?operate?from?March?to?November?each?year.??During?the
winter?months,?the?equipment?would?sit?idle?as?the?flow?is?bypassed?around?the?LLPS?and
UV?Disinfection?Building.??However,?due?to?the?size?of?the?facility?including?twelve?reactors
and?over?4000?lamps,?maintenance?activities?would?be?conducted?every?working?day?from
March?to?November?and?periodically?during?the?winter?months.??It?is?reasonable?to?expect
that?the?area?would?continue?to?experience?normal?weather?patterns?for?the?Chicago?area
including?extreme?weather?during?all?four?seasons.??In?order?to?protect?the?safety?of?the
M&O?staff,?ensure?operational?and?maintenance-related?productivity,?and?protect?the?UV
equipment?from?adverse?weather?common?to?the?Chicago?area?including?high?winds,?rain,
lightning,?snow,?and?extreme?temperatures,?the?UV?system?would?be?enclosed?in?a
building.
4.2.1? Proposed?Design?Criteria?for?UV?Disinfection?Equipment
Based?on?a?review?of?the?information?provided?by?the?UV?equipment?manufacturers?and
the?experience?of?five?other?facilities,?it?is?observed?that?Trojan?Technologies?provides?a
widely-used?low-maintenance?solution?for?final?effluent?disinfection.??The?design?of?the?MP-
HI?UV?disinfection?system?for?the?SWRP?is?based?on?the?Trojan?UV4000™ Plus?equipment
provided?by?Trojan?Technologies.
Electronic Filing - Received, Clerk's Office, October 20, 2008

12
4.2.2? Proposed?Layout
Flow?would?enter?the?UV?disinfection?facilities?at?the?north?end?of?the?influent?chamber,
where?it?would?be?directed?east?and?west?through?72-inch?gates?through?two?(2)?banks?of
six?(6)?UV?channels?arranged?on?either?side?of?the?influent?chamber.??The?effluent?channels
combine?the?flow?to?the?south?of?the?UV?building?and?direct?it?to?a?new?outfall.??This?layout
provides?for?a?compact?site?footprint?and?the?enables?the?building?size?to?be?minimized.
The?conceptual?layout?provides?for?a?new?effluent?outfall?to?the?SSC,?rather?than?directing
the?disinfected?effluent?back?to?the?existing?outfall.??However,?it?is?likely?that?the
construction?of?a?new?outfall?would?require?permitting?and?an?environmental?impact
assessment?which?may?eliminate?this?option?and?necessitate?the?existing?outfall?being
used?during?final?design.
4.2.3? Proposed?Basis?of?Design?Criteria
The?basis?of?design?is?given?i
Tab
n
le?3
.
Table?3?–?Design?Parameters?for?UV?Disinfection?Unit?at?NSWRP
Parameter
Design?Value
Capacity?and?Water?Quality
Design?flow,?mgd
1,440
Average?flow,?mgd
1,250
Maximum?TSS
a
,?mg/L
15
Pre-Disinfection?Effluent?E.Coli?Count
b
,?cfu/100?mL,?maximum
(Assumed)
200,000
Post-Disinfection?Effluent?E.Coli?Count?Target
c
,?cfu/100?mL
400
Effluent?Hardness
d
,?mg/L?as?CaCO
3
270
Dosage
UV?transmittance,?minimum,?%
65
UV?intensity
e
,?W/lamp
4,000
Lamp?Life,?hours
5,000
Fouling?factor,?%
90
Lamp?aging?factor,?%
89
UV?dose,?mW-s/cm
2
40
Physical?Characteristics
Channel?dimensions,?WxD
106”
?x?172”
Number?of?channels
12?(11?plus?1?standby)
Number?of?reactors?per?channel
1
Number?of?banks?per?reactor
2
Number?of?modules?per?bank
7
Number?of?lamps?per?module
24
Total?number?of?lamps
4,032
Total?power?requirement,?kW
11,827
Average?power?requirement,?kW
9,225
Hydraulics
Headloss,?UV?reactor?only
9”
Velocity?in?each?channel,?V,?ft/s
1.87
Li
bca
?A?Futur?M
qui
nnonthu
d?l
al?e?rly?p
e
aveq
v
erer
e
uir
l
ag
?
mit
cont
eme?lienm
ro
it?t?(12?
l
m
?in?channel
onmthlg/Ly?geometric?average)
ed
?
100Mean?%?ivntalensueity?at?100?
Mot
hours
orized
?of?lam
?W
p?
e
us
ir?G
e
ate
The?above?design?criteria?are?assumed?based?on?available?information?and?the?current
state?of?ultraviolet?disinfection?technology.??A?more?extensive?technology?evaluation
Electronic Filing - Received, Clerk's Office, October 20, 2008

13
should?be?conducted?prior?to?final?design?of?the?facility.??Due?to?the?extraordinary?scale?of
this?facility,?CTE?recommends?the?District?undertake?the?following?design?process?for
selection?and?design?of?the?UV?disinfection?equipment?if?final?design?is?initiated:
1.? Request? and? evaluate? independent,? full-scale? validation? data? (also? known? as
biodosimetry? data)? from? manufacturers? of? candidate? disinfection? systems? for
similarly? sized? units? or? the? largest? size? for? which? the? manufacturer? has? data
available.? ? This? evaluation? would? provide? an? initial? level-of-confidence? that? the
candidate? systems? can? achieve? the? target? disinfection? levels.? ? Data? should? be
from? systems? using? the? same? bulb,? ballast,? and? control? technology? as? proposed
for?the?full-scale?system.
2.? Conduct? a? collimated? beam? testing? program.? ? This? program? would? use? site
specific? effluent? and? bacteria? to? determine? the? sensitivity? of? the? site? specific
bacteria? and? pathogens? to? UV? disinfection.? ? The?data? would? be? used? to? size? the
UV?lamps?and?reactors.
3.? Increase?frequency?of?UV?transmittance?testing?at?each?plant?to?at?least?once?per
day?for?a? period? of? one? year? or? more? to?collect?data?on? seasonal?variability,?daily
variability,? diurnal? variability,? and? to? capture? the? frequency? of? events? that? might
reduce?transmissivity?such?as?wet?weather?and?infrequent?industrial?discharges.
4.? Conduct? a? more? detailed? life? cycle? cost? analysis? of? the? candidate? disinfection
systems?based?on?the?data?collected?during?steps?1?through?3?above.
5.? Construct? a? pilot? testing? facility? designed? to? match? lamp? spacing,? velocity? profile
and? other? design? parameters? of? the? proposed? full? scale? units.? ? The? pilot? testing
facility?would?be?used?to?determine:
a.? Appropriate? control? sequences? and? optimization? for? the? UV? disinfection
equipment,? including? appropriate? sensing? equipment? to? allow? advanced
power?management.
b.? In-situ? disinfection? performance? including? fouling? rates? of? the? lamps? with? and
without?ferric?salt?addition.
c.? Design?life?of?lamps?and?other?UV?system?parts.
d.? Actual? M&O? requirements? in? terms? of? labor? and? consumables? as? well? as
space?requirements?to?complete?required?maintenance?activities.
e.? Performance?of?alternate?equipment?manufacturers,?if?alternates?are?available
at?the?time?of?piloting.
f.? Accuracy? of? life? cycle? cost? analysis? prior? to? final? design? of? the? full-scale
system.
6.? Conduct? post-construction? full-scale? validation? testing? (biodosimetry? testing)? to
confirm?performance?and?determine?operating?parameters.
Electronic Filing - Received, Clerk's Office, October 20, 2008

14
Using?a?program?as?described?above,?it?may?be?possible?to?demonstrate?the?effective?UV
dosages?to?the?regulators?and?optimize?the?equipment?sizing?criteria.??For?this?study,
reduction?in?the?Illinois?requirements?for?UV?system?sizing?is?not?assumed?based?on?the
lack?of?data?similar?to?that?described?above.
5
LOW?LIFT?PUMP?STATION
This? section? will? present? the? proposed? arrangement? and? key? characteristics? of? the
proposed?Low?Lift?Pump?Station.
5.1?
Pump?Type
Several? pump? types? were? considered? for? this? application.? ? Pump? types? considered
included?screw?pumps,?vertical?turbine?pumps,?centrifugal?pumps,?and?axial?flow?pumps.
Screw? pumps? and? axial? flow? pumps? appear? to? have? the? best? operating? performance?for
this?condition.
It? is? estimated? that? the? low? lift? pumps? would? lift? 1,440? MGD? of? secondary? effluent
approximately?22.3?feet?(TDH)?to?the?UV?disinfection?system?influent,?including?estimated
head? to? allow?flow? through? the? UV? system.? ? The?static?head? equates?to?the?difference? in
the? estimated? water? surface? elevation? between? the? wet? well? and? the? discharge? conduit
plus?an?additional?2-ft?of?head?added?as?a?conservative?factor?to?accommodate?additional
losses?that?may?be?identified?during?final?design.
If?tertiary?filtration?is?constructed?in?the?future,?the?TDH?would?most?likely?increase?but?the
flow?would? remain?the? same.? ? Screw?pumps?will? not?easily? accommodate?this?change? in
head,? without? significant? structural? modifications? to? the? pump? station.? ? However,? axial
pumps? can? be? modified?for?future? head? conditions.? ? Structural?modifications? to? the?pump
station? to? accommodate?these? changes,? if? required,? should?be? minimal.? Therefore,?axial
flow,?propeller?type?pumps?are?recommended.
Vertical? axial? flow? pumps? have? been? assumed? here,? but? other? configurations? (including
inclined?or?horizontal)?could?be?considered?in?the?future.
5.2?
Basis?of?Design
Table?4
provides?a?summary?of?the?basis?of?design?for?the?Low?Lift?Pump?Station.
Table?4?-?Low?Lift?Pump?Station?Basis?of?Design
Flow,?MGD
1,440
Pumps
Type
A x ial?Flow
Number
8?total?(N+1+1)
Pumping?Rates,?gpm/pump
166,670
Static?Head,?ft
15.8
Dynamic?Head?(inc.?station?losses),?ft.
4.5
Total?Dynamic?Head,?ft.
(1)
22.3
Motor,?hp
(2)
1,500
Suction?Head,?ft
18.5
Wet?Well
Length,?ft.
86
Width,?ft.
114
Electronic Filing - Received, Clerk's Office, October 20, 2008

15
(1)???The?static?head?equates?to?the?difference?in?the?estimated?water?surface?elevation?between?the?wet?well
and???the?discharge?conduit?plus?an?additional?2-ft?of?head?added?as?a?conservative?factor?to?accommodate
additional?losses?that?may?be?identified?during?final?design.
(2)????A?1,350?hp?motor?could?be?provided,?however?this?is?a?non-standard?motor?size?and?only?standard?motor
sizes?were?assumed?f or?this?c onc eptual?study.
5.3?
Proposed?Operational?Description
The?pump? station? would? have?a? total?of? eight?pumps,? with? six?duty?pumps,?one? standby
and?one?out?of?service?(N+1+1).??Five?pumps?would?be?driven?by?constant?speed?motors,
three? would? be? variable? speed? driven.? ? In? order? to? provide? operational? flexibility,? the
pump? station? would? be? divided? into? two? wet? wells,? each? containing? four? pumps.? ? Design
average? flow? (1,250? MGD)? would? be? handled? by? four? constant? speed? and? two? variable
speed? pumps? operating? at? reduced? speed,? leaving? two? pumps? on? standby.? ? Peak? flow
(1,440? MGD)? would? be? handled? by? six? pumps? operating? at? full? speed,? leaving? two? on
standby.
The?pumps?would?operate? 24?hours?a?day,?seven? days?per? week.?Typically,?at? least?one
variable? speed? pump? would?operate?at?all? times,? to? handle?fluctuations? in?
T
flow
a
.
b l e ?5
illustrates?an?example?of?pump?operation?at?design?average?flow?and?peak?flow:
Table?5?-?Summary?of?Pump?Operation
Flow,?MGD
Pump?Drive?Type
Pump?Flow,?gpm
700
Constant?speed
166,667
Constant?speed
166,667
Variable?speed
152,777
1250?(Design?Average)?
Constant?speed
166,667
Constant?speed
166,667
Constant?speed
166,667
Constant?speed
166,667
Variable?speed
100,694
Variable?speed
100,694
1440?(Peak)
Constant?speed
166,667
Constant?speed
166,667
Constant?speed
166,667
Constant?speed
166,667
Constant?speed
166,667
Variable?speed
166,667
In? order? to? eliminate? vortices,? pumps? require? a? minimum? submergence? as? a? function? of
pump? suction? bell? diameter.? ? For? this?flow? condition,? a? 120-inch? suction? bell? is? required,
which?requires?a? minimum? submergence? of?16?feet.?? Submergence? requirements?should
be?verified?by?the?pump?manufacturer?during?final?design.
Level? sensors? in? the? wet? well? would? relay? signals? to? turn? pumps? on? and? off.? The? level
control? would? be? automatic? under? normal? conditions,? with? manual? override? possible.
Other?control?inputs?that?need?to?be?monitored?include?discharge?pipe?pressure,?flap?gate
position,?and?motor?alarms.
5.4?
Proposed?Layout
Flow? would? enter? the? pump? station? at? the? south? end? of? the? wet? well,? where? it? would? be
directed? perpendicularly? to? the? north? through? eight? 96-inch? slide? gates.? ? Pumps? are
Electronic Filing - Received, Clerk's Office, October 20, 2008

16
located? at? the? north? end? of? the? pump? station.? ? Site? constraints? and? pump? station? size
appear? to? make?this?flow? pattern? necessary.? ? Due? to? the? excessively? large? area? needed
to?meet?Hydraulic?Institute?(HI)?Standards,?there?is?insufficient?area?available?to?meet?the
suggested?dimensions?directly.
A? rectangular? wet? well? is? shown? in? the? plan? and? section.? ? Design? features,? which? have
been? shown? to? be? effective? in? other? installations,? were? incorporated? in? this? design? in
order?to?meet?HI?standards.??For?example,?perforated?plates,?curtain?walls,?and?floor?and
back?wall?splitters?have?been?incorporated?into?the?conceptual?design.??(See?Appendix?C
for? a? plan? and? section? of? the? proposed? layout).? ? Sizing? and? details? of? these? types? of
features?are?normally?determined?by?physical?scale?modeling?during?detailed?design.
6
SUMMARY
A? review? of? TM-1WQ? confirms? that? the? disinfection? facilities? would? consist? of? UV
technology?without?requiring?tertiary?filters,?although?filtration?could?potentially?reduce?the
size? of? the? UV? facility? via? reductions? in? TSS? and? BOD.? Additionally,? the? disinfection
facilities? are? recommended? to? be? located? in? the? southwest? corner? of? the? existing? site,
adjacent?to?the?space?reserved?for?the?future?tertiary?filters.??In?order?to?direct?flow?to?the
proposed? location,? a? new? junction? chamber? would? be? constructed? just? upstream? of? the
existing? outfall? to? divert? flow? to? the? new? disinfection? facility.? ? It? would? also? permit
bypassing? of? the? disinfection? facility? during? winter? months? when? disinfection? is? not
required.
A? hydraulic? basis? of? design? was? developed? for? a? peak? plant? flow? of? 1,440? MGD.? This
preliminary? evaluation? indicated? that? additional? pumping? would? be? required? to? lift
secondary? effluent? up? approximately? 16-ft? in? order? to? flow? through? the? proposed? UV
system.? ? Axial? flow? pumps? are? recommended? for? the? LLPS? due? to? the? low? head
conditions? and? the? need? to? modify? the? discharge? head? when? tertiary?filters? are? added? in
the?future.
Hydraulics? were? estimated? starting? from? the? existing? effluent? aerator,? through? the? LLPS
and?UV?facilities,?and?ending?at?a?new?outfall?to?the?SSC.
The?proposed?conceptual?layout?of?the?new?UV?facilities?consists?of?the?following:
a.
Junction? chamber? with? isolation? gates? within? the? existing? plant? effluent
conduit?and?an?conduit?to?the?LLPS,
b.
LLPS:
i.? Building?housing?a?wet?well?and?eight?(8)?axial?flow?pumps.
ii.? Influent?and?effluent?conduits?with?isolation?gates.
iii.? Support?facilities?such?as?an?operator?and?storage?rooms.
c.
UV?Facility
i.? Building?housing?twelve?(12)?UV?reactor?channels.
ii.? Influent? and? effluent? channels? with? isolation? and? level? control
gates.
iii.? Support?facilities?such?as? an?operator? room,? storage? room? and
an?electrical?room?housing?the?switchgear?and?transformers?for
both?the?LLPS?and?the?UV?facilities.
Electronic Filing - Received, Clerk's Office, October 20, 2008

17
d.
A?new?effluent?outfall?to?the?Ship?and?Sanitary?Canal.
The?location?and?arrangement?of?these?facilities?was?determined?to?accommodate?future
facilities?as? well?as?have?functionality?up? to? the? 100-year?flood? elevation.? ? A? new?effluent
outfall? is? proposed,? however? permitting? requirements? may? require? this? options? to? be
reevaluated?during?final?design
In?conclusion,?this?review?has?confirmed?the?primary?assumptions?of?the?TM-1WQ?in
regards?to?the?need?for?a?low?lift?pump?station,?location?of?the?facilities?and?arrangement
of?the?facilities?to?accommodate?future?facilities.
Electronic Filing - Received, Clerk's Office, October 20, 2008

Back to top


APPENDIX?A

Back to top


Site?Plan?from?the?SWRP?Master?Plan
Electronic Filing - Received, Clerk's Office, October 20, 2008

12 NEW PRIMARY
CLARIFIERS
AND 3 NEW SLUDGE
PUMPING STAllONS
N
A
{lJ)
,•.
,._~,.-,
...,..-'
..
-
FUTURE BATTERY E i
AERAllON TANKS +,
FINAL SEmlNG TANKS
FUTURE BATTERY F,
AERAllON TANKS
+;
FINAL SEmlNG TANKS
I
PROPOSED LOW
UFT PUMP STAllON
PROPOSED
TERllARY FILTERS
PROPOSED FINAL
EmUENT CONDUIT
AND OUTFALL
""'-'...-:.:.._--...
....."...
...
...........
600'
0'
I
-+-
I
PROPOSED JUNCllON
CHAMBER NO. 1
600'
~
...
-
.....
.r
( u-:....
~)."~,~-
,.
VI
FIGURE 1.10
SITE PLAN
UV DISINFECTION
STICKNE''(
WATER RECLAMATION PLANT
Electronic Filing - Received, Clerk's Office, October 20, 2008

Back to top


APPENDIX?B

Back to top


Selected?Pages?from?USACE?CUP?DDR
Electronic Filing - Received, Clerk's Office, October 20, 2008

i'------..!.----- - ----
~
.....-------IIiIIIIIIIIi-------
...
t.:,~
I
I
I III I
I
US Army Corps
..
of Engineers®
CHICAGO DISTRICT
__**
Iliil;;ii;i51
....
M;}i'jIltIW..
!J!,.tl~~ir.iZ

Back to top


DESIGN DOCUMENTATION REPORT

Back to top


CHICAGOLAND UNDERFLOW PLAN
Mc~OOK
RESE:RVOIR,
ILI~INOIS
Volume
I of VIII
..
....
~TO\lElVIBE.R~
1999
:;'//1
__
~,~-I.
'j_
Electronic Filing - Received, Clerk's Office, October 20, 2008

--
--=-=--~~_._-
~-----­
---- ---
:t'
I
N
o
Table A-II. Canal System Observed and Modeled Maximum Water Surface Elevations
MlIlimum Willer Surface Elevation
(rt
NGVD)
Modeled/or Waler Years 1951-1988
Modeled
J
~
Chance Exceedance Event
Approx. River
Observed, 1965 to
Stage 1 Project
Stage 2 Project
Stage 1
Stage 2
Location
Mile
present (DlIte)
Existinl! (Date)
(Date)
(Dale)
Existing
Project
Project
!
Wilmette - NSC @ Sheridan Rd.
341.2
586.7 (4/18/75)
592.6 (7/57)
591.3 (7/57)
I
590.5 (7/57)
I
589.4
I
589.1
587.6
North Side
SW - NSC
@
Howard St.
336.8
588.4 (8/14/87)
594.9 (7/57)
593.1 (7/57)
592.6 (7/57)
591.8
590.9
589.5
North Branch PS - NSC
@ Lawrence St.
3330
588.8 (8/16/97)
594.6 (7/57)
592.2 (7/57)
592.2 (7/57)
591.7
589.8
588.4
Chicago River Controlling Works - Chicago
River@ Lk Michigan-
325.6
583.6 (8/16/97)
589.1 (7/57)
585.3 (10/54)
583.9 (10/54)
588.2
585.0
583.2
31 st & Western - CS&SC
@
Willow Springs
,
Rd.
320.5
583.6 (6/30177)
589.6 (7/57)
585.4 (10/54)
583.9 (10/54)
588.7
585.1
583.0
Willow Springs - CS&SC
@ Willow Springs
Rd.
307.9
582.7 (7/18/96)
587.2 (7/57)
584.0 (10/54)
583.0
(\0/54)
586.7
584.\
582.4
Sag Junction - Confluence
ofCS&SC and
CSC
304.2
582.2 (7/18/96)
585.0 (7/57)
582.6 (10/54)
581.9 (10/54)
584.7
582.8
581.6
O'Brien
Lock. Calumet River Downstream
(south)
of O'Brien Lock
325.8
583.8 (7/18/96)
585.0 (7/57)
584.6 (7/57)
584.6 (7/57)
584.7
584.0
583.8
Southwest
Highway. CSC @ Southwest
Hwv
310.8
583.7 (7/18/96)
585.0 (7/57)
584.3 (10/54)
584.3 (10/54)
585.0
583.5
583.\
-The approximated river mile is for the junction of the Chicago River and its North and South Branch.
NSC
=
North Shore Channel
CS&SC
=
Chicago Sanitary and Ship Canal
CSC
=
Calumel Sag Channel
Electronic Filing - Received, Clerk's Office, October 20, 2008

Table A-l2.
Index of Major Bridges and Confluences
for Chicago Canal Model
Reach Scheme
(Canal Model)
2
2
2
2
2
2
2
2
2
2
2
1
1
1
1
1
1
1
1
1
3
3
3
3
3
3
3
3
3
3
3
3
3
4
4
5
5
5
6
6
6
6
6
7
7
7
7
7
7
7
7
7
8
8
8
8
8
8
Tributary Stream
North Shore Channel
North Branch
North Br. (Goose
Island West)
North Br. (Goose
Island East)
North Branch
Chicago River
South Branch
Bridge Name
Sheridan Road Lock
Central Street
Green Bay Road
Church Street
Dempster, Il 58
Oakton Street
Touhy Avenue
Devon Avenue
Peterson, US 14
foster Avenue
Jet. North Branch
Touhy
(05536000 gage)
Devon Avenue
Eclen:, Expwy.
Cicero Avenue
foster Avenue
Kimball Avenue
Kedzie Avenue
Jet .. North Shore
Crannel
Jet. N'Jrth Shore
Channel
Lawrence Ave.
Montrose Ave.
Irving Pa rk Rd.
Addis;)n Street
Belmont Ave.
Western Ave.
Diversy Ave.
Damen Ave.
fullerton Ave.
A.3hland Ave.
Cortland Street
North Ave.
Division Street
Ogden Ave.
Halsted Street
Division Street
Ogden Ave.
Halsted Street
Chicago Ave.
Ohio/Kennedy Expwy.
Grand Ave.
KinzLe ScreeC
Jct. South Branch
franklin Screet
Wells Street
LaSalle Street
Clark Street
De3rbor-n Street
State Street
or/abash Ave.
Michigan Ave.
Lake Shore Drive
Lake Street
Randolph Street
Washington Street
Madi.3on Street
Moneoe Street
Adams Street
A-21
River Mile
341.2 1/
340.4
339.8
338.7
338.2
337.2
336.2
335.2
334.7
333.6
333.5
51.4 2!
49.2
46.2
46.1
44.5
43.9
43.6
43.3
333.5
333.1
332.5
332.0
331.4
330.9
330.6
330.2
329.9
329.5
329.1
328.6
327.9
327.4
326.9
326.6
327.0
326.9
326.85
326.4
326.1
326.0
325.8
325.6
325.65
325.7
325.8
325.9
326.0
326.1
326.3
326.4
326.9
325.6
325.5
325.4
325.3
325.1
325.0
Electronic Filing - Received, Clerk's Office, October 20, 2008

300
310
320
330
340
350
II
-..:
\
\
\
I
I
I
I
I
/
I
I
I
/'
/
"-
/
\
--
---
\
e.--
-"-..
_/
-----
V
~
I
V
/
V
~"
I
//
i\:
/'
/
..)
/1
I... ,
\'
II
l.--'
./
1)<;:
tx'
\
\
L.--
~
-.
...........
V
~
y
.'
/
I~
1"1'"
~
l...-I-"
-
-....
~
...
/
/'
~
..r-
I-
..,""
,
)
/
"\"11
~r-..
,/
V
/
/
~/
1\'\
/'"
-
'
-
"
---
...........
..
....
~
.~'
-~
i,...---
..
-
.-
. "
-
"
V/
,.
~/
/
r
"
V
~
.
-
~
/'
,I
V/
/
V/
.Y
..
,
~
~
v::
V
1-
It-"'"
---
IX'
)<
....--:::
/
I
i\. __
V
~
...-
I
J
1/
I
/.1
~
V
l/::
V
I
I I
I
..
'/
11:
If/
.
'.J
~/
V
,/
V
/
1/
~ ~
r:--
I
~
l:--""
/~
...
~
ChiO&qolan4 Ubdal:flow Plan - NoCook a.• ..,.".,1l:
DESIGN DOCUMENTATION REPORT
Main Stem Existing Maximum Watec Sucface
levations - Synthetic
vs.
Obsecved
Chicago Distcict
Cocps of Engineecs
June 1999
Plate A-1?4
590
570
290
575
585
g
c:
0
+::
l'll
>
~
w
580
..
S9S
;
,
,
;
-d
~
I
;
)
7!
;
.oJ~ 1,,~
...
J.;......;..'we'!'.
~'i
;""" /
_L
J_j,-.J.-..l.,,~L
I
I
I
J
J
I(
l
7
I
I
I
I
,
I
I
I
I
I
I
I
I
I
I l
I I
~
; 1
-.
Location (river miles)
--2-year - - - S-year -t--10-year'.. , "" 20-year - , -" 50-year
~-100-year
_.. _.. _. SOD-year
X Observed High Water

Back to top


----
...-
-
----
-',
Electronic Filing - Received, Clerk's Office, October 20, 2008

59
590
585
g
c:
0
.~
I'll
>
Q.l
W
580
575
_ --J::II-
•••• __•• _•...-........- .......G".'G'
..-...,u •• u .....
5
T
7
I
I
(
.--+--
"-
\
\
f
.I
'\
/
~
I
/
I
/
~
v .....
/
"
I
-
1--. -
1----
--
--
7
/
~!
----
)
"
v-
..-----
..--
"\
//
ii
~l'
\
/
.J
/
/
/
/
l/Y"
II'
r
~_
...-
.- ,.
..
.
I
/
,
/
L..-
v-
I--"'
--"
[7
/
I
V
~
J--
l'
./
---
1---
...
-
-
.-
.....
~
--
.
..1
7'/
,/"
-.-
. .,.
-
.
......
/
./
..
-
..
-
-
.
,-----
/'
-
.
1'"*
H
I
I
I
~
~
I
/
~
~
.-'"
/
LI/
I
~
ft""'.
~
-
~
.
~
,
'JU
l---
I
V~
~
~
~
~
~
e:--
....
j.,II
...
~
IIY
ChiO&qOland Underflow Plan -
MoCooIo:
a.aervo1r
DESIGN DOCUMENTATION REPORT
Main Stem Stage I Synthetic Maximum Water
Surface Elevations
Chicago District
Corps of Engineers
June 1999
r
Plate A-176
i
570
290
300
310
320
location (river miles)
330
340
350
---2-year
5-year
--
"'-~'~
----+--- 10-year
...... 20-year
- . - . 50-year
---1DO-year
-.----- 500-year
---of-
Electronic Filing - Received, Clerk's Office, October 20, 2008

\
\
\
\
\
\
\
\
\
\
\
\
\, \
,
595
I
1
r
7
I
I
7
r
I
I
I
I
/-1
I
1
\
\
\
\
\
\
\
,--\-----F
~"
\
,
l\.i
1'\1"
/
~
l!1j
I
/
590
LLLt-~+-4-~t--+-i-i-t--t--t-t-r-t--t-t-t-tr-i=t:=~t\Ir-ln
/
171/
\
/I I I
_
,,_p -,.- -
-
- '\--'t-
ul __ ui-l"l7.J-+- I
I
I
--..-
'-T' \
/
~
.
~
/1
i
~--t'--I-
I ,.l.
,IIIILI~f--;
dfflllll.~..;:v
/
--
585
,
580j
I II
+~"I
rr~nmmm
g
c::
..
nl
o
ell
>
W
~
~
~
575
I I I
"
:
"
I,
"
"
I,
I,
I,
I,
Ch10&q0land Und.ertlow Pl&n - McCook
~.e.rvolr
DESIGN DOCUMENTATION REPORT
Main Stem Stage [I Synthetic Maximum Water
Surface Elevation,
Chicago District Corps
ot
Engineer,
June 1999
Plate A-178
300
310
320
330
340
350
570
I
I'
I
I
I
I
I
I
I
I
I
I
I
I I I I,
i
1
290
Location (river miles)
I
--2-year
- - - 5-year
-+-10-year
- - - -. -20-year
- - - - 50-year
--100-year
-,.---- 500-year
l
-
-
-
~
.
.;~
-~~
...
<-£=?~
Electronic Filing - Received, Clerk's Office, October 20, 2008

Back to top


APPENDIX?C
LLPS?Proposed?Layout
Electronic Filing - Received, Clerk's Office, October 20, 2008

N
A
P-303
A
P-303
Electronic Filing - Received, Clerk's Office, October 20, 2008

N
A
P-303
A
P-303
Electronic Filing - Received, Clerk's Office, October 20, 2008

O:\P60040695\Constructs\07-026-2P\PROCESS\P-303.dwg,?P-303,?5/28/2008?3:29:50?PM,?kostamol
N
Electronic Filing - Received, Clerk's Office, October 20, 2008

Back to top